リビング吹抜なしの間取り一覧
家族や自分の”好き”を叶える注文住宅の間取りが見つかる!暮らしの要望をもとに全国の建築家が作成したリビング吹抜なしの間取りを1298件公開しています。毎日更新中!
-
- 30坪
- 2LDK
時短叶うコンパクトな家事動線と、多趣味をより楽しむ豊かな平屋
-
- 36坪
- 2LDK
広いウッドデッキと庭でおうち時間を満喫、どこにいても家族の気配感じる家
-
- 50坪以上
- 4LDK
暮らしにメリハリつけるゾーニングで、将来はワンフロア生活を見据えた家
-
- 39坪
- 4LDK
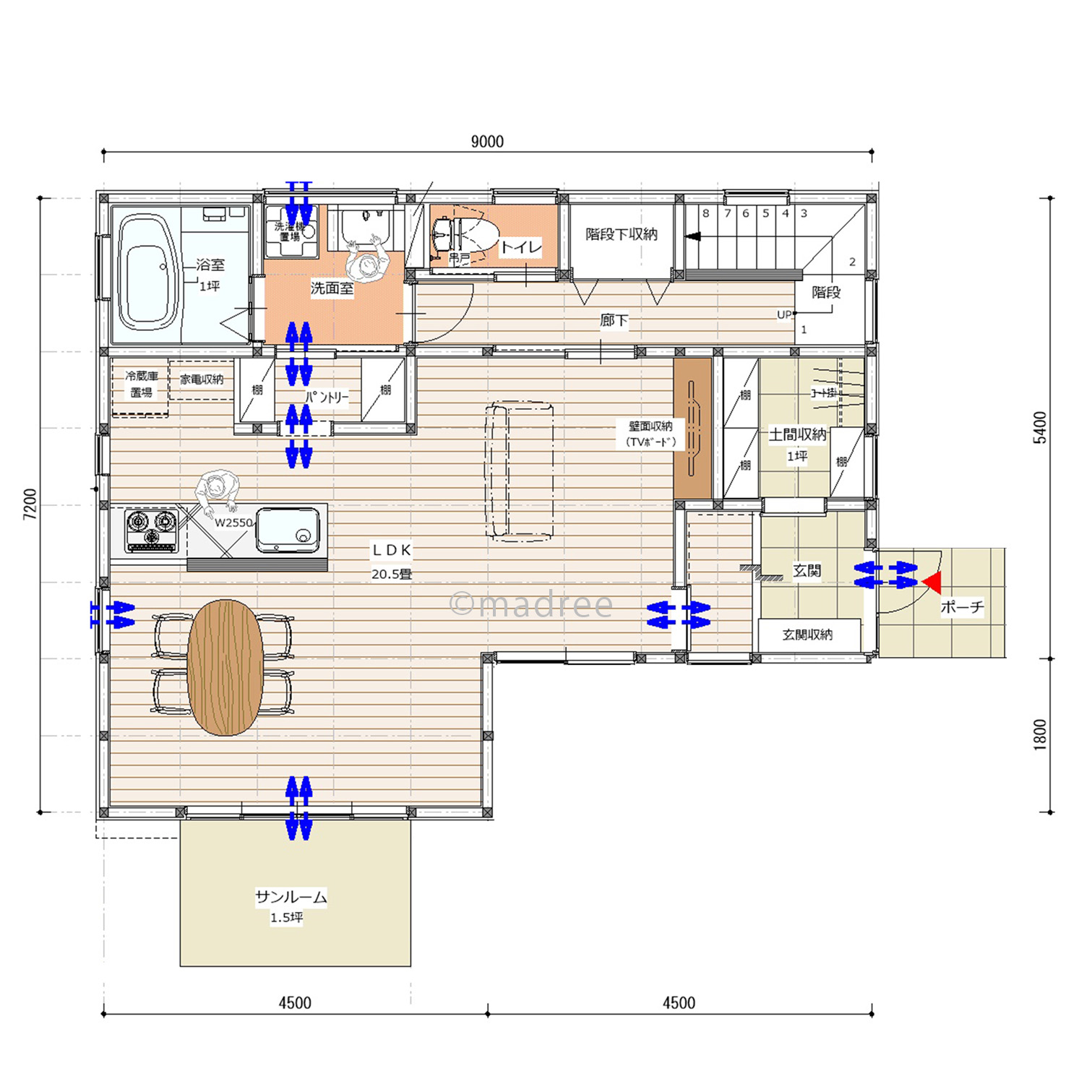
見守りキッチンで会話弾む、全室南向きの温かな光と風が通る家
-
- 50坪以上
- 畳コーナー
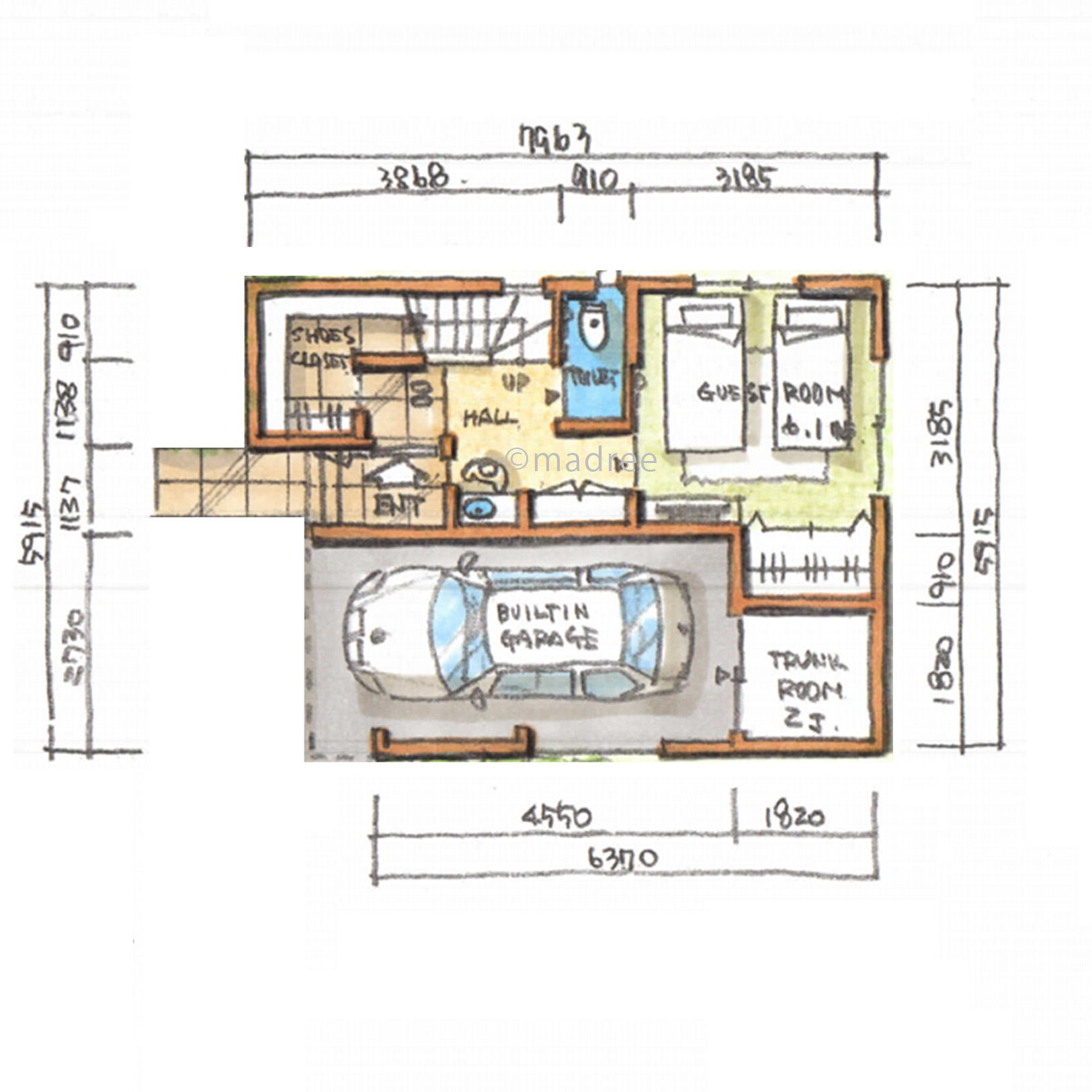
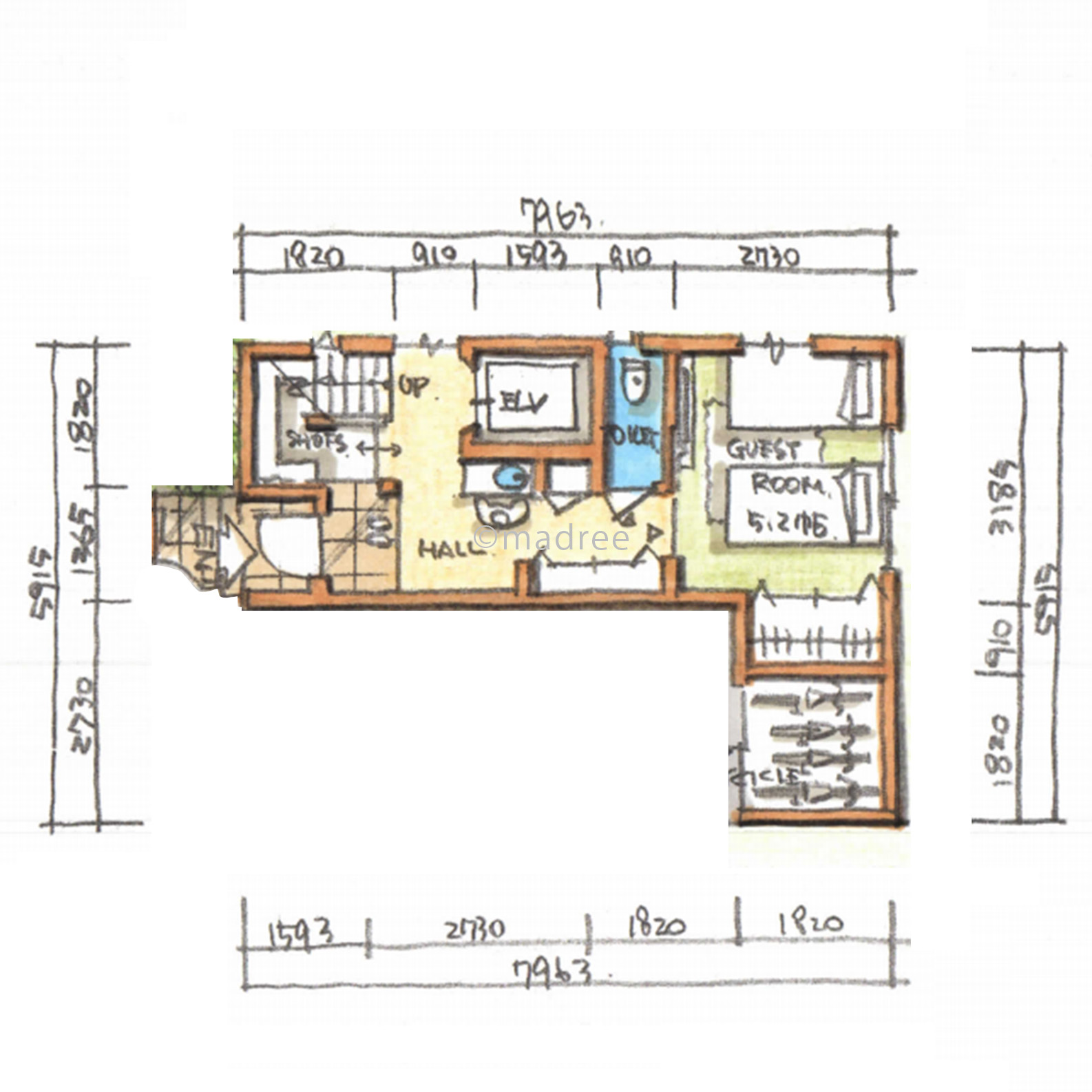
まとめて収納で時短家事が叶う、生活音に配慮しのびのび過ごせる2世帯住宅
-
- 49坪
- 3LDK
パーソナルスペースで自分時間楽しむ、家族のプライベート重視した大人の家
-
- 50坪以上
- 3LDK
パブリックとプライベートをしっかり両立、友人と宴楽しむ土間リビングのある家
-
- 30坪
- 2LDK
家事ラク動線で趣味時間をつくりだす、四季感じる自然とつながる平屋
-
- 33坪
- 2LDK
家族それぞれお気に入り空間を確保、巣ごもりしたくなる居心地の良い家
-
- 30坪
- 3LDK
夫婦で趣味の時間を愉しむ、全室南向きのあたたかな里山の平屋
-
- 29坪
- 2LDK
自然に囲まれたデッキで至福の朝食を、農家に嬉しい勝手口兼パントリーのある平屋
-
- 27坪
- 2LDK
趣味を楽しみゆっくり時が流れる、夫婦ふたり暮らしにちょうどよい平屋
-
- 30坪
- 3LDK
縁側が家族や友人の憩いの場に、全室南向きで明るく温かな里山の平屋
-
- 39坪
- 4LDK
ウォークスルー動線で家事ラク追求、家中に光届ける中庭が主役の家
-
- 45坪
- 2LDK
ゲストが気兼ねなくくつろげる、空間にメリハリを効かせた大人の平屋
-
- 36坪~39坪
- 2LDK
ゆるやかな仕切りでメリハリ生活叶う、子どもがよく遊び学べるサブリビングのある家
-
- 30坪
- 2LDK
キッチンを囲んで人が自然と集まる、家族や友人と時間を共有し合う平屋
-
- 36坪
- 3LDK
帰宅後のゆとり時間を創出、洗濯物が一気に片付く家事動線の家
-
- 38坪
- 3LDK
趣味をとことん楽しむ!コレクションが詰まった壁面収納のある家
-
- 38坪
- 4LDK
子どもたちがのびのび育つ、自立を促す暮らしやすい動線の家
-
- 20坪以下
- 1LDK
山並みを臨むリビングでくつろぐ、非日常を味わう里山の家
-
- 33坪~36坪
- 3LDK
サンルームからそのままクローゼットへ、時短家事で親子時間が生まれる家
-
- 39坪
- 3LDK
プライバシーと開放感を両立、光と風が心地よいコの字型の家
-
- 45坪~49坪
- 1LDK
太陽光と自然をたっぷり感じる、大きなピクチャーウインドーが映える平屋
マドリー開発の『住宅営業支援ツール』
madreeデータバンク
マドリーの人気間取り4,800プランを接客・提案に活用できる営業支援ツール
- 競合他社と差がつく、スピード提案
- トレンド間取りで、集客・受注数UP
- 建築家のアイデアを参考に、質の高い提案ができる
