単世帯住宅の間取り一覧
家族や自分の”好き”を叶える注文住宅の間取りが見つかる!暮らしの要望をもとに全国の建築家が作成した単世帯住宅の間取りを2096件公開しています。毎日更新中!
-
- 42坪~45坪
- 3LDK
適材適所の収納と個々の部屋を完備しつつ家族みんなで心地良く繋がれる家
-
- 45坪~49坪
- 4LDK
庭木を眺めながらシンプル且つ効率的な家事動線でゆとりある時間を過ごせる平屋
-
- 39坪~42坪
- 3LDK
自宅で広々キャンプが楽しめる!落ち着けるプライベートエリアも兼ね備えたメリハリのある家
-
- 42坪~45坪
- 4LDK
間口が狭くても広々した居住空間で暮らし満喫できる3階建ての家
-
- 36坪~39坪
- 3LDK
住宅密集地でも日の当たる明るく開放的な空間で暮らしも趣味も楽しめる家
-
- 39坪~42坪
- 3LDK
適材適所の収納と洗濯ラク動線で暮らしが心地良く整う家
-
- 39坪~42坪
- 4LDK
ストレスフリーの快適家事ラク動線で充実した暮らしにゆとりが持てる家
-
- 39坪~42坪
- 5LDK
趣味も家事も快適に過ごせるスペースで暮らしを豊かにする間取り
-
- 39坪~42坪
- 4LDK
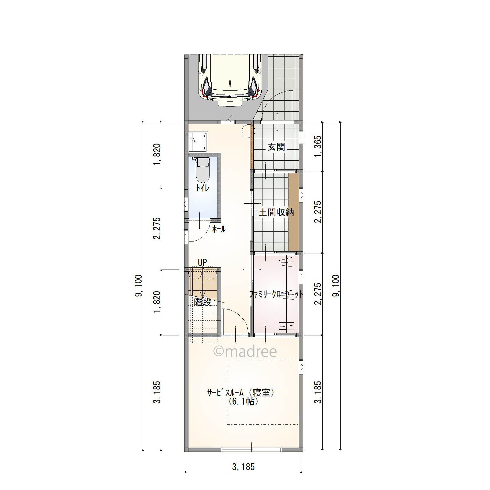
ファミリークローゼット中心で収納しやすい!日の当たるLDKでのんびり一家団らんできる家
-
- 39坪~42坪
- 4LDK
洗う・干す・しまうが快適な洗濯ラク動線と開放感があって落ち着けるリビングで寛げる家
-
- 39坪~42坪
- 4LDK
シンプルな家事動線と居心地良い2つのリビングで快適に暮らせる家
-
- 45坪~49坪
- 4LDK
光と風で心地良さに満たされる、吹き抜けで繋がる3階建ての家
-
- 33坪~36坪
- 2LDK
コンパクトな家事動線で効率良く捗り、ゆとりある時間を過ごせる家
-
- 36坪
- 3LDK
共働き夫婦の家事負担を軽くする暮らしにほど良くフィットした間取り
-
- 33坪
- 4LDK
開放的なリビングとシンプルな家事ラク動線で心地良く過ごせる家
-
- 39坪~42坪
- 3LDK
趣味を楽しむスペースが充実!暮らしが豊かになる心地良い家
-
- 45坪~49坪
- 4LDK
プライバシーを確保した空間の中に開放感を感じられる平屋
-
- 39坪~42坪
- 3LDK
週末キャンプを楽しめる庭や趣味や暮らしを充実させる空間が満載の家
-
- 42坪
- 4LDK
収納も充実しつつ和室や庭との一体感で広々としたLDKで心地よく暮らせる間取り
-
- 4LDK
間口が狭くても吹き抜けで採光を確保し明るく広々とした空間の家
-
- 39坪~42坪
- 3LDK
暮らしすさや趣味を楽しむ空間が充実した心が豊かになる家
-
- 39坪~42坪
- 4LDK
LDKとウッドデッキが一体となったパノラマビューライフが楽しめる家
-
- 30坪~33坪
- 4LDK
キッチン中心の家事ラク回誘導線で暮らしにゆとりが持てる家
-
- 39坪~42坪
- 3LDK
水回りと畳みコーナーの回遊導線で家事をラクに!家族用収納動線で片付く間取り
マドリー開発の『住宅営業支援ツール』
madreeデータバンク
マドリーの人気間取り4,800プランを接客・提案に活用できる営業支援ツール
- 競合他社と差がつく、スピード提案
- トレンド間取りで、集客・受注数UP
- 建築家のアイデアを参考に、質の高い提案ができる
