リビング吹抜なしの間取り一覧
家族や自分の”好き”を叶える注文住宅の間取りが見つかる!暮らしの要望をもとに全国の建築家が作成したリビング吹抜なしの間取りを1251件公開しています。毎日更新中!
-
- 45坪
- 6LDK
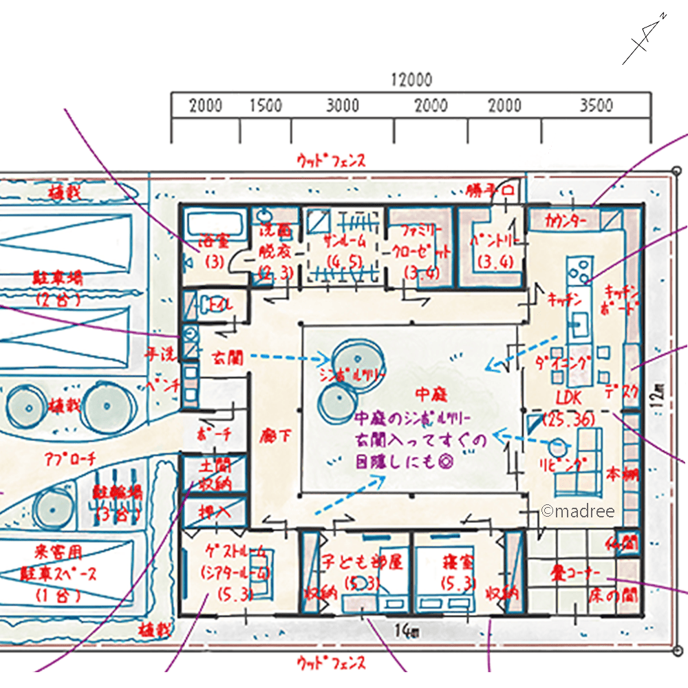
高天井のLDKに光と風をたっぷり取り込む、中庭を囲んだコの字平屋
-
- 42坪
- 4LDK
家族の気配感じながら個々時間も充実、ワンフロアでほぼ生活完結の家
-
- 27坪〜30坪
- 4LDK
シニア世代が老後も快適に過ごせる、動線がコンパクトな平家風暮らしの家
-
- 42坪
- 4LDK
季節を気にしない万全なアレルギー対策、自然光と風が届くサンルームのある家
-
- 52坪
- 1LDK
ホテルライクな親世帯と平屋風暮らしな子世帯が暮らす二世帯住宅
-
- 53坪
- 4LDK
生活感をスッキリ隠して仕事と子育てを両立、美容室を併設した店舗兼住宅
-
- 24坪
- 3LDK
ラク家事動線で家族時間生み出す、明るく自然を感じる狭小地3階建ての家
-
- 49坪
- 3LDK
縦長変形地を無駄なく効率活用、お互いに気持ちよく過ごす二世帯住宅
-
- 27坪〜30坪
- 2LDK
狭小でも充実の収納でスッキリを保つ、吹抜ホールから家中に光を取り込む家
-
- 40坪
- 3LDK
運動スペースにもなる回遊動線で、人もペットも屋内外を自由に移動できる家
-
- 24坪
- 2LDK
季節の庭で四季移ろいを楽しむ、カーテンなしで過ごすロの字型コートハウス
-
- 45坪
- 4LDK
南向きの大開口で明るさを取り込む、バリアフリーで老後も快適な二世帯住宅
-
- 53坪
- 4LDK
2階の生活空間でプライベート時間充実、LDKとバルコニーが回遊動線で繋がる家
-
- 27坪〜30坪
- 4LDK
バリアフリー対応で老後も安心、全ての部屋から縁側と庭の景色を楽しめる家
-
- 45坪
- 5LDK
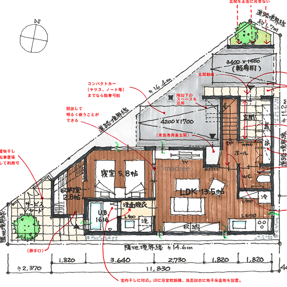
庭まで一直線のプライベートゾーン、来客の視界が届かない裏動線のある家
-
- 37坪
- 4LDK
2つのプライベートテラスから光と風呼び込む、1階で生活完結する将来を見据えた家
-
- 33坪
- 3LDK
ゆったり廊下で伸びやかに過ごす、家族みんなに優しいバリアフリーの家
-
- 48坪
- 1LDK
少ない廊下で生活動線を集約、玄関共有で過ごす三階建ての二世帯住宅
-
- 40坪
- 3LDK
屋外にいながら自由な自分時間を過ごせる、中庭を建物で囲んだロの字型の平屋
-
- 2LDK
介護を視野にいれて空間を広く活用、玄関とデッキを共有で過ごす二世帯住宅
-
- 39坪
- 4LDK
フレキシブルな和室で子育てから介護まで、休日のワクワク感高める曲線デッキの家
-
- 27坪〜30坪
- 2LDK
縦長の北部屋にも光と風を届ける、中庭を囲むコの字の家
-
- 39坪
- 4LDK
開放的な開口窓で空気を全交換、ウッドデッキまで爽やかに繋がる大空間LDKの家
-
- 30坪
- 2LDK
広いLDKを廊下のように活用、建物中央からすべての部屋にアクセスしやすい家
マドリー開発の『住宅営業支援ツール』
madreeデータバンク
マドリーの人気間取り4,800プランを接客・提案に活用できる営業支援ツール
- 競合他社と差がつく、スピード提案
- トレンド間取りで、集客・受注数UP
- 建築家のアイデアを参考に、質の高い提案ができる
