1WAY玄関の間取り一覧
家族や自分の”好き”を叶える注文住宅の間取りが見つかる!暮らしの要望をもとに全国の建築家が作成した1WAY玄関の間取りを706件公開しています。毎日更新中!
-
- 37坪
- 2LDK
廊下なしでコンパクト動線に、広く空間使うアイデアが詰まった家
-
- 29坪
- 2LDK
どこからも窓の外の景色を臨む、太陽の光がたっぷり注ぐ里山の家
-
- 41坪
- 3LDK
子どもを見守りながら仕事できる、プライバシー配慮した2階リビングの家
-
- 45坪~49坪
- 3LDK
片付けながらの帰宅動線で自然に整う、吹抜とサンルームで明るく温かい家
-
- 35坪
- 3LDK
南向きリビングで明るく暖かい、朝日ですっきり目覚める光に満ちた家
-
- 20坪以下
- 3LDK
キッチンから家族の様子を見守れる、好きを叶えた趣味部屋のある家
-
- 35坪
- 2LDK
たっぷり収納で生活感なく暮らす、四方に心地よく風が抜ける家
-
- 40坪
- 3LDK
緑に囲まれてのびのび過ごす、隅々まで光と風が行き届く平屋
-
- 42坪
- 3LDK
気軽にアウトドアに行ける、一瞬で片付くビルトインガレージのある家
-
- 34坪
- 2LDK
家事ラク裏動線で親子時間をつくる、大きな吹抜のひだまりリビングの家
-
- 34坪
- 2LDK
外からの視線カットでプライバシー充実、家族みんなが安心して暮らせる家
-
- 39坪
- 2LDK
たっぷり収納ですっきり整う、憧れのテラスとガレージで暮らし楽しむ家
-
- 39坪
- 2LDK
広いデッキをつないで伸びやかな空間に、アウトドアリビングで特別な時間過ごす家
-
- 35坪
- 4LDK
和室を囲む廊下からの光と風が心地よい、デザイン性と暮らしやすさを追求した家
-
- 40坪
- 4LDK
リビング階段や屋上のプライベート空間で、家族との会話を大切にする家
-
- 33坪
- 2LDK
家事仕事しながらわんぱくキッズを見守る、ライフスタイルの変化に対応しやすい家
-
- 35坪
- 3LDK
動線に合わせた収納でさっと片付く、来客時は引き戸でオシャレに魅せる家
-
- 38坪
- 4LDK
ルーフバルコニーで家族団らん、ライフスタイルの幅が大きく広がる家
-
- 31坪
- 2LDK
キッチン中心にサクサク家事できる、無駄のないワンルームのような平屋
-
- 24坪~27坪
- 2LDK
心地良い光と風を呼び込む、小上り畳が家族の憩いの空間となる家
-
- 32坪
- 2LDK
緑に包まれ豊かな時間が流れる、料理好きな夫婦に嬉しい大型パントリーのある平屋
-
- 26坪
- 3LDK
おかえり動線で安心快適に過ごす、キッチンから家族見守る2階リビングの家
-
- 29坪
- 2LDK
緑豊かな中庭でホッと一息、プライバシーに配慮したコートハウス風の平屋
-
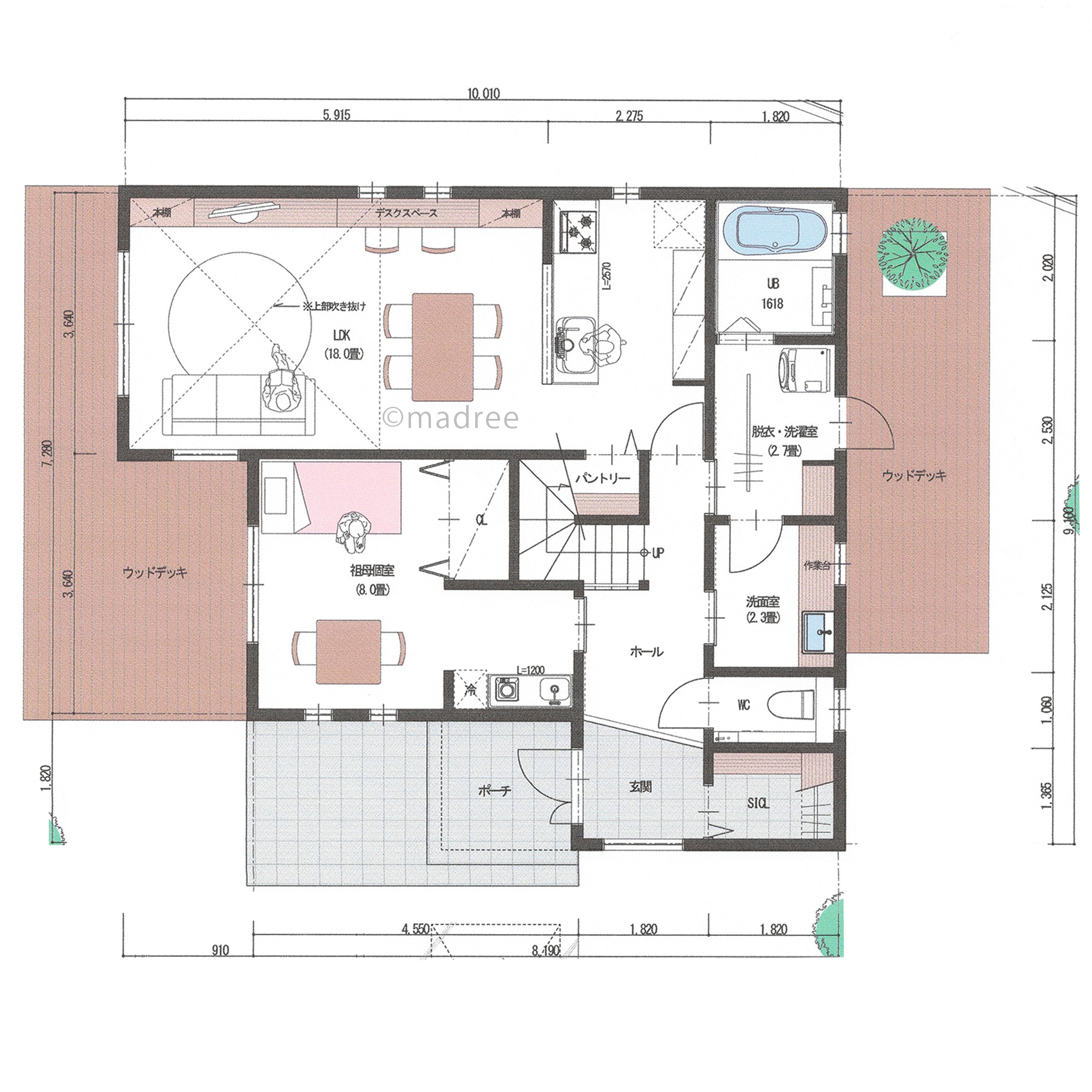
- 40坪
- 5LDK
家事シェアしやすいシンプル動線と、個室時間も大切にする二世帯住宅
マドリー開発の『住宅営業支援ツール』
madreeデータバンク
マドリーの人気間取り4,800プランを接客・提案に活用できる営業支援ツール
- 競合他社と差がつく、スピード提案
- トレンド間取りで、集客・受注数UP
- 建築家のアイデアを参考に、質の高い提案ができる
