31坪の間取り一覧
家族や自分の”好き”を叶える注文住宅の間取りが見つかる!暮らしの要望をもとに全国の建築家が作成した31坪の間取りを67件公開しています。毎日更新中!
-
- 31坪
- 2LDK
くつろぎとコミュニケーションが生まれる、キッチン中心に家族とつながる家
-
- 31坪
- 2LDK
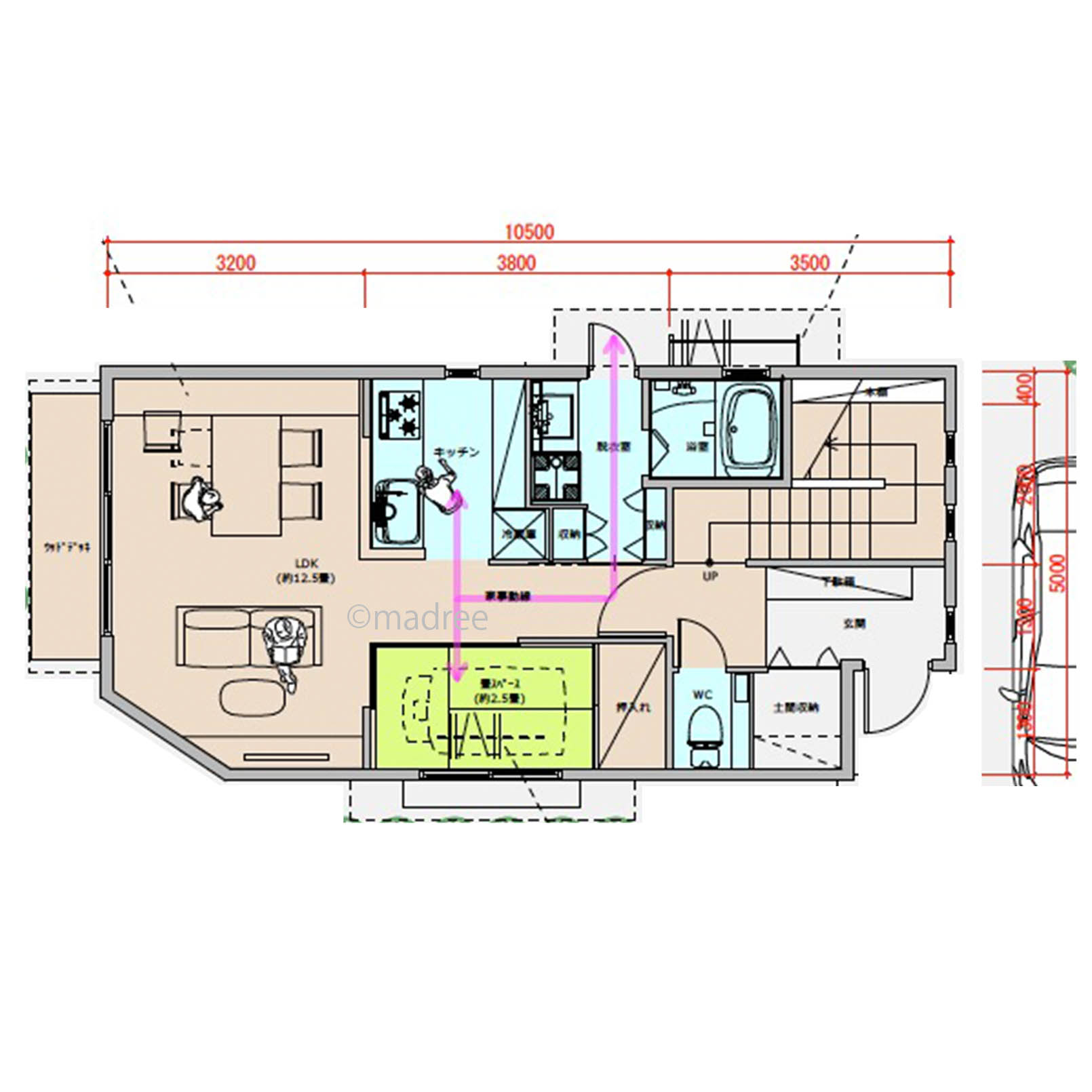
短い家事動線で有効な空間活用、狭小地でも家族がのびのび過ごせる家
-
- 32坪
- 3LDK
縦の広がりを活かして家中に光を届ける、吹抜から家族の気配を感じられる家
-
- 32坪
- 2LDK
ウォークスルー動線で1日がスムーズに、自然とつながるアウトドアリビングのある家
-
- 31坪
- 4LDK
中庭を介して家族の雰囲気を家じる、生活の中心に回遊プライベート空間のある家
-
- 31坪
- 3LDK
リビング一体の畳空間を多目的に活用、並行家事がしやすいコンパクト動線の家
-
- 31坪
- 4LDK
中庭を中心にLDKを空間分けした、窓や廊下越しに家族の存在を感じられる家
-
- 31坪
- 4LDK
家族の気配感じながら個々の時間も大切に、気持ちのオンオフ切り替えやすい家
-
- 31坪
- 3LDK
バリアフリーで家族みんなが笑顔に、視線が通る心地よい2階リビングの家
-
- 31坪
- 3LDK
夫婦それぞれに働く環境を整える、在宅ワークも家事も集中できる篭り場のある家
-
- 31坪
- 2LDK
ゆとりある衣食住で心も体も休まる、太陽の光をたっぷり取り込んだ里山の家
-
- 31坪
- 3LDK
コンパクト家事で休日のんびり過ごす、アウトドアリビングで余暇楽しむ家
-
- 31坪
- 3LDK
家族をつなげる中庭が憩いの場となる、老後まで安心して暮らせる1階完結の家
-
- 31坪
- 3LDK
玄関近くに水廻りを無駄なく集約、1階の半分を広くLDKにしたコンパクト総2階の家
-
- 31坪
- 3LDK
玄関から勝手口へぐるっと回遊、3WAY動線でコンパクトに整う同居予定の二世帯住宅
-
- 31坪
- 3LDK
LDKを通らず玄関から水廻りへ直行、自然に綺麗をキープできる帰宅後動線のある家
-
- 31坪
- 2LDK
脱衣室から直接出られる物干しデッキ、リビングから洗濯物が見えない平屋
-
- 31坪
- 2LDK
一望できるキッチンと吹抜で家族見守る、光と風が心地良い変形地活かした家
-
- 31坪
- 4LDK
コンパクトな生活動線で将来も安心、リゾートのような開放感でデッキと繋がる平屋
-
- 31坪
- 4LDK
庭とキッチンを繋ぐカフェのような土間空間、家の中でもアウトドア気分を満喫できる家
-
- 31坪
- 3LDK
敷地の中心にある屋外の癒し空間、リビングや浴室から景観を共有する坪庭のある家
-
- 31坪
- 3LDK
帰宅後はまずお風呂できれいさっぱり、光と緑が差し込む遊びある2階LDKの家
-
- 31坪
- 2LDK
お互いを尊重したペットとの生活、テリトリーを守りながら人も猫も快適に過ごす家
-
- 31坪
- 4LDK
コンパクトな動線で時短家事、デッキと繋がる広々リビングで家族がゆったり過ごす家
マドリー開発の『住宅営業支援ツール』
madreeデータバンク
マドリーの人気間取り4,800プランを接客・提案に活用できる営業支援ツール
- 競合他社と差がつく、スピード提案
- トレンド間取りで、集客・受注数UP
- 建築家のアイデアを参考に、質の高い提案ができる
