夫婦別室の間取り一覧
家族や自分の”好き”を叶える注文住宅の間取りが見つかる!暮らしの要望をもとに全国の建築家が作成した夫婦別室の間取りを94件公開しています。毎日更新中!
-
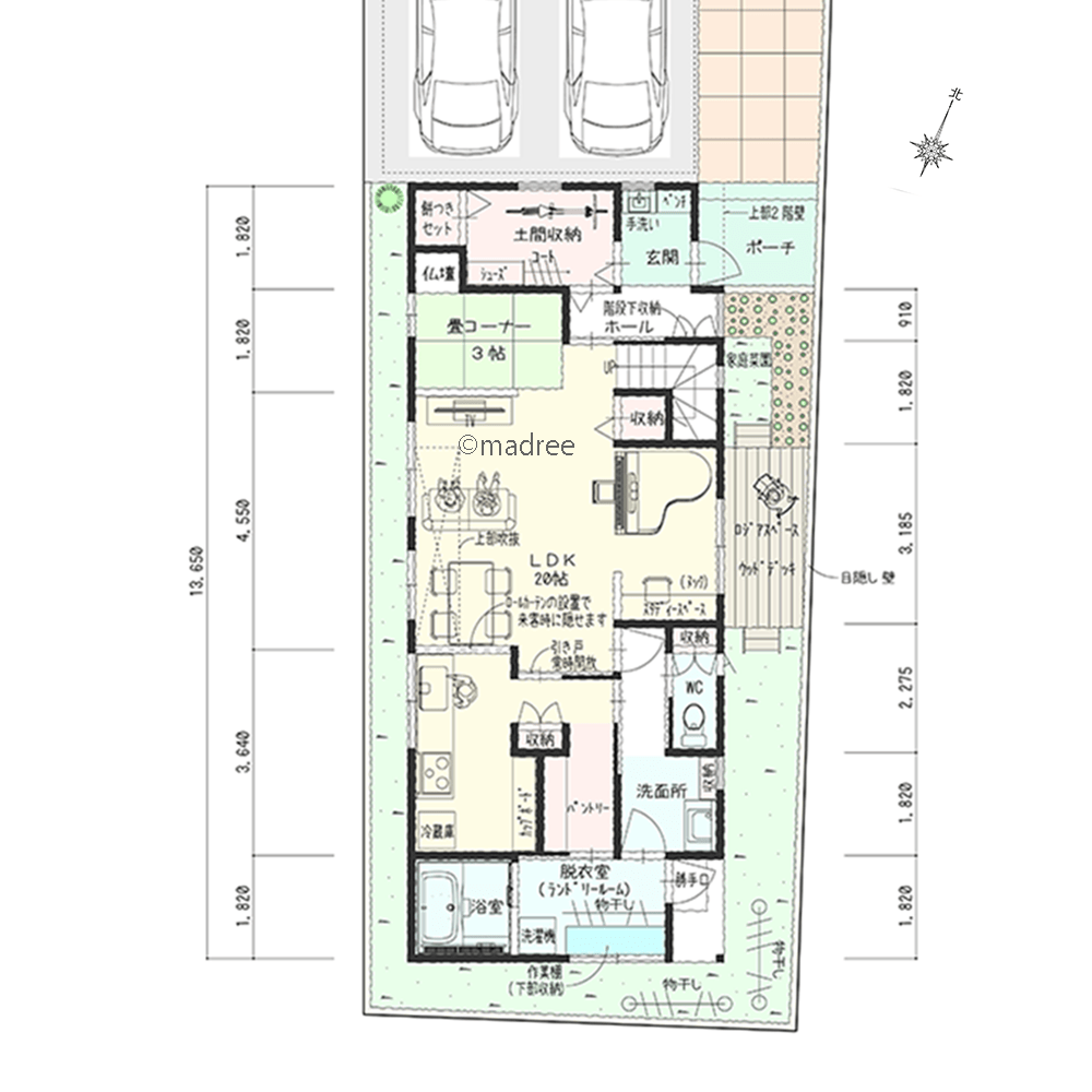
- 31坪
- 4LDK
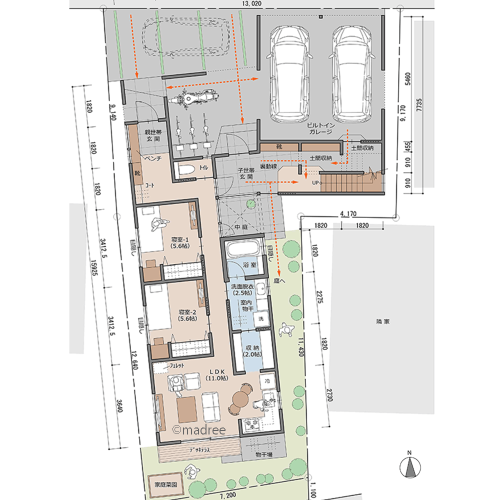
中庭を介して家族の雰囲気を家じる、生活の中心に回遊プライベート空間のある家
-
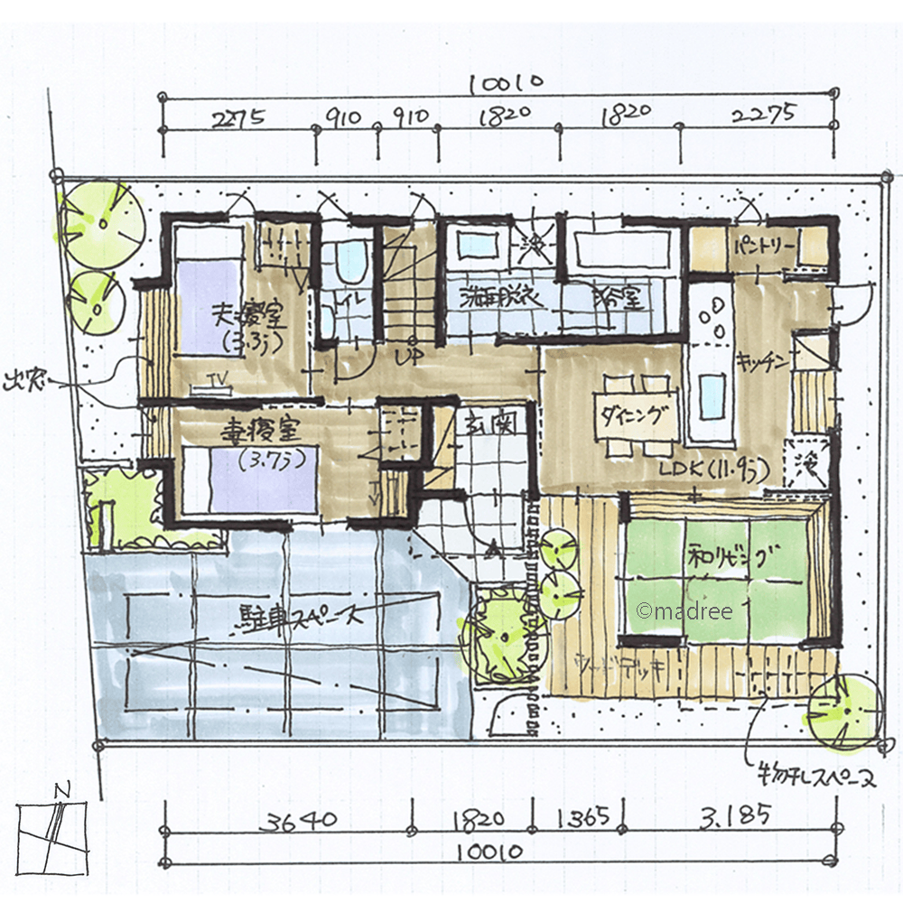
- 33坪
- 4LDK
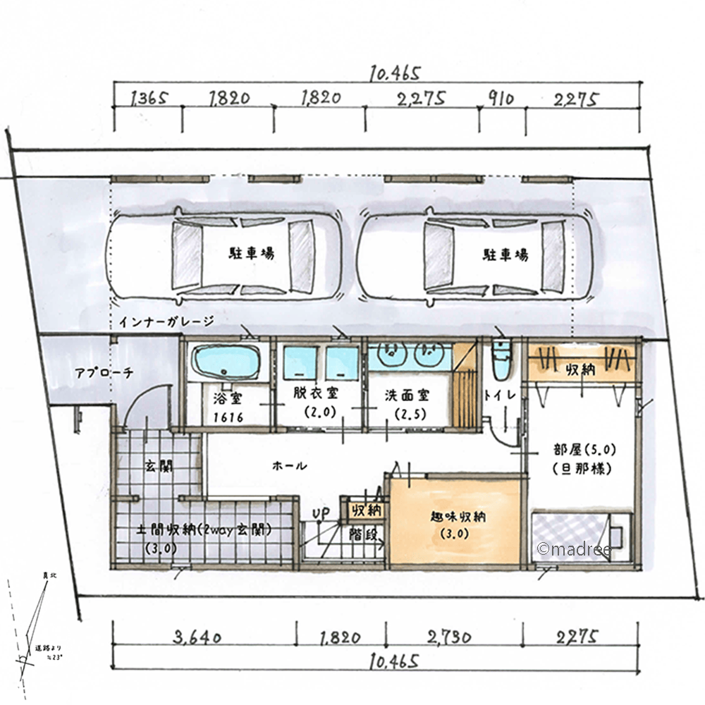
自分時間を快適に過ごせる、家族それぞれにパーソナルスペースのある家
-
- 31坪
- 4LDK
中庭を中心にLDKを空間分けした、窓や廊下越しに家族の存在を感じられる家
-
- 33坪
- 4LDK
絵画のように来客をお出迎え、室内に明るさと奥行きを与える光庭のある家
-
- 40坪
- 5LDK
シンボルツリー越しに家族の気配を感じる、プライベートな中庭を囲む平屋
-
- 31坪
- 4LDK
家族の気配感じながら個々の時間も大切に、気持ちのオンオフ切り替えやすい家
-
- 42坪
- 5LDK
LDKと奥行きあるデッキの一体感、家族それぞれにパーソナル空間のある平屋
-
- 33坪
- 4LDK
LDKと光庭の繋がりで広さ以上の開放感、シンボルツリーで四季を感じる家
-
- 45坪
- 6LDK
高天井のLDKに光と風をたっぷり取り込む、中庭を囲んだコの字平屋
-
- 27坪〜30坪
- 4LDK
シニア世代が老後も快適に過ごせる、動線がコンパクトな平家風暮らしの家
-
- 53坪
- 4LDK
2階の生活空間でプライベート時間充実、LDKとバルコニーが回遊動線で繋がる家
-
- 27坪〜30坪
- 4LDK
バリアフリー対応で老後も安心、全ての部屋から縁側と庭の景色を楽しめる家
-
- 35坪
- 2LDK
繋がる玄関土間でホームパーティー対応、LDKから庭までが一体空間になる家
-
- 53坪
- 2LDK
気軽に交流できる距離感、お互いのプライベートを大切に過ごす二世帯住宅
-
- 37坪
- 4LDK
片付く隠し収納と大きな吹抜で、ゲストを気持ちよく迎える家
-
- 60坪
- 2LDK
ひとり時間と家族時間それぞれ楽しむ、身近に外空間感じる二世帯住宅
-
- 42坪
- 4LDK
壁を少なくカーテンでフレキシブルに対応、動線良く繋がる介護を見据えた家
-
- 27坪〜30坪
- 4LDK
外の視線気にせずのびのび過ごす、光と緑が溢れる大人だけの家
-
- 28坪
- 3LDK
壁面活用で理想のスペース確保、明るくのびやかな狭小地の家
-
- 38坪
- 3LDK
LDKから四季の移ろいを感じる、庭の緑と吹抜窓越しの夜景を楽しむ家。
-
- 21坪〜24坪
- 4LDK
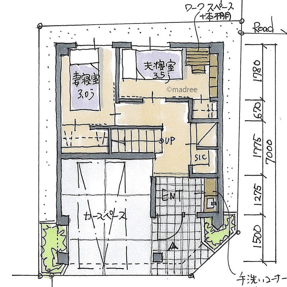
それぞれのパーソナル空間も大切に、明るい2階LDKが憩いの場となる家
-
- 32坪
- 4LDK
テラスと庭を囲むシンプルなL字型、老後を快適に過ごすコンパクト動線の家
-
- 43坪
- 4LDK
個室やヌックで程よい距離感をキープ、将来を見据えた二世帯住宅
-
- 50坪以上
- 4LDK
屋内外一体のプライベート空間、家事動線と繋がるアウトドアリビングのある家
マドリー開発の『住宅営業支援ツール』
madreeデータバンク
マドリーの人気間取り4,800プランを接客・提案に活用できる営業支援ツール
- 競合他社と差がつく、スピード提案
- トレンド間取りで、集客・受注数UP
- 建築家のアイデアを参考に、質の高い提案ができる
