リビング階段の間取り一覧
家族や自分の”好き”を叶える注文住宅の間取りが見つかる!暮らしの要望をもとに全国の建築家が作成したリビング階段の間取りを1232件公開しています。毎日更新中!
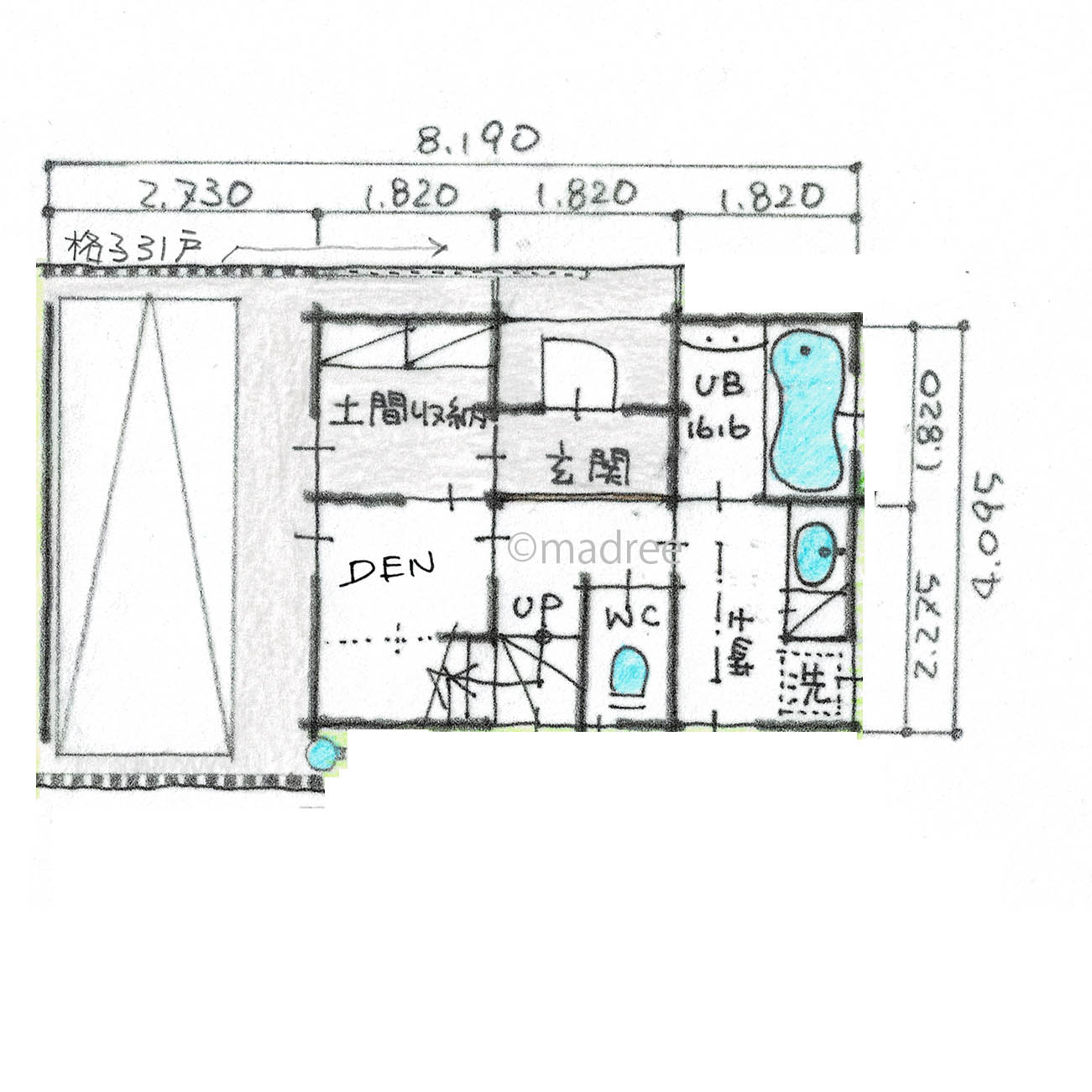
-
- 30坪~33坪
- 4LDK
シンプルな家事動線と来客対応がしやすい配置で暮らしを楽しめる家
-
- 39坪~42坪
- 4LDK
シンプルで開放的な空間をゆるく区切って程よく落ち着ける家
-
- 36坪~39坪
- 3LDK
風通しも家事動線もスムーズで心地良い暮らしが叶う間取り
-
- 42坪~45坪
- 3LDK
一直線家事動線で家事効率UP!採光をしっかり確保した居心地良いほぼ平屋
-
- 30坪~33坪
- 4LDK
プライバシーを考慮しつつ明るさと開放感があるシンプルで暮らしやすい間取り
-
- 33坪~36坪
- 4LDK
3世帯同居でも効率的な家事ラク動線と適材適所の収納で快適に暮らせる家
-
- 39坪~42坪
- 3LDK
家族の「好き」が詰まった趣味や暮らしを楽しめる家
-
- 33坪~36坪
- 3LDK
シンプル且つ効率的な動線で暮らしにゆとりが持てる間取り
-
- 39坪~42坪
- 3LDK
暮らしに寄り添う収納動線と家事動線で心地良く過ごせる家
-
- 39坪~42坪
- 3LDK
暮らしに寄り添う適材適所の収納と部屋の配置で心地良く過ごせる家
-
- 45坪~49坪
- 5LDK
奥行き深い敷地でも機能的で住み心地良い暮らしが叶う間取り
-
- 36坪~39坪
- 3LDK
料理も洗濯も効率的且つ快適に!家族のライフスタイルにフィットする間取り
-
- 36坪~39坪
- 3LDK
来客時間も家族時間も心地良く過ごせるゾーニングで日々の暮らしが楽しめる平屋
-
- 39坪~42坪
- 2LDK
子どもを見守れる家事動線や趣味部屋で家族が安心して心地良く過ごせる家
-
- 30坪~33坪
- 2LDK
趣味を楽しむスペースや家事動線を充実させつつ安定して採光を取り込む明るい家
-
- 36坪~39坪
- 3LDK
シンプルな家事動線と収納力で暮らしやすく、ゆったりデッキで家族が繋がるほぼ平屋の間取り
-
- 42坪~45坪
- 3LDK
適材適所の収納と個々の部屋を完備しつつ家族みんなで心地良く繋がれる家
-
- 36坪~39坪
- 3LDK
住宅密集地でも日の当たる明るく開放的な空間で暮らしも趣味も楽しめる家
-
- 39坪~42坪
- 3LDK
適材適所の収納と洗濯ラク動線で暮らしが心地良く整う家
-
- 30坪~33坪
- 4LDK
家事ラク動線とデッキに繋がる土間玄関で愛犬と家族みんなで快適に過ごせる間取り
-
- 39坪~42坪
- 5LDK
趣味も家事も快適に過ごせるスペースで暮らしを豊かにする間取り
-
- 39坪~42坪
- 4LDK
洗う・干す・しまうが快適な洗濯ラク動線と開放感があって落ち着けるリビングで寛げる家
-
- 39坪~42坪
- 4LDK
シンプルな家事動線と居心地良い2つのリビングで快適に暮らせる家
-
- 45坪~49坪
- 4LDK
光と風で心地良さに満たされる、吹き抜けで繋がる3階建ての家
マドリー開発の『住宅営業支援ツール』
madreeデータバンク
マドリーの人気間取り4,800プランを接客・提案に活用できる営業支援ツール
- 競合他社と差がつく、スピード提案
- トレンド間取りで、集客・受注数UP
- 建築家のアイデアを参考に、質の高い提案ができる
