リビング階段の間取り一覧
家族や自分の”好き”を叶える注文住宅の間取りが見つかる!暮らしの要望をもとに全国の建築家が作成したリビング階段の間取りを1232件公開しています。毎日更新中!
-
- 33坪~36坪
- 2LDK
狭小地でありながらプライバシーを保ち家族みんなが心地よく豊かに過ごせる家
-
- 39坪~42坪
- 3LDK
キッチン&大きめパントリーと水回り動線を分けて家事分担しやすい家
-
- 45坪~49坪
- 4LDK
外でたっぷり遊んできてもお風呂へ直行動線!シーンに合わせたLDK間仕切りで暮らしにフィットする家
-
- 42坪~45坪
- 4LDK
ペットと共に快適に過ごせる仕掛けが色々!家事ラク動線でゆとりの持てる間取り
-
- 30坪~33坪
- 3LDK
生活空間も仕事場も分けながら利便性高く光を取り込んだ明るい3階建の家
-
- 33坪~36坪
- 3LDK
趣味も子育ても来客対応もOK!暮らしが満ちる心地良い間取り
-
- 33坪~36坪
- 3LDK
開放的なリビングで家族が繋がる、家事も暮らしもシンプルで心地良い間取り
-
- 30坪~33坪
- 2LDK
プライバシーを守りながら光と風が通り抜ける明るく開放のある家
-
- 42坪~45坪
- 4LDK
程よい距離感で家族を感じられ個々の時間も大切にできる家
-
- 45坪~49坪
- 4LDK
来客対応も家事ラクも叶う動線で暮らしにゆとりが持てる家
-
- 45坪~49坪
- 5LDK
人もペットも開放的に豊かに過ごせる!暮らしのこだわりが詰まった家
-
- 30坪~33坪
- 4LDK
趣味も家族それぞれの暮らしも充実するシンプルで明るい家
-
- 42坪~45坪
- 4LDK
2つのデッキで暮らしに広がりを!日々の暮らしを充実させてくれる家
-
- 39坪~42坪
- 3LDK
趣味も暮らしやすさも叶うプライバシーを確保しながら開放感を味わえる家
-
- 45坪~49坪
- 4LDK
来客対応OK!おもてなしも暮らしも使い勝手の良い明るく開放的な家
-
- 45坪~49坪
- 5LDK
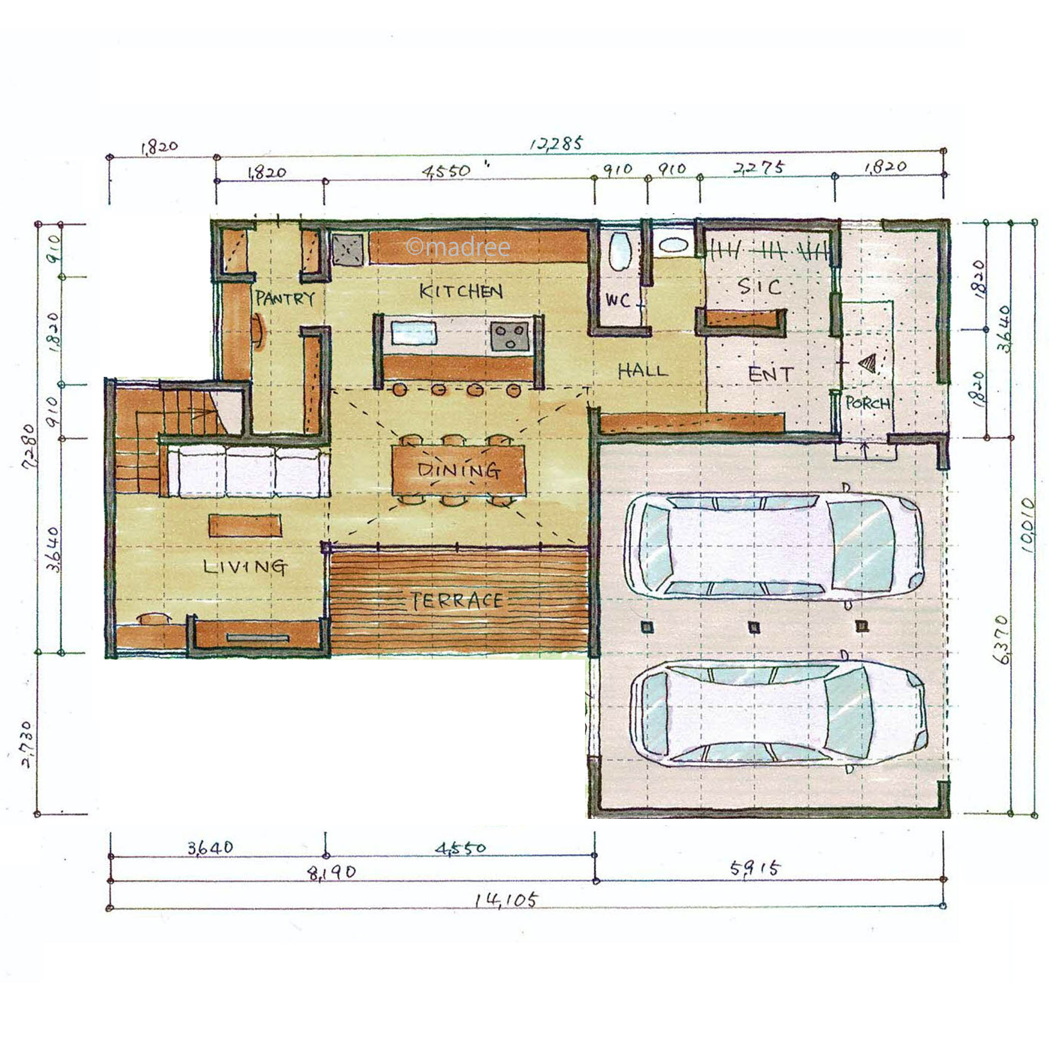
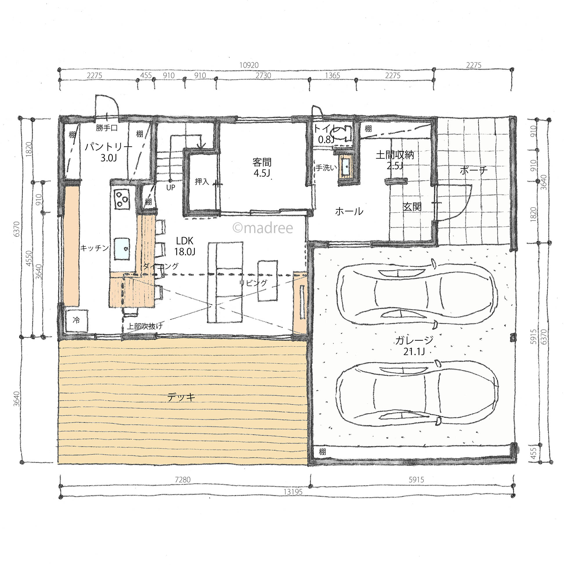
フレキシブルに用途を使い分けながら暮らしを創るビルトインガレージのある家
-
- 39坪~42坪
- 3LDK
三角地でも狭さを感じない家族の暮らしに寄り添う間取り
-
- 33坪~36坪
- 4LDK
暮らしやすさをコンパクトに詰め込んだL字型配置で一体感と独立性が共存した家
-
- 45坪~49坪
- 4LDK
家族時間を大切にできる陽当たりと風通しを意識した心地良い家
-
- 42坪~45坪
- 4LDK
2つのリビングで家族時間の幅が広がる2階中心で暮らす明るく開放感のある間取り
-
- 33坪~36坪
- 3LDK
スカイリビングの開放感に癒されつつ家事ラクルーム・家事ラク動線で暮らしが整う間取り
-
- 39坪~42坪
- 2LDK
家の中でも思い切り遊べるファミリーホールがある明るく開放感のある家
-
- 39坪~42坪
- 3LDK
三角地を活かす効率良い配置で家族みんなの暮らしにフィットする家
-
- 39坪~42坪
- 4LDK
収納たっぷりで散らかり知らずのシンプル動線で暮らしやすい間取り
マドリー開発の『住宅営業支援ツール』
madreeデータバンク
マドリーの人気間取り4,800プランを接客・提案に活用できる営業支援ツール
- 競合他社と差がつく、スピード提案
- トレンド間取りで、集客・受注数UP
- 建築家のアイデアを参考に、質の高い提案ができる
