一部2階建の間取り一覧
家族や自分の”好き”を叶える注文住宅の間取りが見つかる!暮らしの要望をもとに全国の建築家が作成した一部2階建の間取りを1017件公開しています。毎日更新中!
-
- 57坪
- 4LDK
- new
個々のプライベート時間を大切に、大人が人生を楽しむコの字型の家
-
- 50坪以上
- 4LDK
暮らしにメリハリつけるゾーニングで、将来はワンフロア生活を見据えた家
-
- 49坪
- 3LDK
パーソナルスペースで自分時間楽しむ、家族のプライベート重視した大人の家
-
- 36坪
- 4LDK
趣味や季節物をまとめて収納、ウォークイン納戸ですっきり整う家
-
- 36坪
- 4LDK
ルーフデッキから空の眺めを取り込む、特別な時間を生み出す2階リビングの家
-
- 45坪~49坪
- 3LDK
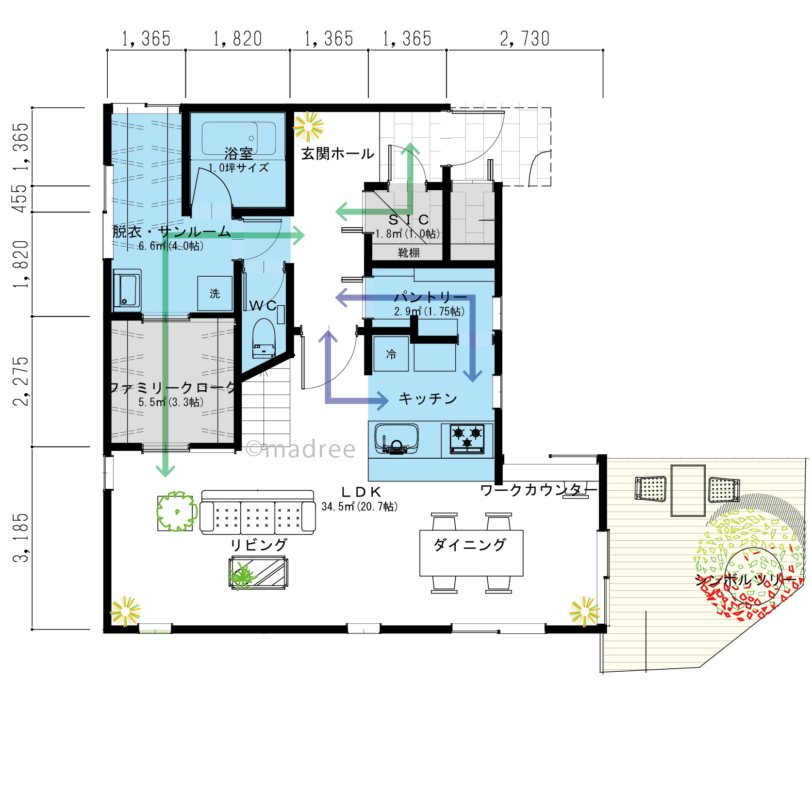
片付けながらの帰宅動線で自然に整う、吹抜とサンルームで明るく温かい家
-
- 45坪
- 2LDK
片付けながらのウォークスルー裏動線で、すっきりリビングを保つ家
-
- 33坪~36坪
- 2LDK
家族とコミュニケーションが自然に取れる、メリハリある生活を送る空間作りの家
-
- 42坪
- 3LDK
気軽にアウトドアに行ける、一瞬で片付くビルトインガレージのある家
-
- 35坪
- 2LDK
広いウッドデッキとリビングが一体化、木のぬくもり感じる開放的な家
-
- 33坪
- 2LDK
家事仕事しながらわんぱくキッズを見守る、ライフスタイルの変化に対応しやすい家
-
- 35坪
- 2LDK
回遊動線で生活がスムーズに、南向きのひだまりリビングの家
-
- 33坪
- ワンルーム
キッチンから家事育児に目配りしやすい、裏動線に生活感を隠した快適な家
-
- 34坪
- 3LDK
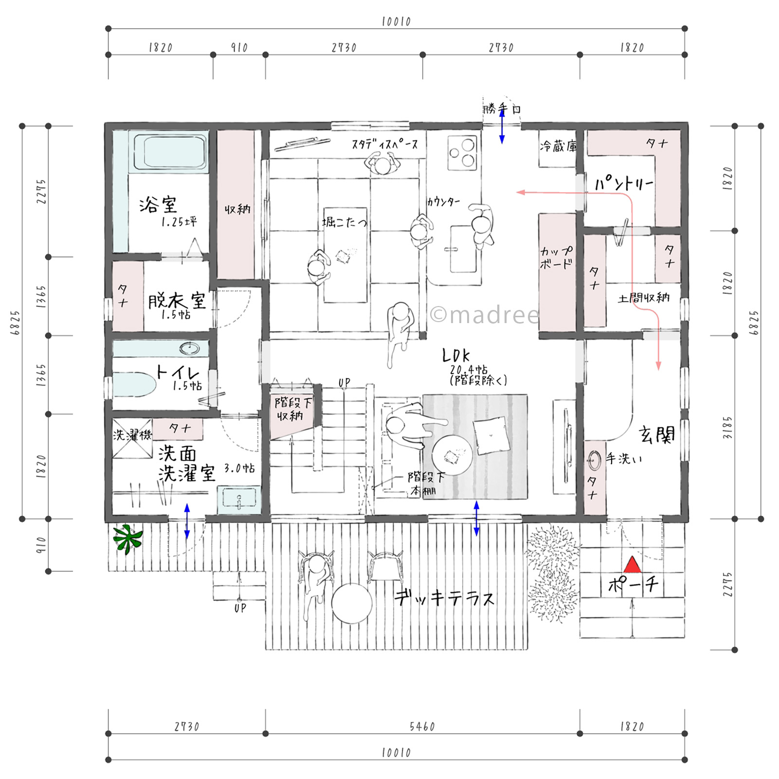
広々ランドリーで家事効率UP、リビングが散らからない片付く動線の家
-
- 42坪
- 5LDK
気配を感じつつも干渉しない動線で、程よい距離を保てる二世帯住宅
-
- 37坪
- 3LDK
キッチン中心に回遊家事捗る、共働きに嬉しいスムーズな帰宅動線の家
-
- 33坪
- 2LDK
子どもが遊びも学びものびのびできる、充実したおうち時間が叶う家
-
- 38坪
- 3LDK
片付けながらの帰宅動線でスッキリ整う、内外つながる明るく開放的な家
-
- 26坪
- 3LDK
おかえり動線で安心快適に過ごす、キッチンから家族見守る2階リビングの家
-
- 37坪
- 3LDK
ウィークスルーの帰宅動線で、手洗いと片付けが自然にできる家
-
- 24坪
- 2LDK
キッチン近くの水回りで時短家事叶う、自然光が心地よい2階リビングの家
-
- 39坪
- 3LDK
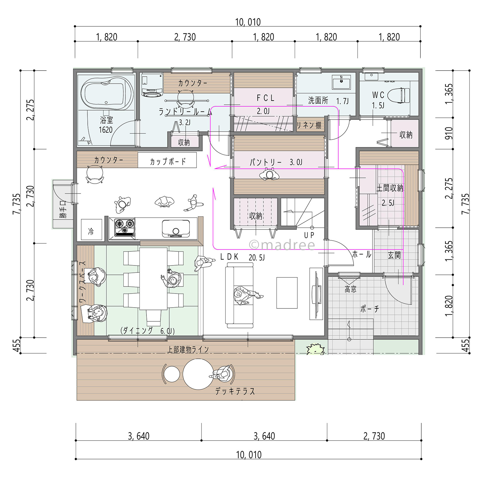
回遊できる家事室兼パントリー、ストレスフリーな暮らし叶う家
-
- 42坪
- 5LDK
家族間のプライベートを守りつつ、アウトドアリビングで団らん楽しむ二世帯住宅
-
- 36坪~39坪
- 3LDK
本棚コーナーや専用書斎で自分時間が充実!掘りごたつダイニングでほっこり落ち着ける間取り
マドリー開発の『住宅営業支援ツール』
madreeデータバンク
マドリーの人気間取り4,800プランを接客・提案に活用できる営業支援ツール
- 競合他社と差がつく、スピード提案
- トレンド間取りで、集客・受注数UP
- 建築家のアイデアを参考に、質の高い提案ができる
