一列に並んだ水廻りの間取り一覧
家族や自分の”好き”を叶える注文住宅の間取りが見つかる!暮らしの要望をもとに全国の建築家が作成した一列に並んだ水廻りの間取りを401件公開しています。毎日更新中!
-
- 43坪
- 6LDK
セカンドリビングでお泊まり会ができる、互いにのびのび暮らせる距離感の2世帯住宅
-
- 30坪
- 2LDK
ワーママもラク家事で家族時間生み出す、縦長の土地でも自然光が届く快適動線の家
-
- 32坪
- 3LDK
リビング横の小上がりも気持ち良い、公園と面する眺望を生かした二世帯住宅
-
- 39坪
- 5LDK
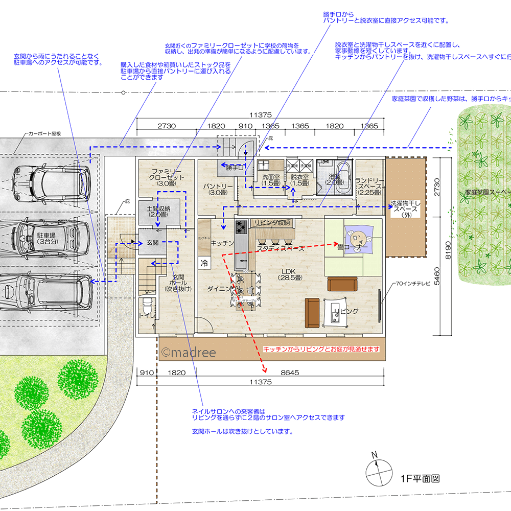
パントリーを介して水廻りへアクセス、家事も生活も回遊動線でLDKと繋がる家
-
- 45坪
- 4LDK
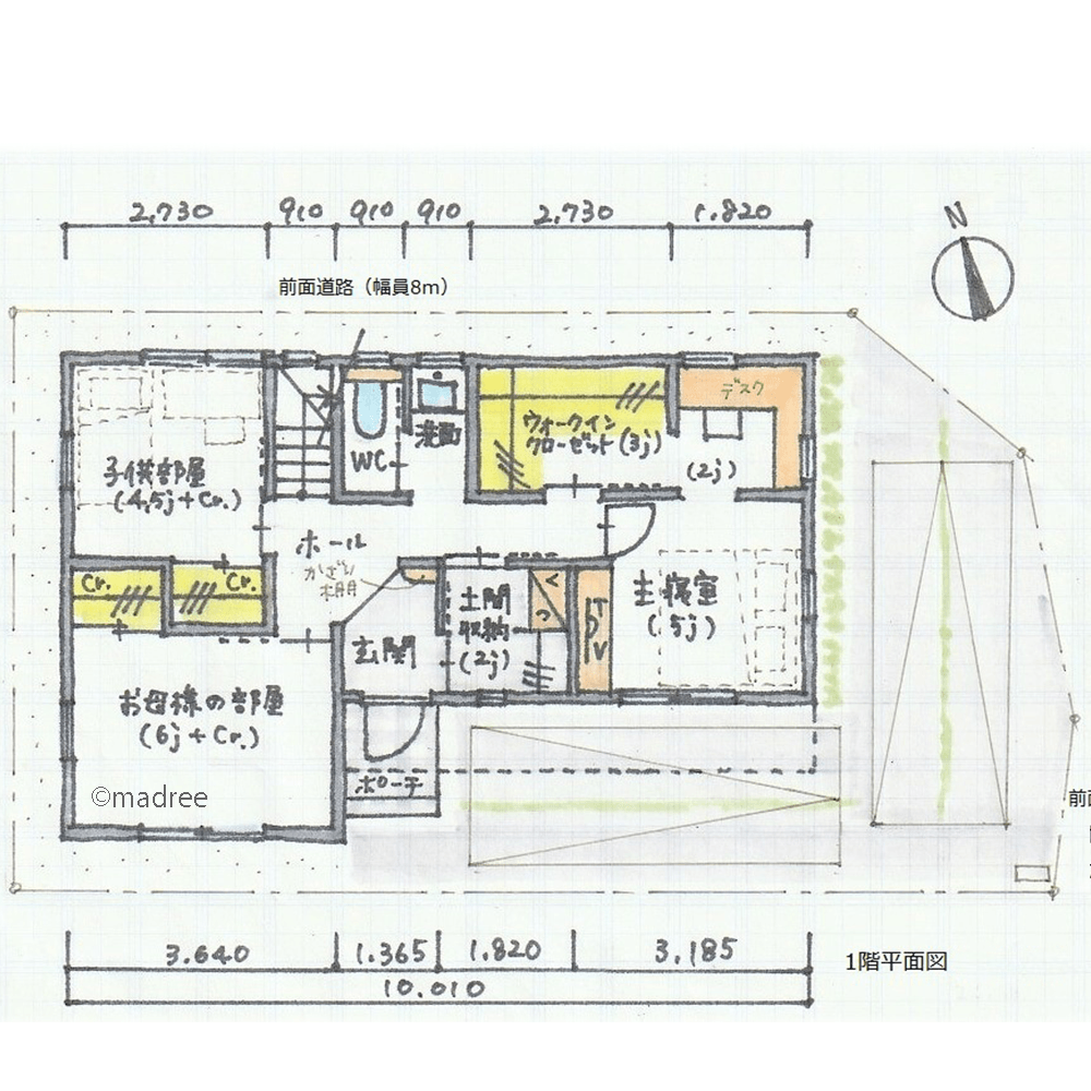
成長に合わせた空間演出、回遊性はそのままにレイアウトで変化を楽しむ家
-
- 31坪
- 4LDK
コンパクトな動線で時短家事、デッキと繋がる広々リビングで家族がゆったり過ごす家
-
- 42坪
- 3LDK
帰宅後の片付けが裏動線で習慣になる、急な来客でも困らない散らかるゾーンを隠せる家
-
- 34坪
- 4LDK
片付け迷子にならない充実収納、廊下もファミクロになるウォークスルーで整う家
-
- 38坪
- 5LDK
生活空間をさっと仕切り目隠し、気軽に人を呼べるおもてなし上手の家
-
- 35坪
- 2LDK
水廻りはプライベートフロアに集約、空の近い3階でのんびり入浴できる家
-
- 27坪
- 2LDK
森の中のような別荘感、自然豊かな眺望を生かしたリラクゼーションLDKの平屋
-
- 39坪
- 3LDK
適材適所の収納で生活整う、目的に合わせた空間使いでオンオフ切替えやすい家
-
- 40坪
- 3LDK
中2階は家族の共有ワークスペース、スキップフロアから光と開放感を取り込む家
-
- 32坪
- 3LDK
眺望良い2階で生活を完結、屋外階段から愛犬もストレスなく昇降できる家
-
- 42坪
- 4LDK
リビングでペットも一緒に家族団らん、個室で悠々自適なひとり時間も過ごせる家
-
- 36坪
- 2LDK
広めのパントリーが一時置きに活躍、散らかりがちな荷物をさっと隠せる家
-
- 39坪
- 3LDK
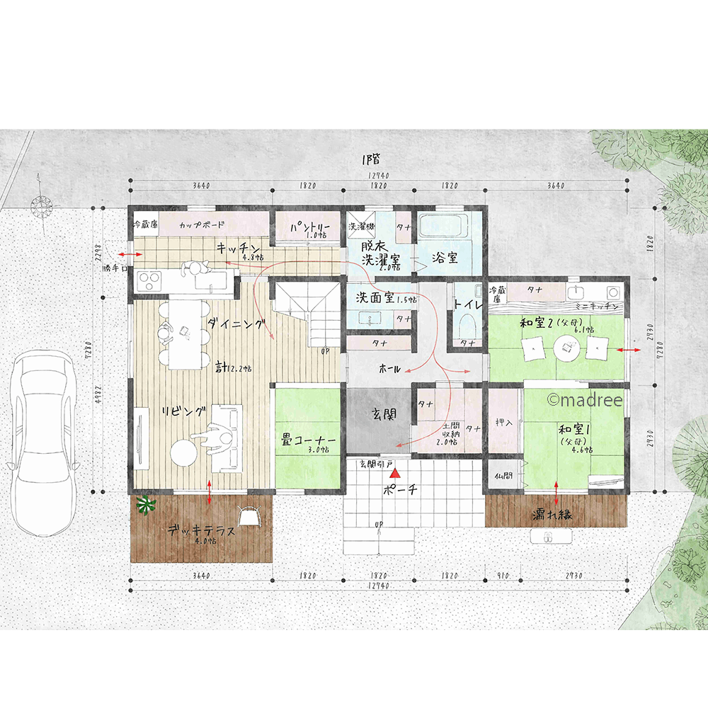
キッチンから庭まで目配りできる、回遊できる水廻りを裏動線にまとめた家
-
- 37坪
- 4LDK
全室南向きで気分も爽快に、川の字で寝る親子の思い出残る家
-
- 41坪
- 2LDK
ジメジメな梅雨も快適に洗濯、陽当たり良好なランドリーで部屋干しできる家
-
- 33坪
- 3LDK
少し篭れる家族共有の趣味空間、中二階のワークスペースで家時間楽しむ家
-
- 36坪
- 4LDK
広い玄関ホールで介護がスムーズに、プライバシー配慮した4世代同居の家
-
- 66坪
- 6LDK
吹抜と窓越しにお互いを感じる、2階中央に半個室のコートヤードがある家
-
- 36坪
- 3LDK
L字で繋がる家族のスムーズ帰宅後動線、整えながら浴室へ直行の家
-
- 48坪
- 5LDK
眺望良い2階が生活ベース、重い荷運びも楽々な半ビルトインガレージの家
マドリー開発の『住宅営業支援ツール』
madreeデータバンク
マドリーの人気間取り4,800プランを接客・提案に活用できる営業支援ツール
- 競合他社と差がつく、スピード提案
- トレンド間取りで、集客・受注数UP
- 建築家のアイデアを参考に、質の高い提案ができる
