- マドリーHOME
- 間取り一覧
間取り一覧
家族や自分の”好き”を叶える注文住宅の間取りが見つかる!暮らしの要望をもとに全国の建築家が作成した間取りを2307件公開しています。毎日更新中!
-
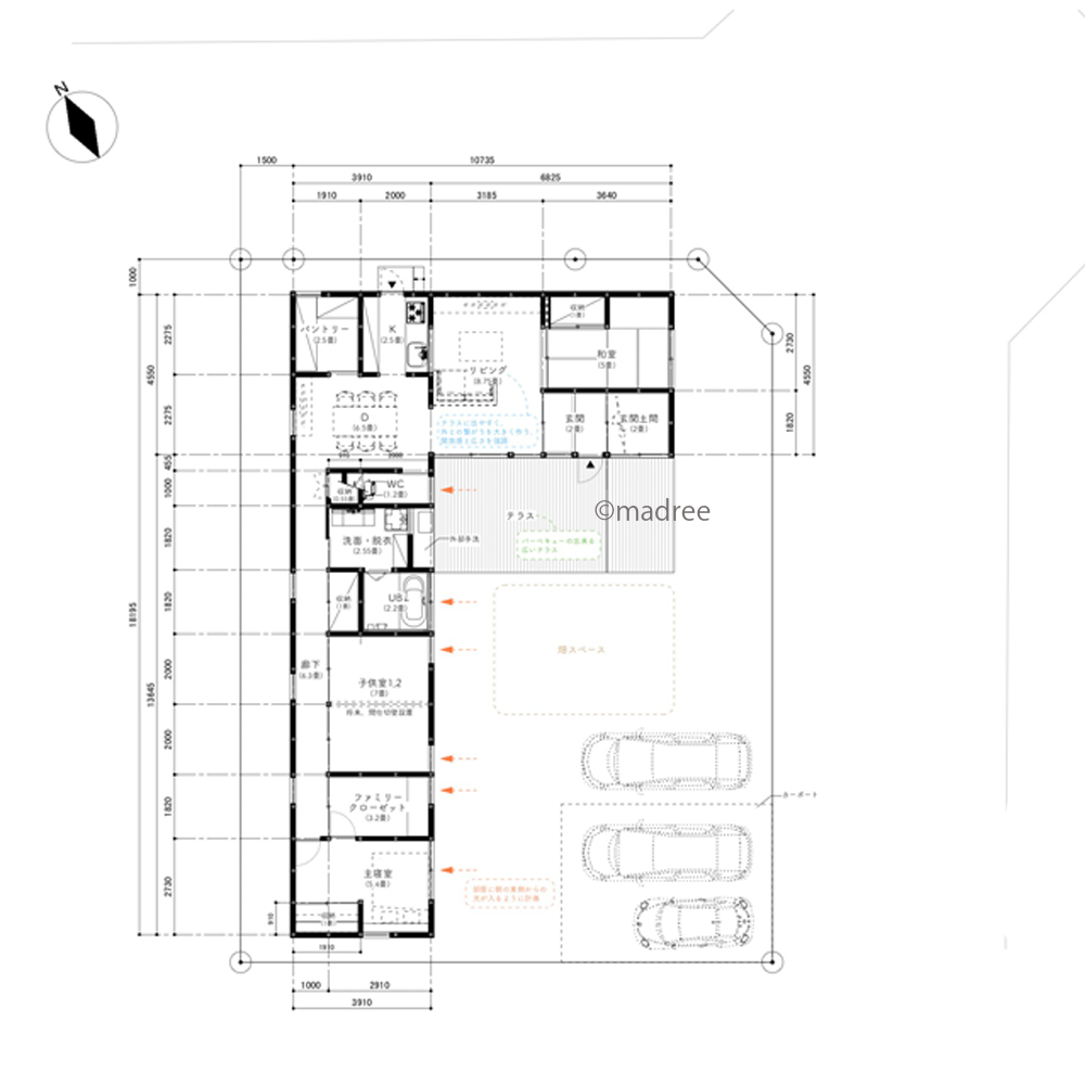
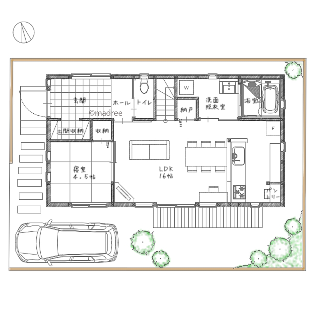
- 27坪〜30坪
- 3LDK
デッキをコの字で囲んで採光たっぷり確保、夫婦2人にちょうど良いZ型リビングの平屋
-
- 27坪〜30坪
- 2LDK
全室引き戸で掃除ロボット対応、適所適所の収納でスッキリ保つ家
-
- 31坪
- 2LDK
キッチンまわりで家事完結、暮らしの自由度高まる回遊動線の家
-
マドリーの人気間取りを接客・提案に活用できる営業支援ツール
-
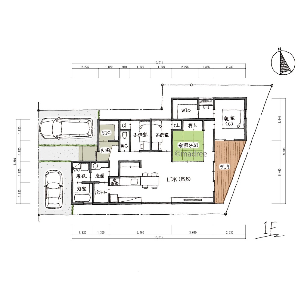
- 35坪
- 4LDK
北側窓と光庭から安定した光取り込む、視線気にせず開放的に過ごせる家
-
- 32坪
- 3LDK
動線まとめたメリハリ空間、屋上で優雅に非日常を楽しむ家
-
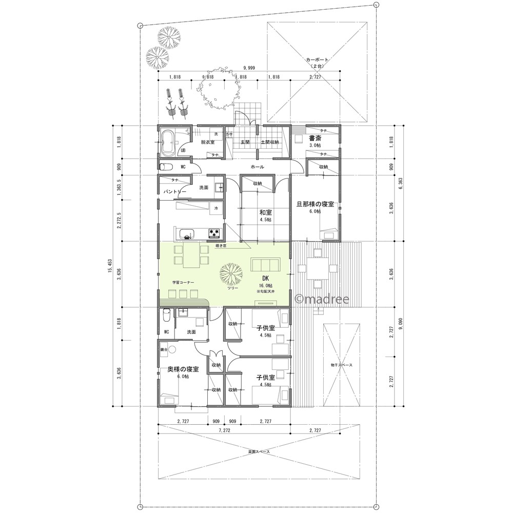
- 45坪
- 4LDK
建物を南北でON/OFFゾーン分け、中庭ウッドデッキで生活が繋がる平屋
-
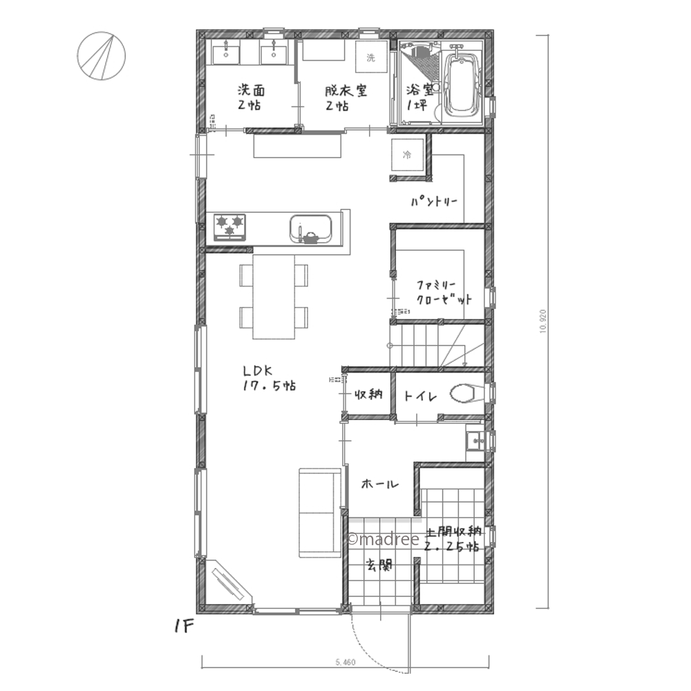
- 34坪
- 3LDK
キッチンまわりに家事動線を集約し、帰宅後すぐにオフモードになれる動線重視の家
-
- 30坪
- 2LDK
少し篭れる座床の集中空間、窓から緑庭を望む中2階書斎スペースのある家
-
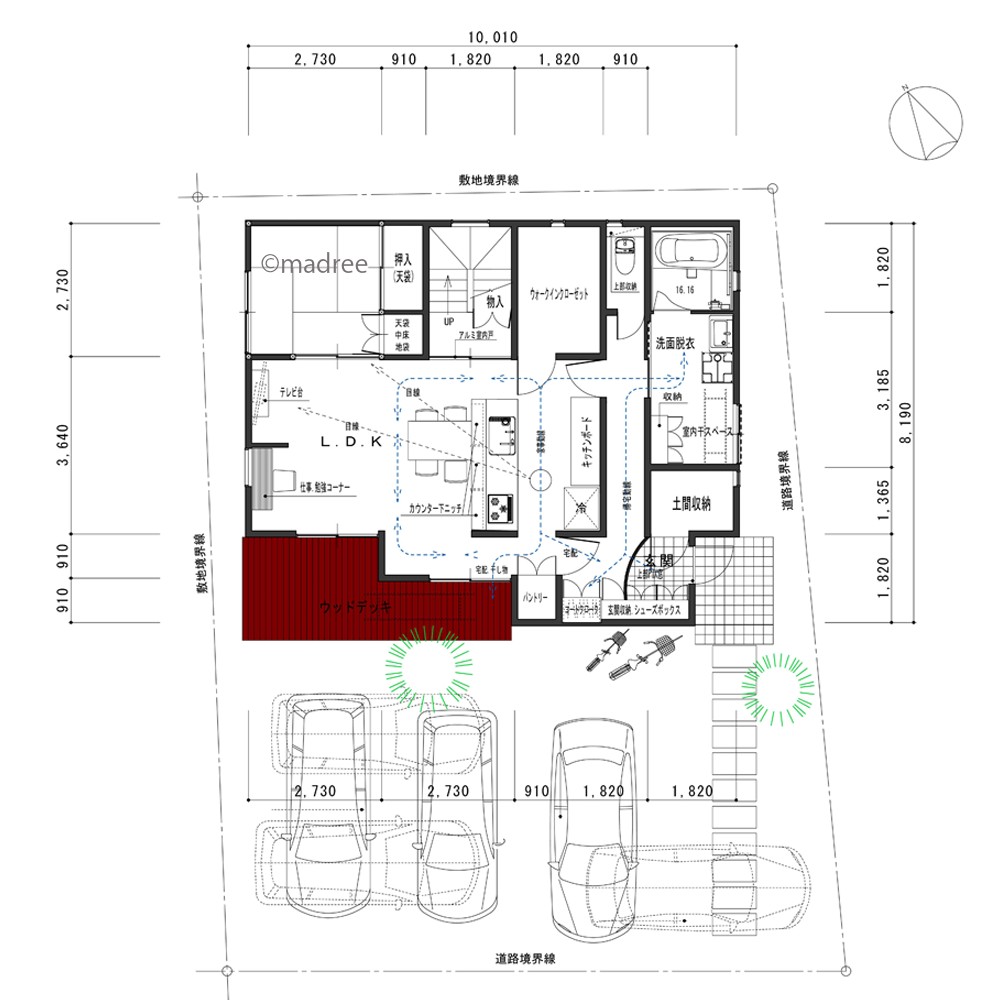
- 31坪
- 3LDK
緑見える玄関で抜け感を楽しむ、家族の絆深まるリビング経由の平屋
-
- 60坪
- 3LDK
ガゼボのある庭でリゾート気分満喫し、ママに嬉しいミセスコーナーも取り入れた家
-
- 33坪
- 3LDK
吹抜け開口窓から光を採り入れた、和室まで縦長く繋がる開放的LDKの平屋
-
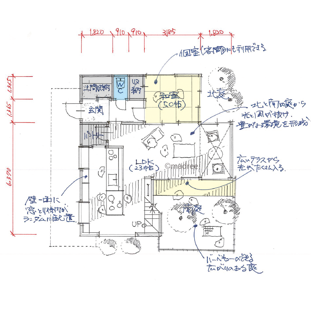
- 36坪
- 3LDK
木格子の仕切りで程良く家族の距離感キープ、中庭から光呼び込む縦長の家
-
マドリーの人気間取りを接客・提案に活用できる営業支援ツール
-
- 36坪
- 3LDK
プライベート確保したゾーニングで、いつでも来客を迎えられる平屋
-
- 36坪
- 3LDK
無駄のないL字型水廻り動線、生活空間を集約したほぼ平屋の家
-
- 33坪
- 3LDK
南北の高窓で奥行きを演出、サンルームに集まる楽家事動線のある家
-
- 33坪
- 3LDK
屋外に広がるのびのび空間、コンパクト家事動線でくつろぎ時間増える家
-
- 34坪
- 2LDK
冬も陽だまりリビングで暖かい、プライバシーと開放感を両立した中庭囲む家
-
- 35坪
- 3LDK
ママのお手伝いが楽しくなる、ウォークスルー家事ラク動線の平屋
-
- 50坪
- 5LDK
将来2世帯同居と介護を視野に入れ、家具家電をすっきりレイアウトした家
-
- 32坪
- 3LDK
LDKから広がるプライベート空間、家族が安心して過ごす中庭のある平屋
-
- 57坪
- 2LDK
適材適所収納と家事動線を重視、程よい距離感の完全分離二世帯住宅
-
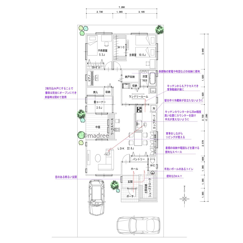
- 33坪
- 4LDK
家事シェアしやすい一直線の家事動線と、居心地良いおもてなし動線を考えた家
マドリー開発の『住宅営業支援ツール』
madreeデータバンク
マドリーの人気間取り4,800プランを接客・提案に活用できる営業支援ツール
- 競合他社と差がつく、スピード提案
- トレンド間取りで、集客・受注数UP
- 建築家のアイデアを参考に、質の高い提案ができる
