単世帯住宅の間取り一覧
家族や自分の”好き”を叶える注文住宅の間取りが見つかる!暮らしの要望をもとに全国の建築家が作成した単世帯住宅の間取りを1974件公開しています。毎日更新中!
-
- 27坪〜30坪
- 3LDK
ガレージから繋がる趣味の空間、快適な回遊動線で家事時間短縮の平屋
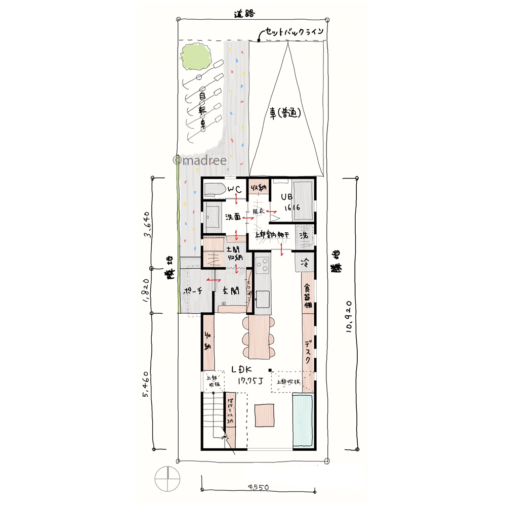
-
- 39坪
- 4LDK
雪道具もスッキリ片付く広々玄関土間、玄関から浴室へ裏動線で直行の家
-
- 36坪
- 3LDK
家事動線をまとめて暮らしやすさUP、大窓から光と風が注ぐ大空間LDKの平屋
-
- 38坪
- 2LDK
プライバシー守る中庭から光と風が注ぐ、心落ち着く趣味スペースのある家
-
- 39坪
- 5LDK
土間収納内猫用トイレで清潔な環境造り、家族でゆったり過ごす陽当たりの良い家
-
- 32坪
- 4LDK
天窓からの光で水回りも明るく、密集地を感じない南北に開放的な家
-
- 39坪
- 2LDK
建物中央から家中に光届ける、家族を身近に感じる中庭のある平屋
-
- 36坪
- 3LDK
オンオフを意識した間仕切りで、それぞれが快適に家時間過ごせる平屋
-
- 34坪
- 3LDK
中庭の緑楽しむ憩いの廊下、玄関中心に空間を分けた暮らしやすい平屋
-
- 30坪
- 3LDK
愛猫と共にのびのび暮らす、広々玄関で気持ちよく来客迎える平屋
-
- 27坪〜30坪
- 2LDK
キッチンから家中が視界良く広がる、平屋風に暮らすコンパクト空間の家
-
- 33坪
- 3LDK
隠せるキッズスペースで遊び放題、親子の笑顔溢れる内外つながる家
-
- 27坪〜30坪
- 3LDK
車椅子の子どもの自立生活を目指す、ゆとりある水回りの平屋のバリアフリー住宅
-
- 35坪
- 4LDK
緑豊かな中庭を望むコの字配置で、機能的かつ全方向に広がりもつ家
-
- 35坪
- 3LDK
朝日を浴びて1日をスタート、愛犬と暮らすドッグランのある平屋
-
- 27坪〜30坪
- 2LDK
車椅子でのコンパクト生活動線と、可変性間取りをもちあわせた家
-
- 38坪
- 4LDK
LDKをぐるりと回遊できる、果樹園を望む広大な平屋
-
- 32坪
- 3LDK
生活空間から離れた休まる寝室、ファミクロ起点スムーズ家事動線の平屋
-
- 39坪
- 3LDK
ペットの世話がしやすい、フレキシブルな土間リビングの家
-
- 30坪
- 2LDK
コロナ禍でも安心のすぐ手洗い動線、空間の広がり感じる開放的な平屋
-
- 27坪〜30坪
- 3LDK
中庭の緑が映える、変形地のおしゃれなL字型の家
-
- 27坪〜30坪
- 2LDK
自転車乗り入れOK、ギア収納からメンテナンスまで趣味を満喫する整備スペースのある平屋
-
- 31坪
- 3LDK
回遊動線で介護しやすく、可変性重視の三世代集える平屋
-
- 27坪〜30坪
- 3LDK
生活空間を1階に集約、将来も暮らしやすい平屋のような家
マドリー開発の『住宅営業支援ツール』
madreeデータバンク
マドリーの人気間取り4,800プランを接客・提案に活用できる営業支援ツール
- 競合他社と差がつく、スピード提案
- トレンド間取りで、集客・受注数UP
- 建築家のアイデアを参考に、質の高い提案ができる
