隠せるパントリーの間取り一覧
家族や自分の”好き”を叶える注文住宅の間取りが見つかる!暮らしの要望をもとに全国の建築家が作成した隠せるパントリーの間取りを1007件公開しています。毎日更新中!
-
- 27坪〜30坪
- 2LDK
光と風を十分に取り込むLDKだけの1階空間、家族の存在を自然と感じられる家
-
- 36坪
- 2LDK
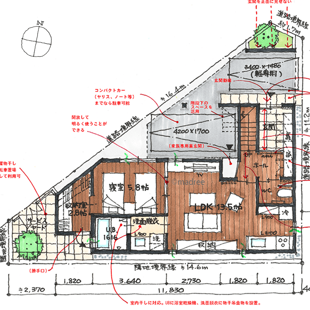
玄関から庭へのL字動線に収納を充実させた、将来は1階完結で暮らせる家
-
- 36坪
- 3LDK
開放的なサロン部屋をフレキシブルに活用、吹抜空間がランドリーにもなる家
-
- 41坪
- 4LDK
快適な回遊動線で家事の時間短縮、プライベートも家族時間も大切にできる家
-
- 27坪〜30坪
- 2LDK
狭小でも充実の収納でスッキリを保つ、吹抜ホールから家中に光を取り込む家
-
- 32坪
- 2LDK
少ない廊下と間仕切りで、動線をコンパクトに生活空間を広々と活用した家
-
- 40坪
- 3LDK
運動スペースにもなる回遊動線で、人もペットも屋内外を自由に移動できる家
-
- 24坪
- 2LDK
季節の庭で四季移ろいを楽しむ、カーテンなしで過ごすロの字型コートハウス
-
- 36坪
- 3LDK
一直線の家事動線でシンプルにお片付け、整う収納とさっと隠せるキッチンの家
-
- 37坪
- 3LDK
生活感を隠していつでも来客ウェルカム、個々の時間も有意義に過ごす家
-
- 36坪
- 4LDK
ながら家事できる主婦目線の動線と、プライベートも充実させる家
-
- 40坪
- 1LDK
安心安全なクローズ外構で家族守る、開放的な広い庭と大きな吹抜の平屋
-
- 45坪
- 4LDK
南向きの大開口で明るさを取り込む、バリアフリーで老後も快適な二世帯住宅
-
- 53坪
- 4LDK
2階の生活空間でプライベート時間充実、LDKとバルコニーが回遊動線で繋がる家
-
- 5LDK
吹抜で緩やかに繋がりを持つ、奥行きある採光LDKに自然と集う二世帯住宅
-
- 54坪
- 5LDK
屋外階段が家中を繋ぐのびやかな暮らし、子ども達がにぎやかに走り回れる家
-
- 35坪
- 2LDK
繋がる玄関土間でホームパーティー対応、LDKから庭までが一体空間になる家
-
- 45坪
- 5LDK
庭まで一直線のプライベートゾーン、来客の視界が届かない裏動線のある家
-
- 53坪
- 2LDK
気軽に交流できる距離感、お互いのプライベートを大切に過ごす二世帯住宅
-
- 37坪
- 4LDK
2つのプライベートテラスから光と風呼び込む、1階で生活完結する将来を見据えた家
-
- 36坪
- 2LDK
1日太陽の動きを感じる、視線が外に抜けて心地良い家
-
- 33坪
- 3LDK
ゆったり廊下で伸びやかに過ごす、家族みんなに優しいバリアフリーの家
-
- 48坪
- 1LDK
少ない廊下で生活動線を集約、玄関共有で過ごす三階建ての二世帯住宅
-
- 50坪
- 5LDK
屋内外で自分時間を満喫、家族の生活リズムを気にせず趣味を楽しめる家
マドリー開発の『住宅営業支援ツール』
madreeデータバンク
マドリーの人気間取り4,800プランを接客・提案に活用できる営業支援ツール
- 競合他社と差がつく、スピード提案
- トレンド間取りで、集客・受注数UP
- 建築家のアイデアを参考に、質の高い提案ができる
