中庭の間取り一覧
家族や自分の”好き”を叶える注文住宅の間取りが見つかる!暮らしの要望をもとに全国の建築家が作成した中庭の間取りを238件公開しています。毎日更新中!
-
- 58坪
- 6LDK
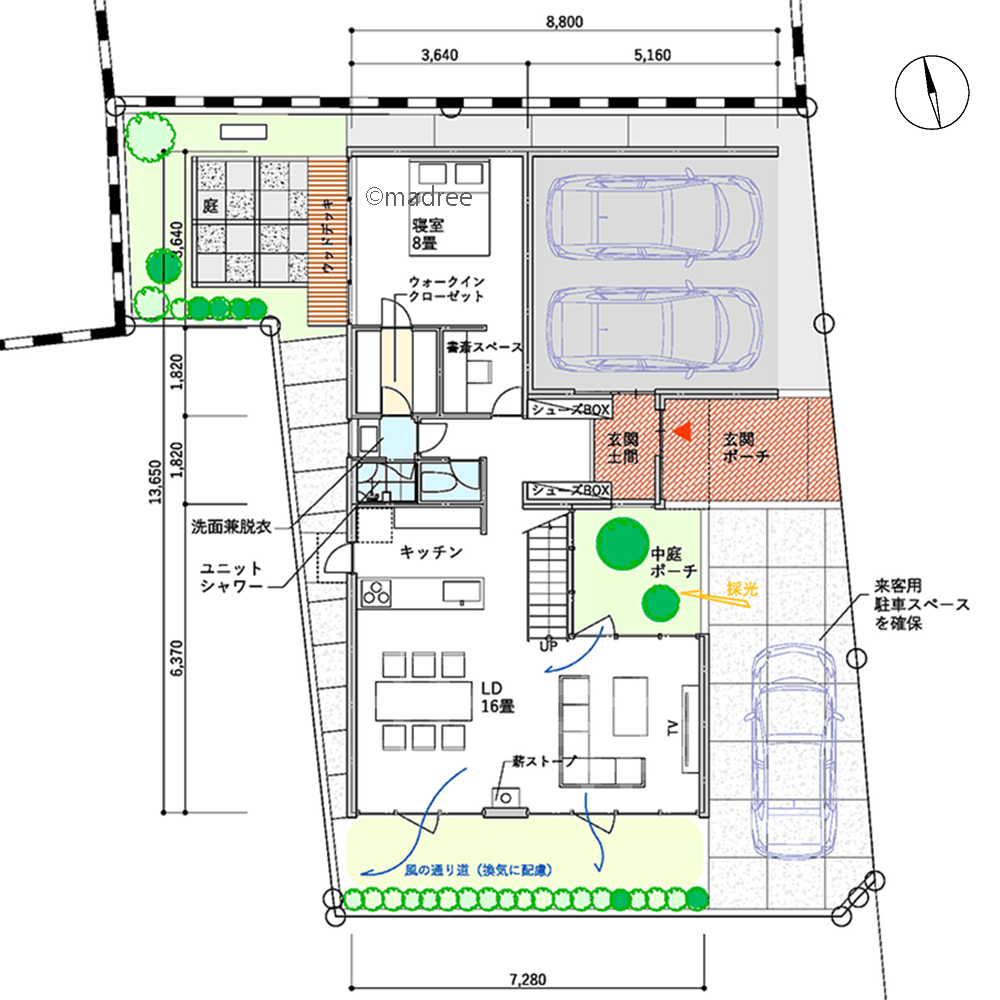
回遊動線で家事時間を短縮!開放的な自分時間を過ごせる平屋風暮らしの家
-
- 59坪
- 3LDK
南向きサンルームで一年中快適、花粉も梅雨も気にせず洗濯できる三階建ての家
-
- 42坪
- 5LDK
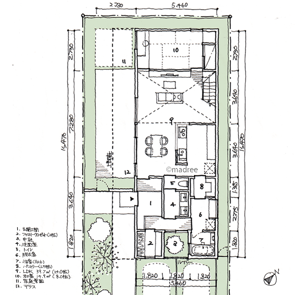
勾配天井からの光で明るいLDK空間、中庭を挟んで生活を分けた平屋のように暮らす家
-
- 64坪
- 4LDK
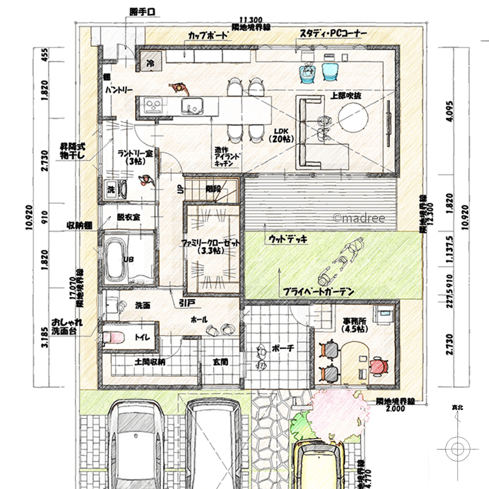
水廻りとファミクロを一体化、光と風の抜ける多目的な洗濯空間のある家
-
- 39坪~42坪
- 2LDK
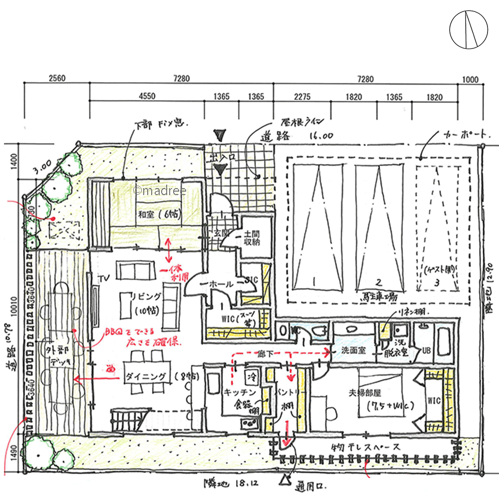
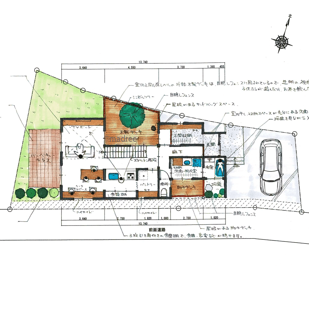
コの字で囲むプライベートな中庭テラスで、隣家を気にせず週末BBQを楽しむ家
-
- 40坪
- 2LDK
桜並木と中庭の風景取り込む、大窓から光溢れるカフェライクな家
-
- 38坪
- 3LDK
中庭デッキからの採光抜群、コの字の建物から桜並木のロケーションを楽しむ家
-
- 53坪
- 2LDK
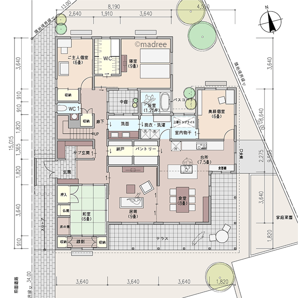
互いのプライバシーとライフスタイルを尊重、コの字の距離感が程良い二世帯住宅
-
- 39坪
- 3LDK
L字型LDKが囲むプライベードデッキで、眺望を活かしたお花見やBBQを楽しめる家
-
- 53坪
- 4LDK
縦にも屋外にも繋がる広々大空間、自然と家族を近くに感じる一体感LDKの家
-
- 42坪
- 3LDK
2階LDKと一体の少し篭れる出勤スペース、中庭の窓越しに家族を感じる仕事場のある家
-
- 27坪
- 3LDK
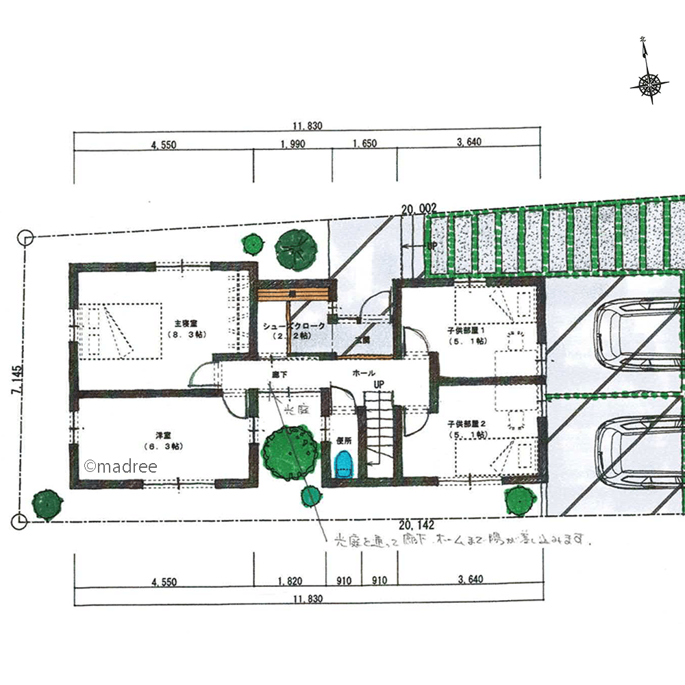
細長い土地を玄関中心にゾーン分け、全個室に朝日の届く自然な目覚めが得られる平屋
-
- 4LDK
脱衣室からウォークスルーでバルコニー、陽だまり2階ランドリーで毎日が楽家事の家
-
- 41坪
- 3LDK
傾斜な土地を生かした視線対策、LDKからプライベート感のある中庭テラスに繋がる家
-
- 31坪
- 3LDK
家族をつなげる中庭が憩いの場となる、老後まで安心して暮らせる1階完結の家
-
- 36坪
- 3LDK
大きな吹抜と大窓で縦横に空間広がる、光と風が心地良い在宅ワーカーの家
-
- 41坪
- 3LDK
庭に面するL字型デッキで屋内外を自由に回遊、奥行きあるLDKと南北の借景が繋がる平屋
-
- 42坪
- 3LDK
緑に向かって広がる伸びやかな眺望、リビングを中心に採光デッキを囲むコートハウス
-
- 42坪
- 4LDK
近隣を気にしない採光プライベート空間、パティオの開放感を家中で感じられる家
-
- 33坪
- 3LDK
光溢れるLDKから中庭デッキへ広がる眺望、四季の移ろいを楽しむ憩いの場がある家
-
- 39坪
- 3LDK
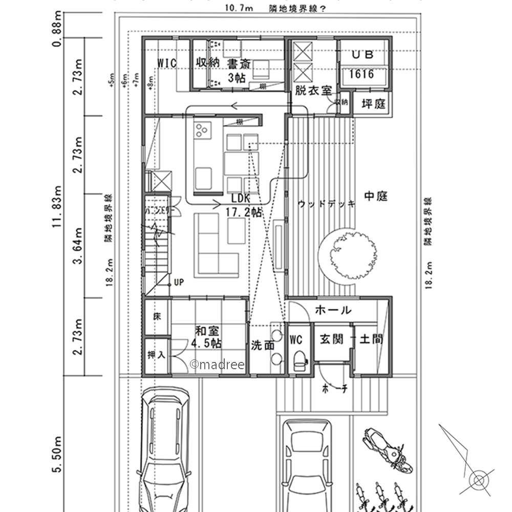
家のどこからでも自然を感じる、コの字の建物に囲まれたプライベート中庭のある家
-
- 35坪
- 2LDK
プライベート空間を隔てるホール扉で、家族も来客も安心して過ごせる事務所併設の注文住宅
-
- 32坪
- 2LDK
開口窓から採光デッキへ広がる一体感、ゆったりとした空間で老後を快適に過ごす平屋
-
- 60坪
- 5LDK
犬用動線で屋内外を自由にドッグラン、人にも犬にもパーソナル空間のある家
マドリー開発の『住宅営業支援ツール』
madreeデータバンク
マドリーの人気間取り4,800プランを接客・提案に活用できる営業支援ツール
- 競合他社と差がつく、スピード提案
- トレンド間取りで、集客・受注数UP
- 建築家のアイデアを参考に、質の高い提案ができる
