南道路の間取り一覧
家族や自分の”好き”を叶える注文住宅の間取りが見つかる!暮らしの要望をもとに全国の建築家が作成した南道路の間取りを857件公開しています。毎日更新中!
-
- 30坪~33坪
- 2LDK
シンボルツリーとデッキ、吹き抜けで明るく開放的!ラウンジの寛ぎスペースで一息つける縦長の間取り
-
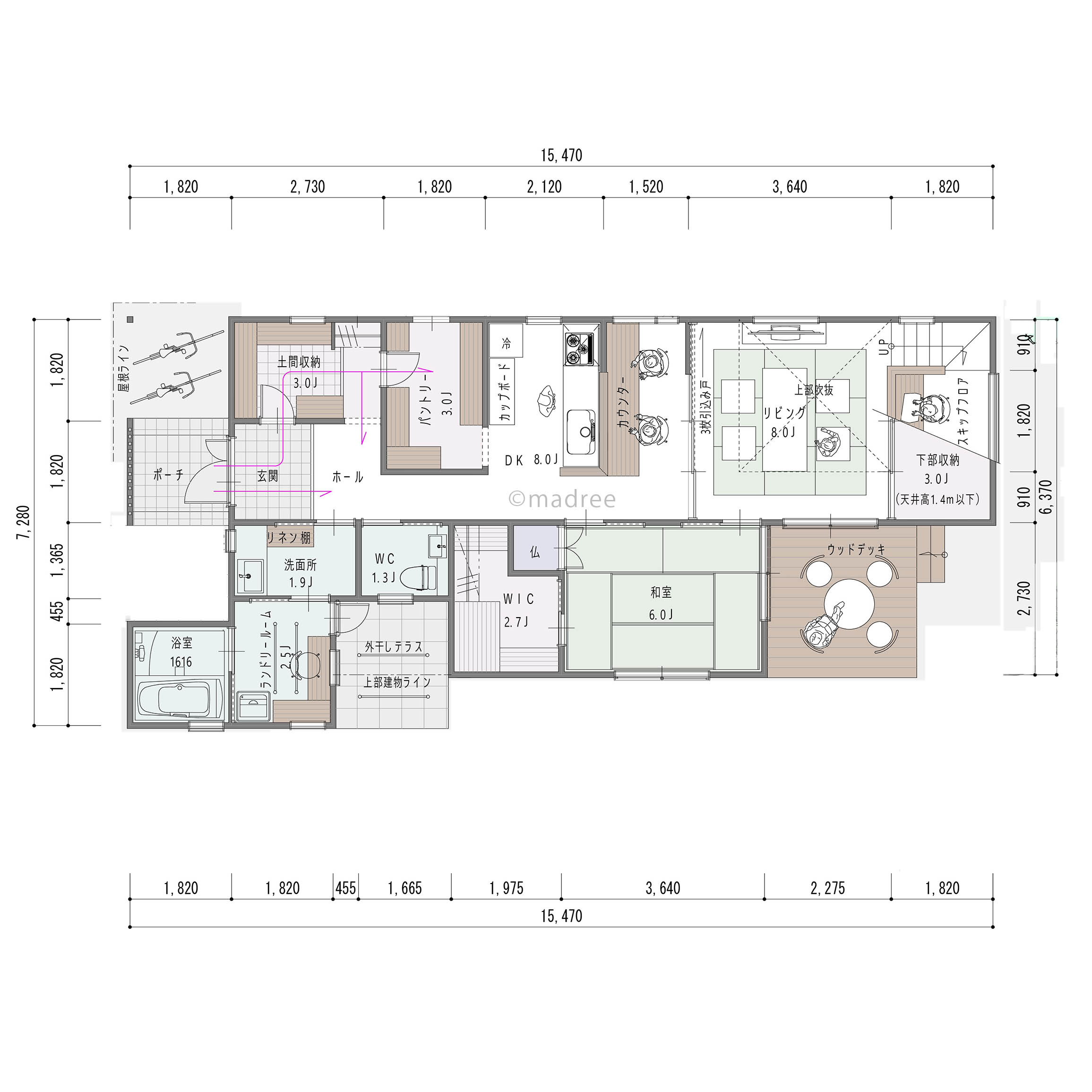
- 45坪~49坪
- 4LDK
アイランドキッチン中心で部屋中見渡せ家事も捗る!明るく機能的な空間が暮らしにフィットする家
-
- 39坪~42坪
- 3LDK
小屋裏収納付きでたっぷりしまえる細長間取りで家族それぞれが過ごしやすい二世帯の家
-
- 39坪~42坪
- 4LDK
アイランドキッチン中心の広々LDKと機能的な家事動線でワンランク上の豊かな生活が叶う家
-
- 27坪〜30坪
- 2LDK
コンパクトながら機能性と収納力と開放感のある住み心地が良い間取り
-
- 45坪~49坪
- 3LDK
適材適所のたっぷり収納でスッキリ片付くゆとりある暮らしが叶う家
-
- 39坪~42坪
- 4LDK
家族と共に成長するインナーガーデンとシンプル導線で開放感のある家
-
- 30坪
- 2LDK
中庭と吹き抜けで光を取り込む縦長敷地を活かした伸びやかな間取り
-
- 45坪~49坪
- 3LDK
坪庭を愛でる玄関と家中快適な家事動線でゆとりある暮らしが叶う明るく開放的な家
-
- 39坪~42坪
- 6LDK
ほどよい距離感の2世帯住宅とセカンドリビングでお泊まり会ができる家
-
- 39坪~42坪
- 3LDK
たっぷりの収納と機能的な空間と動線で暮らしにゆとりが持てる家
-
- 36坪~39坪
- 4LDK
南向きで採光を最大限に活かした和モダリゾートホテルライクの家
-
- 27坪〜30坪
- 2LDK
1階で生活完結!中庭と吹き抜けから光が差し込む縦長の間取り
-
- 45坪~49坪
- 4LDK
適材適所の収納と個々の時間も家族時間も過不足なく充実させた空間で暮らしにフィットする家
-
- 39坪~42坪
- 5LDK
個々の暮らしを大切にしながら心地良い距離感で暮らせて将来介護を意識した間取り
-
- 39坪~42坪
- 3LDK
庭と繋がり自然を感じられる南向きLDKと広々デッキで家族が心地良く暮らせる家
-
- 20坪以下
- 1LDK
無駄なくコンパクトに機能性を詰め込んだ光や風が気持ち良いリビングがある家
-
- 36坪~39坪
- 3LDK
将来1階のみで生活できる!階段真ん中で回遊性のある家事ラク間取り
-
- 36坪~39坪
- 4LDK
3世代家族が個々の時間も家族時間ものびやかに過ごせるキッチン中心と広々LDKの家
-
- 45坪~49坪
- 3LDK
子どもと時間をたくさん共有でき、リラックスと集中をわけられる廊下のない家
-
- 36坪~39坪
- 4LDK
将来を見据えた1階で暮らし完結可能!家族と心地良く繋がり、個々の時間も大切にできる家
-
- 24坪~27坪
- 3LDK
光と風を取り込んだ開放感溢れる居心地良い暮らしが叶う間取り
-
- 30坪~33坪
- 3LDK
中庭をコの字で囲み光と風を取り込むバリアフリーの家
-
- 27坪
- 3LDK
シンボルツリーのある中庭から降り注ぐ光と風が家中を心地良くしながら家族を繋げる平屋
マドリー開発の『住宅営業支援ツール』
madreeデータバンク
マドリーの人気間取り4,800プランを接客・提案に活用できる営業支援ツール
- 競合他社と差がつく、スピード提案
- トレンド間取りで、集客・受注数UP
- 建築家のアイデアを参考に、質の高い提案ができる
