隠せるパントリーの間取り一覧
家族や自分の”好き”を叶える注文住宅の間取りが見つかる!暮らしの要望をもとに全国の建築家が作成した隠せるパントリーの間取りを1006件公開しています。毎日更新中!
-
- 49坪
- 3LDK
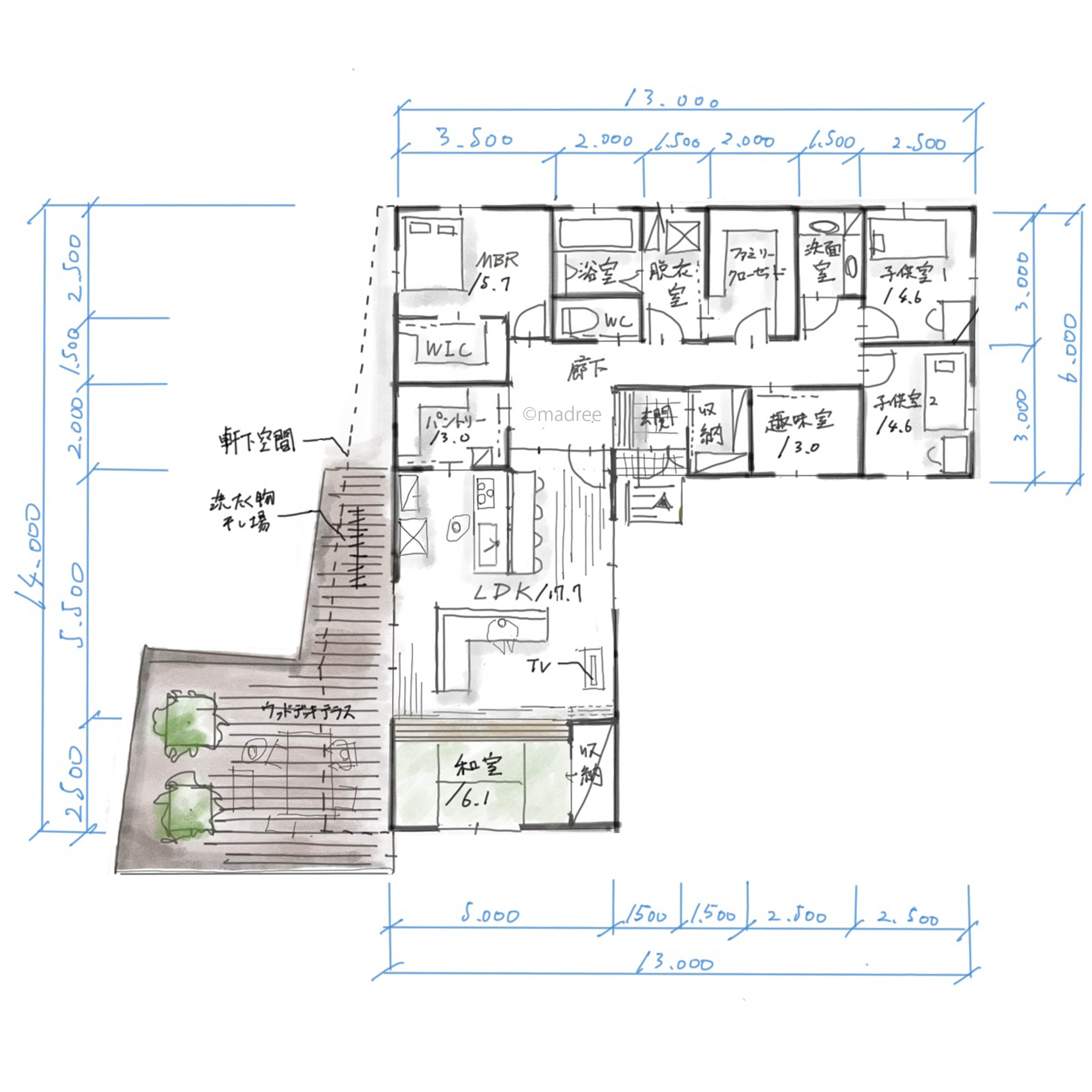
回遊性を活かした裏動線で家事ストレスを軽減、将来は平屋のように暮らせる家
-
- 43坪
- 3LDK
屋内ゴルフシュミレーターで趣味を満喫、帰るのが楽しみになる旗竿地の家
-
- 36坪
- 3LDK
共働き夫婦を支える快適動線で家事時間を軽減、週末の庭BBQを満喫できる家
-
- 39坪
- 1LDK
明るい2階LDKで温かな親子時間育む、ライフスタイルに寄り添う旗竿地の家
-
- 36坪
- 2LDK
大窓から光と風と景色取り込む、人が集まる賑やかなアウドドア好きの家
-
- 40坪
- 4LDK
変形地を活かして太陽の光を存分に取り込む、ひだまりのようなLDKのある平屋
-
- 38坪
- 4LDK
まとめ買い後の片付けが苦にならない、玄関近くに収納スペースを充実させた家
-
- 35坪
- 3LDK
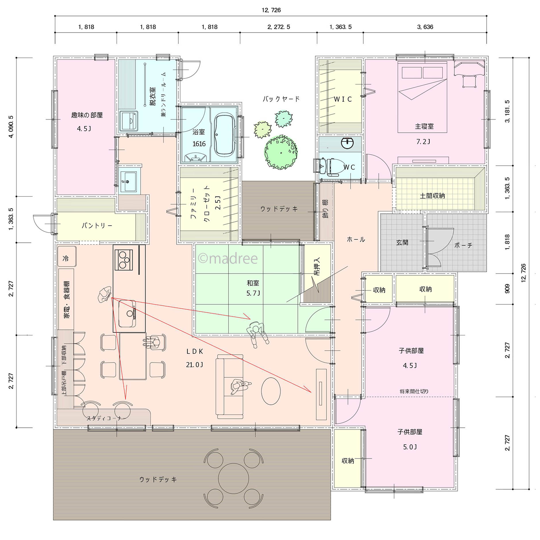
共働きで子育ての毎日が楽になる、便利な家事動線とプライベート中庭のある家
-
- 34坪
- 4LDK
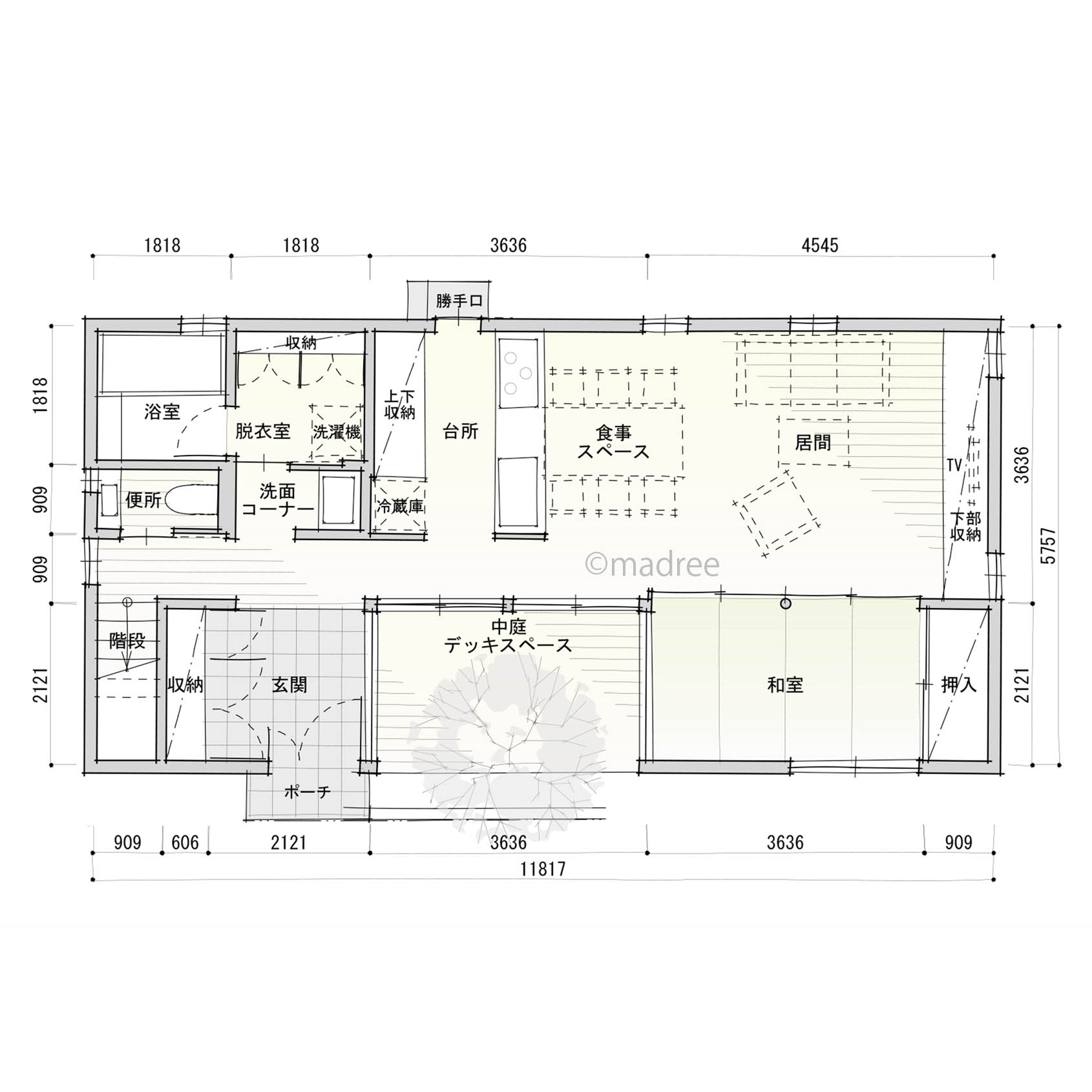
廊下を兼ねるウォークスルー収納で音対策、機能的な家事動線で繋がる平屋
-
- 35坪
- 3LDK
LDKを囲むように繋がる青空テラスで、自宅に居ながらアクティビティを楽しむ家
-
- 36坪
- 3LDK
アウトドア時間に最高の距離感、南側の全面ウッドデッキで屋内外を繋ぐ平屋
-
- 34坪
- 4LDK
吹抜と窓から部屋の奥まで暖かな光が届く、すべての居室が南向きで明るい家
-
- 39坪
- 4LDK
動きやすい生活&家事動線で自立心育む、自然に囲まれたアウトドア好きの平屋
-
- 35坪
- 4LDK
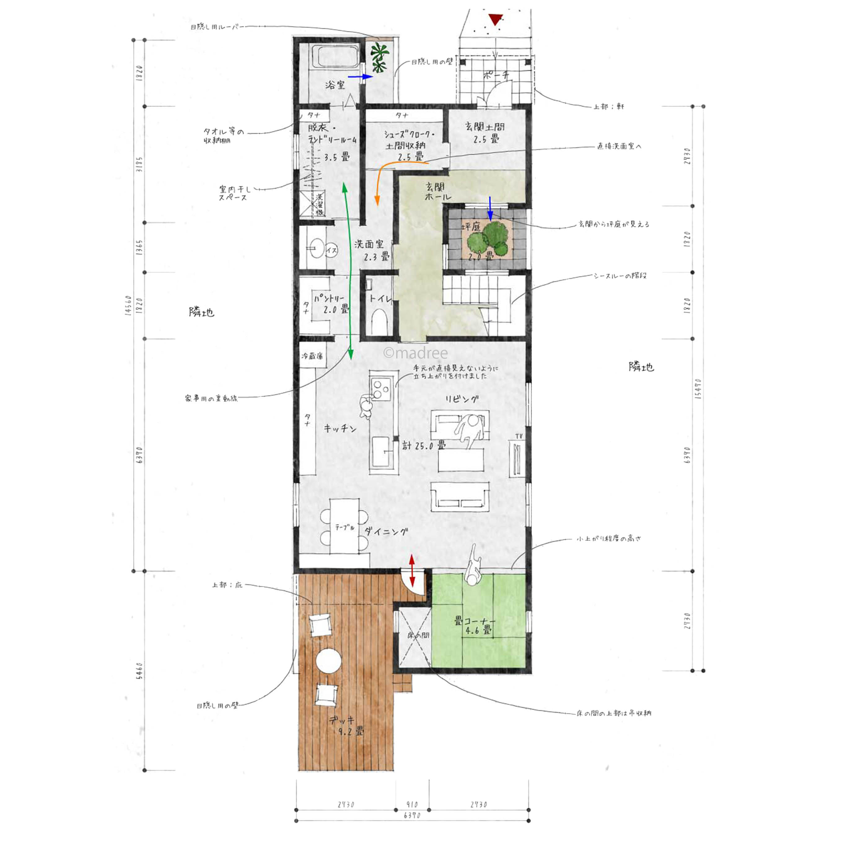
建物の中心に家事空間を集約、扉で生活音とプライバシーに配慮できる平屋
-
- 34坪
- 3LDK
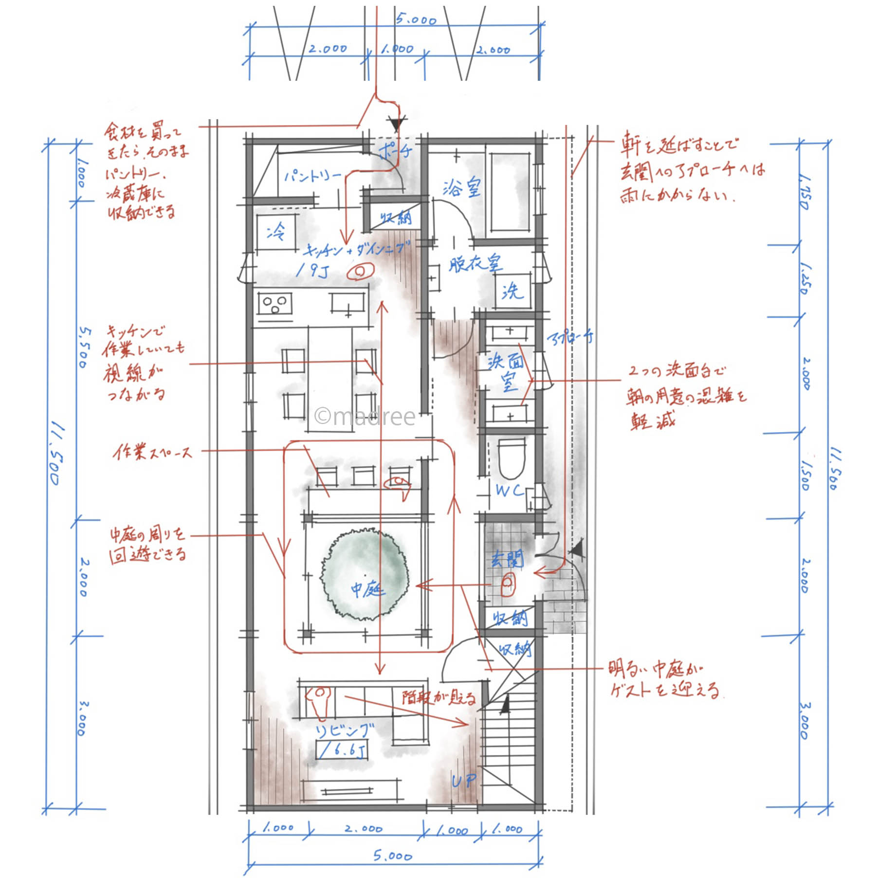
家のどこからでも緑や光を感じられる、生活の中心に中庭デッキのある家
-
- 27坪〜30坪
- 2LDK
アウトドア後の手入れもしやすい収納空間、車から直接土間へ片付けできる家
-
- 31坪
- 4LDK
中庭を介して家族の雰囲気を家じる、生活の中心に回遊プライベート空間のある家
-
- 37坪
- 3LDK
リビングに面して広がるくつろぎの場、南北デッキへ光と風が通り抜ける平屋
-
- 36坪
- 3LDK
来客は外階段から2階LDKへ直接アプローチ、1階が家族だけの空間となる家
-
- 27坪〜30坪
- 2LDK
気持ちよく風が流れる南北の開口窓で、2階LDKから四季の景観を楽しむ家
-
- 33坪
- 4LDK
自分時間を快適に過ごせる、家族それぞれにパーソナルスペースのある家
-
- 35坪
- 4LDK
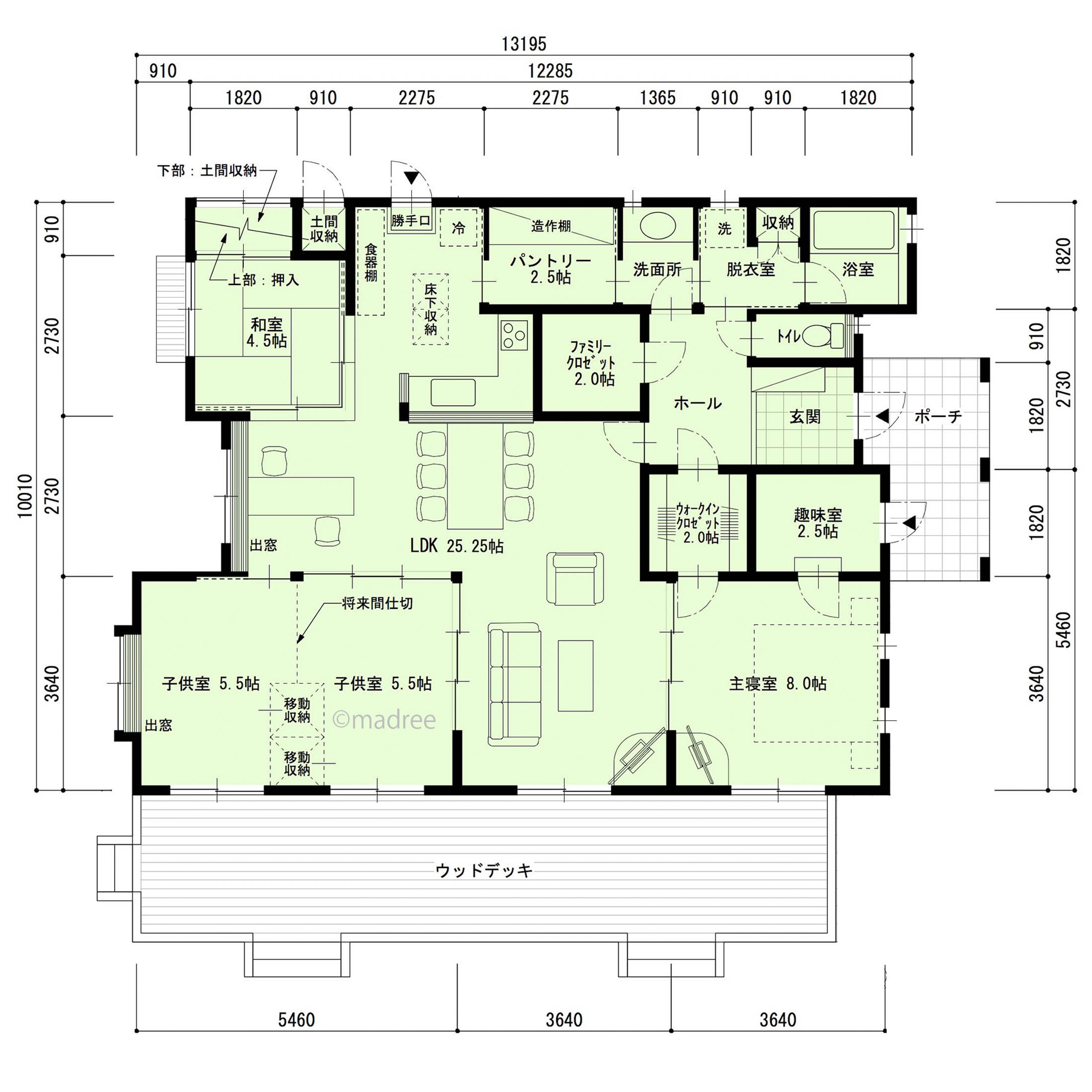
人の賑わうリビングに自然光行き渡る、中庭の魅力を活かすコの字型の家
-
- 48坪
- 3LDK
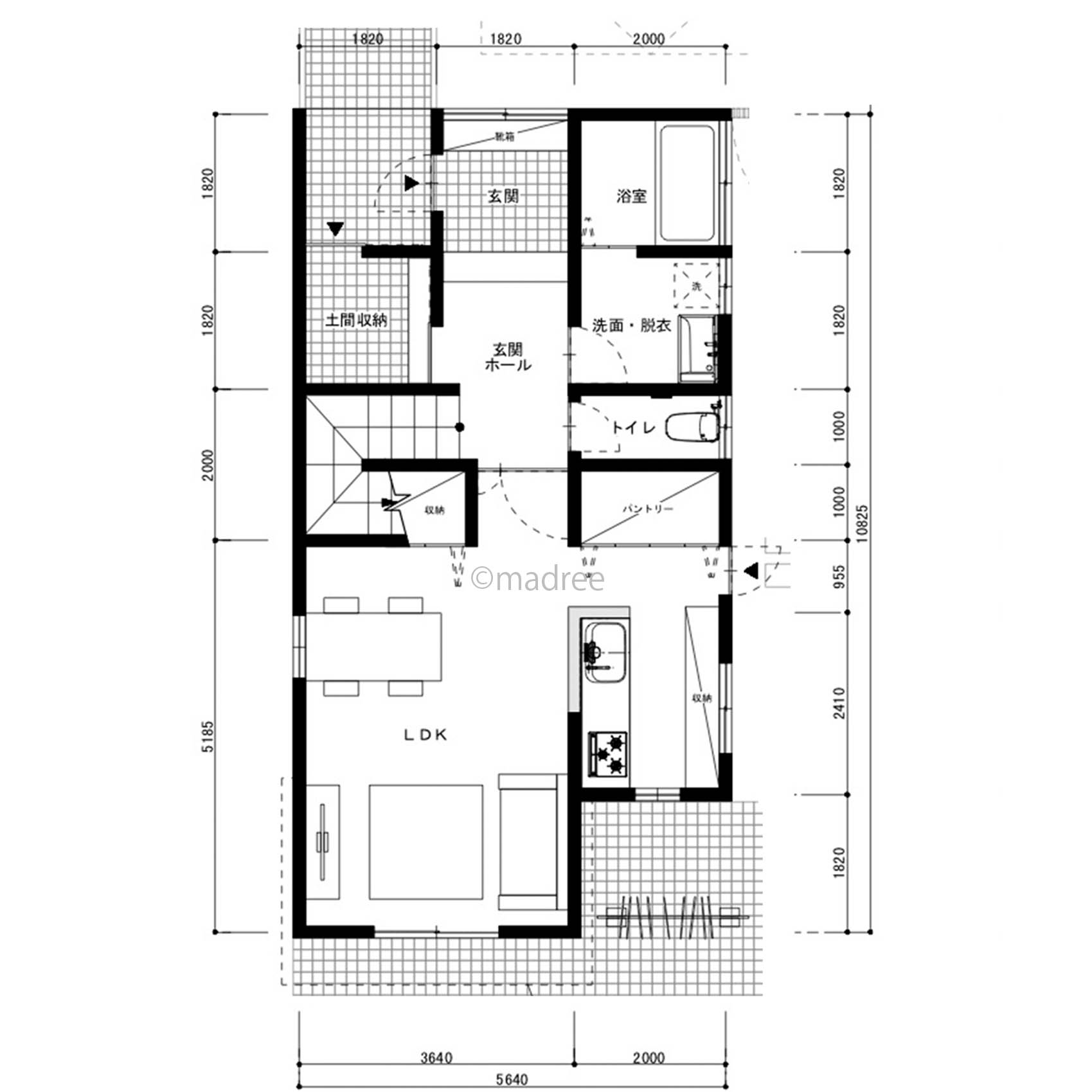
店舗と住居を行き来しやすい、生活音と家族のプライベートに配慮した家
-
- 2LDK
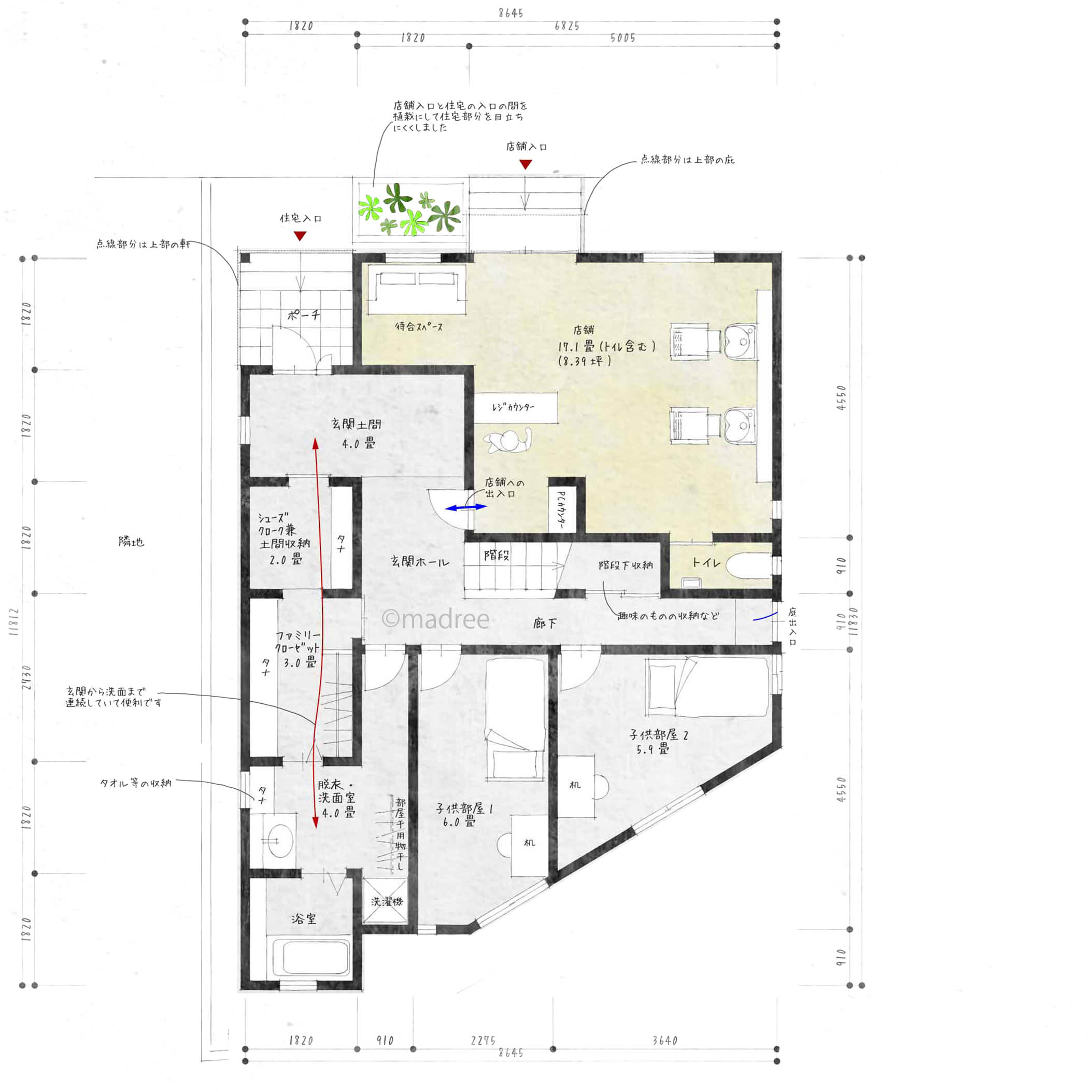
忙しいからこそ家事負担を軽減、キッチンと水廻りをスムーズに移動できる家
マドリー開発の『住宅営業支援ツール』
madreeデータバンク
マドリーの人気間取り4,800プランを接客・提案に活用できる営業支援ツール
- 競合他社と差がつく、スピード提案
- トレンド間取りで、集客・受注数UP
- 建築家のアイデアを参考に、質の高い提案ができる
