生活音を気にしない主寝室の間取り一覧
家族や自分の”好き”を叶える注文住宅の間取りが見つかる!暮らしの要望をもとに全国の建築家が作成した生活音を気にしない主寝室の間取りを79件公開しています。毎日更新中!
-
- 38坪
- 3LDK
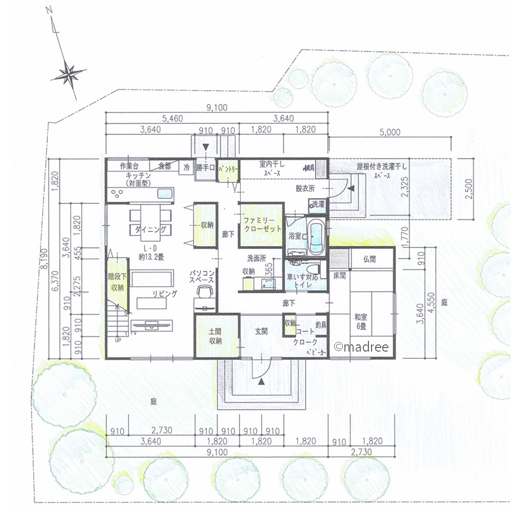
太陽の光と空気をたっぷり浴びる、緑に囲まれたアウトドア派の二世帯住宅
-
- 41坪
- 5LDK
それぞれの時間も大切に過ごす、床座でくつろぐおとな3人世帯の家
-
- 39坪
- 2LDK
家事シェアしやすいコンパクト動線、中庭とトップライトで明るい縦長平屋
-
- 36坪
- 3LDK
視線が抜けるリビングに家族集まる、土間付き勝手口が嬉しい扇形の平屋
-
- 54坪
- 4LDK
リゾートを感じるゆったり生活動線、庭のガゼボでリゾートらしさが増す家
-
- 33坪
- 2LDK
オープンキッチンよりフロア全体を見渡す、家族をいつも感じる2階リビングの家
-
- 37坪
- 3LDK
中庭を囲む明るい生活空間、自然を近くに感じながら過ごす平屋
-
- 43坪
- 5LDK
中庭でプライバシーと開放感を両立、充実した帰宅動線で家事ラクな家
-
- 40坪
- 4LDK
キッチンから一直線の洗濯動線と、各所の収納で暮らしが整う家
-
- 49坪
- 6LDK
屋上に広がるプライベート空間、スカイバルコニーで快適な週末過ごす家
-
- 41坪
- 3LDK
ワイドテラスとつながり開放感UP、キッチン中心にぐるぐる家事動線の平屋
-
- 30坪
- 4LDK
ON/OFF分けたメリハリある暮らし、回遊動線でストレスなく繋がる平屋
-
- 39坪
- 4LDK
海への眺望を家中で感じる、ゆとりある家時間を気分良く過ごす家
-
- 27坪〜30坪
- 2LDK
夏はリビングテラスで花火鑑賞、高天井で明るい2階生活スペースの家
-
- 36坪
- 4LDK
シンプルでベージュ映えるスマイルホーム
-
- 33坪
- 2LDK
通り道収納で家事効率UP!いくつもの空間と繋がる八の字回遊動線の平屋
-
- 39坪
- 2LDK
光と緑を取り込む心地良いLDK、変形地を活かした伸びやかな住まい
-
- 60坪
- 2LDK
ガレージから繋がる2箇所の玄関、家族動線と混らず自宅教室へ向かう家
-
- 31坪
- 3LDK
ロースタイルで家族と目線が合いやすい、ほっこり温まる畳リビングの家
-
- 40坪
- 4LDK
ホテルライクな自宅リゾート空間、自然の光で目覚める寝室吹抜のある家
-
- 43坪
- 3LDK
2階水廻りでLDK空間ゆったり、キッチン床を下げた縦の広がりを感じる家
-
- 40坪
- 5LDK
ルームシェア風の丁度良い距離感、家族それぞれ自分時間を充実できる家
-
- 28坪
- 2LDK
光と風が心地よく抜ける、別荘のような緑の借景で日々癒される平屋
-
- 40坪
- 3LDK
見通し良いキッチンでおもてなし上手に、人が集まる賑やかな広間口の平屋
マドリー開発の『住宅営業支援ツール』
madreeデータバンク
マドリーの人気間取り4,800プランを接客・提案に活用できる営業支援ツール
- 競合他社と差がつく、スピード提案
- トレンド間取りで、集客・受注数UP
- 建築家のアイデアを参考に、質の高い提案ができる
