中庭の間取り一覧
家族や自分の”好き”を叶える注文住宅の間取りが見つかる!暮らしの要望をもとに全国の建築家が作成した中庭の間取りを238件公開しています。毎日更新中!
-
- 45坪~49坪
- 3LDK
縦長のライトコートで光・風・広い視線を確保した間取り
-
- 4LDK
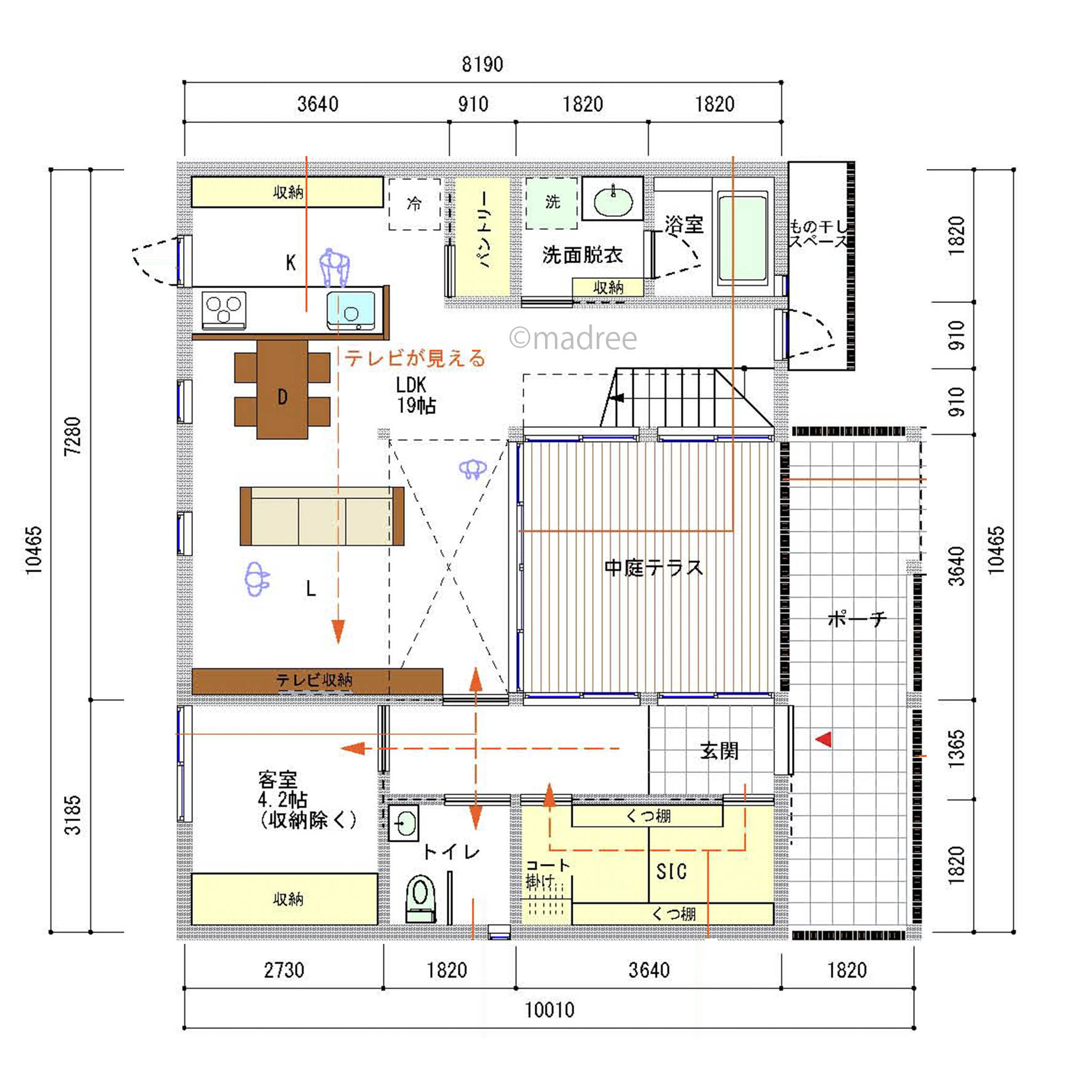
暮らしやすさと心地良さにこだわった動線で家族みんなが家時間を好きになる家
-
- 42坪~45坪
- 3LDK
狭小縦長の土地でも住み心地良い暮らしが叶うコートハウスタイプの家
-
- 42坪~45坪
- 1LDK
2つの中庭が暮らしを彩る、来客時も家族時間も緑に癒される住み心地良い家
-
- 30坪~33坪
- 3LDK
プライバシー性高いひだまりの庭でのんびり過ごせるコートヤード型住宅の間取り
-
- 45坪~49坪
- 4LDK
庭木を眺めながらシンプル且つ効率的な家事動線でゆとりある時間を過ごせる平屋
-
- 36坪~39坪
- 3LDK
住宅密集地でも日の当たる明るく開放的な空間で暮らしも趣味も楽しめる家
-
- 45坪~49坪
- 4LDK
プライバシーを確保した空間の中に開放感を感じられる平屋
-
- 39坪~42坪
- 3LDK
週末キャンプを楽しめる庭や趣味や暮らしを充実させる空間が満載の家
-
- 50坪以上
- 3LDK
ゆとりあるインナーガレージとライトコートを囲むのびやかなLDKの家
-
- 45坪~49坪
- 5LDK
家中に光が降り注ぐ中庭を中心とした明るく開放的なコートハウス
-
- 3LDK
土間とデッキの回遊空間でペットが元気に走り回る!スキップフロアでリズミカルな間取り
-
- 36坪~39坪
- 3LDK
吹抜けに面した2階ホールで仕事をする、家族がつながる中庭のある家
-
- 50坪以上
- 4LDK
ガレージ直結パントリーで買い物がラクになる、プライバシーを守るコートハウス
-
- 56坪
- 4LDK
縦長敷地に光が差し込むコートハウス、中庭でゾーン分けした2階リビングの家
-
- 39坪~42坪
- 3LDK
家族の気配を感じられる、緑あふれる中庭を眺めながら暮らす家
-
- 39坪
- 3LDK
バイクガレージが夫の自慢、中庭に沿ったLDKが開放的なコートハウス
-
- 46坪
- 3LDK
プライバシーを守りつつ、緑に囲まれたように暮らせる中庭のある家
-
- 37坪
- 3LDK
光庭で家中を明るく、水回り回遊動線で家事ラクの家
-
- 50坪以上
- 5LDK
テラスに面した大開口の明るいリビング、お客様をもてなしやすいL字型の家
-
- 36坪~39坪
- 3LDK
テラス直結のランドリールームで外干しも内干しも選べる平屋
-
- 50坪
- 4LDK
一直線の水回りで家事ラクに!デッキとつながる大空間リビングの家
-
- 44坪
- 4LDK
カーテンを開けてのびのび暮らす、中庭と一体となる家
-
- 31坪
- 3LDK
中庭があるからこそ、光と風を感じる暮らしを叶えた平屋
マドリー開発の『住宅営業支援ツール』
madreeデータバンク
マドリーの人気間取り4,800プランを接客・提案に活用できる営業支援ツール
- 競合他社と差がつく、スピード提案
- トレンド間取りで、集客・受注数UP
- 建築家のアイデアを参考に、質の高い提案ができる
