洗面所広めの間取り一覧
家族や自分の”好き”を叶える注文住宅の間取りが見つかる!暮らしの要望をもとに全国の建築家が作成した洗面所広めの間取りを741件公開しています。毎日更新中!
-
- 32坪
- 3LDK
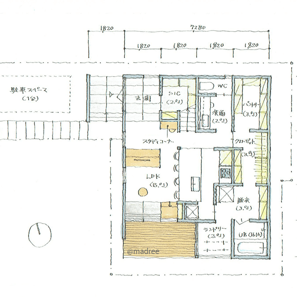
兼用カウンターで空間活用、開口デッキから光取り込む明るい旗竿地の家
-
- 36坪
- 3LDK
コンパクトな動線で日常生活の手間を省く、暮らしの中心に階段のある家
-
- 43坪
- 4LDK
自然に集まりたくなる共有空間、屋内外が開放的に繋がる2階LDKの家
-
- 27坪〜30坪
- 4LDK
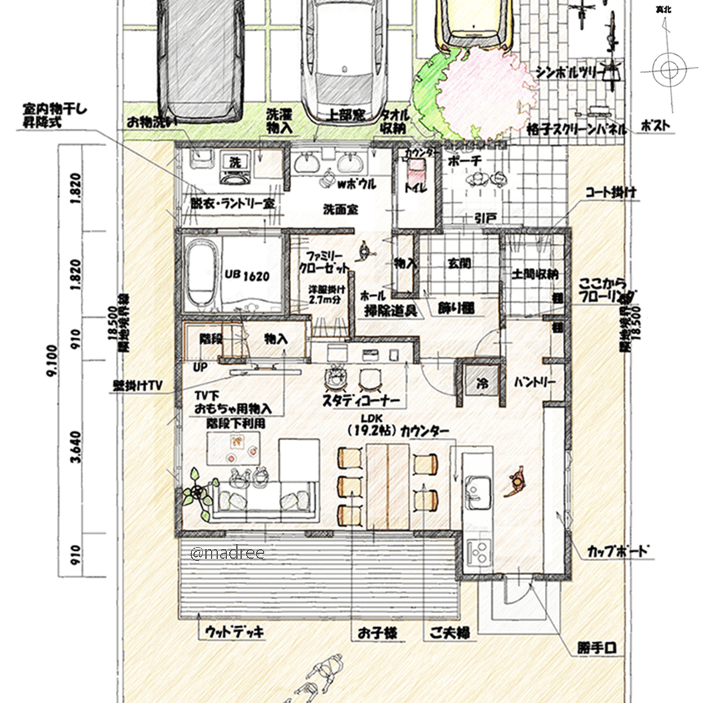
自然と身に付く清潔習慣、玄関洗面台で帰宅後すぐに手洗いできる家
-
- 46坪
- 4LDK
片付く帰宅動線とスタディスペース、生活感なし来客ウェルカムの家
-
- 33坪
- 2LDK
家時間はできる限り同じ空間で、生活リズムが異なっても過ごしやすい家
-
- 33坪
- 4LDK
屋上まで快適に行き来できる、ホームエレベーターで老後生活も安心の家
-
- 60坪
- 2LDK
ガレージから繋がる2箇所の玄関、家族動線と混らず自宅教室へ向かう家
-
- 36坪
- 3LDK
屋外空間で気軽に寛ぐ、2階LDKと繋がる快適インナーバルコニーのある家
-
- 48坪
- 4LDK
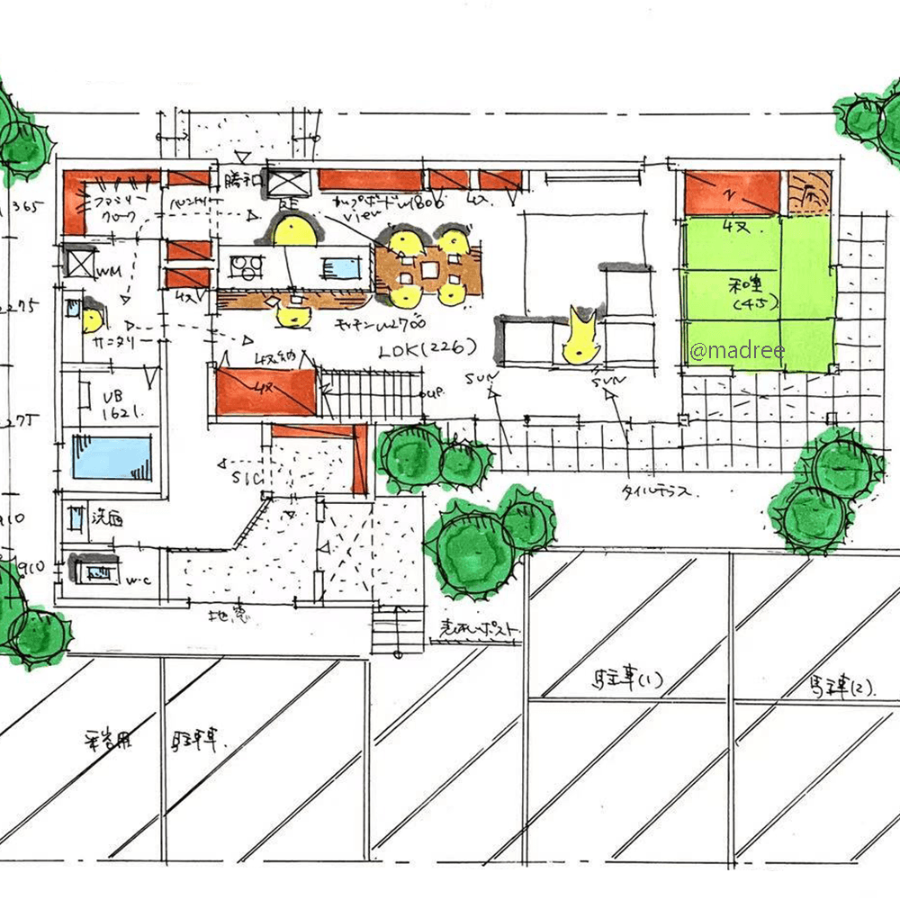
光と風と緑をたっぷり感じる、人が集まるおもてなし上手の家
-
- 41坪
- 3LDK
キッチン中心にぐるっと回遊家事、デットスペースも大活用した機能的な家
-
- 45坪
- 3LDK
ファミクロ回遊で家事と生活の効率化、将来はほぼ平屋のように使える家
-
- 56坪
- 5LDK
ぐるぐる動線で水廻り渋滞回避、程よい距離キープした明るい二世帯住宅
-
- 36坪
- 3LDK
動線も居心地も家族と共に変化、レイアウトを自由に楽しむ縦長LDKの家
-
- 34坪
- 4LDK
自然に水廻りへ向かう帰宅動線、子育てと家事が快適な同居予定の二世帯住宅
-
- 39坪
- 3LDK
食後もそのまま畳でのんびり、団欒増える掘り炬燵ダイニングのある家
-
- 60坪
- 5LDK
ダイナミックな中庭で魅せる来客動線、豊かな時間流れる自然に満ちた家
-
- 36坪
- 4LDK
家族と過ごす時間が増える、効率良く家事を熟せる回遊動線のある家
-
- 40坪
- 4LDK
ホテルライクな自宅リゾート空間、自然の光で目覚める寝室吹抜のある家
-
- 43坪
- 3LDK
2階水廻りでLDK空間ゆったり、キッチン床を下げた縦の広がりを感じる家
-
- 31坪
- 2LDK
on/off切り替えやすい空間工夫、猫3匹と趣味堪能する夫婦の家
-
- 40坪
- 4LDK
リモートワークの運動不足を解消、プライベートも充実したサロン併用の家
-
- 63坪
- 6LDK
プライベート充実する採光中庭で、気持ち穏やかに老後生活を過ごす家
-
- 74坪
- 2LDK
扉越しにお互いの気配を感じる、介護を見据えた多世帯で住む家
マドリー開発の『住宅営業支援ツール』
madreeデータバンク
マドリーの人気間取り4,800プランを接客・提案に活用できる営業支援ツール
- 競合他社と差がつく、スピード提案
- トレンド間取りで、集客・受注数UP
- 建築家のアイデアを参考に、質の高い提案ができる
