リビング吹抜なしの間取り一覧
家族や自分の”好き”を叶える注文住宅の間取りが見つかる!暮らしの要望をもとに全国の建築家が作成したリビング吹抜なしの間取りを1314件公開しています。毎日更新中!
-
- 50坪
- 3LDK
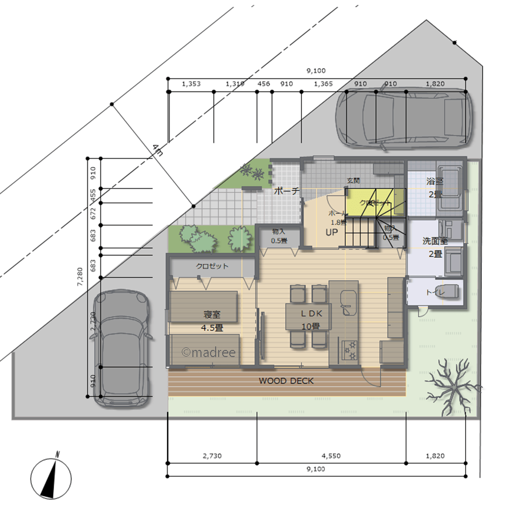
家族とコミュニケーション深まるキッチン配置で、将来は平屋のように使える大屋根の家
-
- 44坪
- 4LDK
高天井のリビングに陽光たっぷり取り込む、スキップフロアで広く空間活用した家
-
- 49坪
- 3LDK
回遊性を活かした裏動線で家事ストレスを軽減、将来は平屋のように暮らせる家
-
- 39坪
- 1LDK
明るい2階LDKで温かな親子時間育む、ライフスタイルに寄り添う旗竿地の家
-
- 36坪
- 2LDK
大窓から光と風と景色取り込む、人が集まる賑やかなアウドドア好きの家
-
- 33坪
- 4LDK
キッチンにいながら洗濯も子守もできる、ワーママに嬉しい効率良い家事動線の家
-
- 40坪
- 4LDK
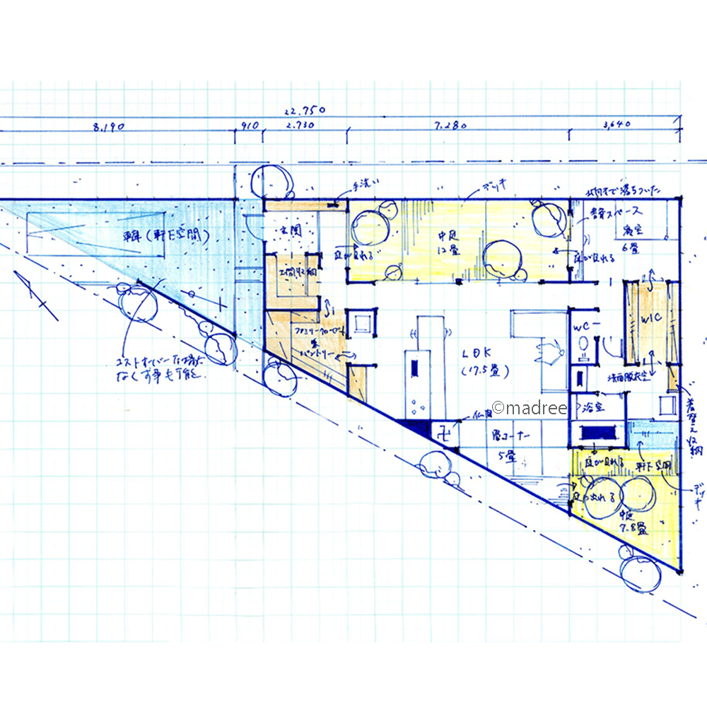
変形地を活かして太陽の光を存分に取り込む、ひだまりのようなLDKのある平屋
-
- 35坪
- 3LDK
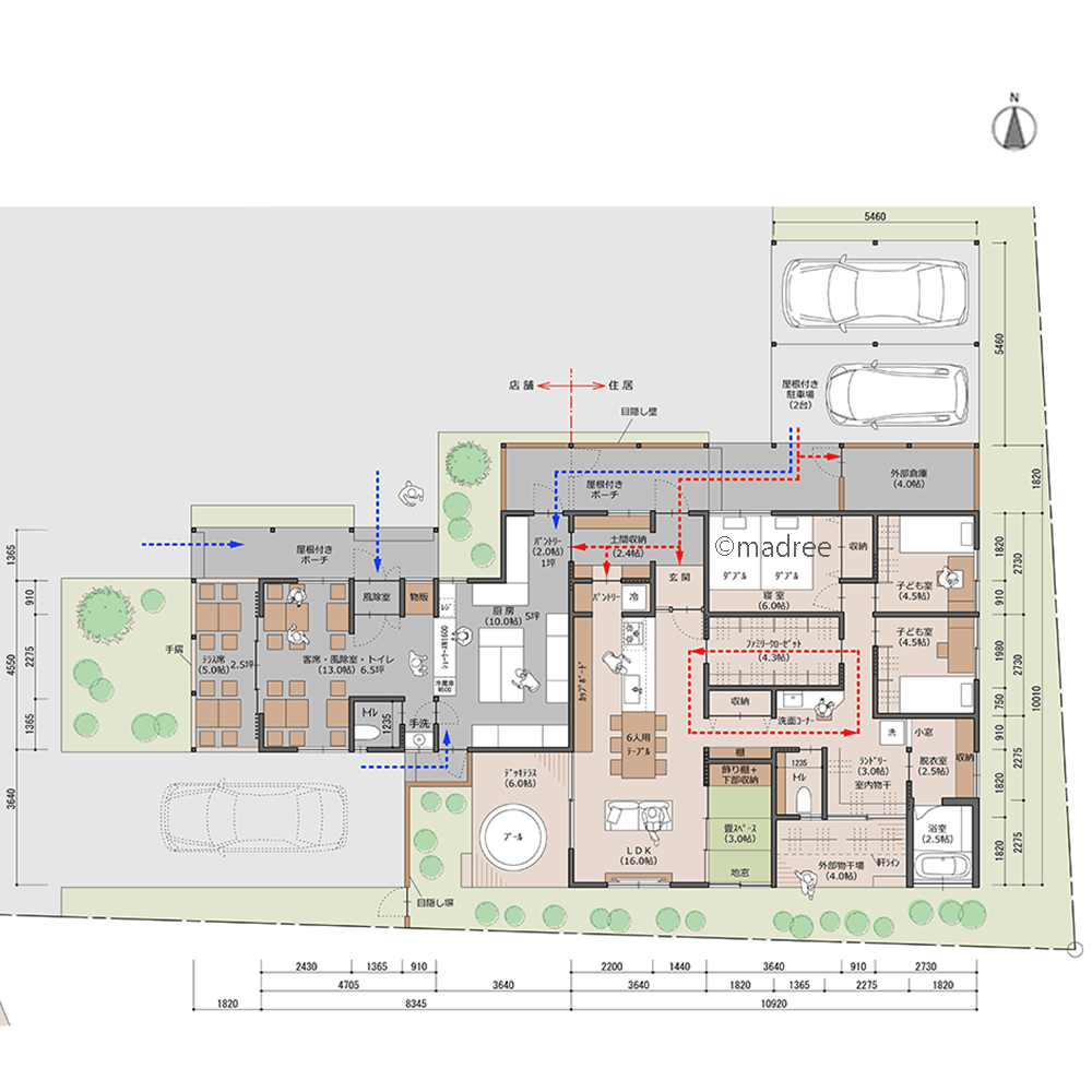
共働きで子育ての毎日が楽になる、便利な家事動線とプライベート中庭のある家
-
- 39坪
- 4LDK
明るく伸びやかに変形地を有効活用、家族がリビングに集まる平屋
-
- 35坪
- 4LDK
週末のまとめ買いがサッと片付く、キッチン中心の裏動線で家事はかどる家
-
- 34坪
- 4LDK
廊下を兼ねるウォークスルー収納で音対策、機能的な家事動線で繋がる平屋
-
- 36坪
- 3LDK
アウトドア時間に最高の距離感、南側の全面ウッドデッキで屋内外を繋ぐ平屋
-
- 34坪
- 4LDK
吹抜と窓から部屋の奥まで暖かな光が届く、すべての居室が南向きで明るい家
-
- 39坪
- 4LDK
動きやすい生活&家事動線で自立心育む、自然に囲まれたアウトドア好きの平屋
-
- 36坪
- 3LDK
帰宅後は整えながらキッチンへ、全室南向きの心地良い陽だまりの家
-
- 34坪
- 4LDK
大人数でも広々感じる回遊動線と、中庭をコの字で囲んだ心地良い光の家
-
- 35坪
- 4LDK
建物の中心に家事空間を集約、扉で生活音とプライバシーに配慮できる平屋
-
- 34坪
- 3LDK
家のどこからでも緑や光を感じられる、生活の中心に中庭デッキのある家
-
- 27坪〜30坪
- 2LDK
アウトドア後の手入れもしやすい収納空間、車から直接土間へ片付けできる家
-
- 31坪
- 4LDK
中庭を介して家族の雰囲気を家じる、生活の中心に回遊プライベート空間のある家
-
- 37坪
- 3LDK
リビングに面して広がるくつろぎの場、南北デッキへ光と風が通り抜ける平屋
-
- 36坪
- 3LDK
来客は外階段から2階LDKへ直接アプローチ、1階が家族だけの空間となる家
-
- 27坪〜30坪
- 2LDK
気持ちよく風が流れる南北の開口窓で、2階LDKから四季の景観を楽しむ家
-
- 33坪
- 4LDK
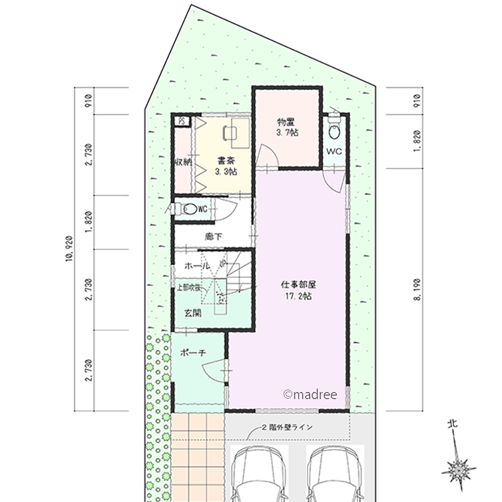
自分時間を快適に過ごせる、家族それぞれにパーソナルスペースのある家
マドリー開発の『住宅営業支援ツール』
madreeデータバンク
マドリーの人気間取り4,800プランを接客・提案に活用できる営業支援ツール
- 競合他社と差がつく、スピード提案
- トレンド間取りで、集客・受注数UP
- 建築家のアイデアを参考に、質の高い提案ができる
