南向き庭の間取り一覧
家族や自分の”好き”を叶える注文住宅の間取りが見つかる!暮らしの要望をもとに全国の建築家が作成した南向き庭の間取りを952件公開しています。毎日更新中!
-
- 43坪
- 3LDK
自然に囲まれ木質感にあふれる、庭一体LDKと吹抜でダイナミックに魅せる家
-
- 45坪
- 6LDK
外界つながる縁側でご近所力高める、大自然の中の別棟二世帯住宅
-
- 42坪
- 4LDK
リビングでペットも一緒に家族団らん、個室で悠々自適なひとり時間も過ごせる家
-
- 36坪
- 2LDK
広めのパントリーが一時置きに活躍、散らかりがちな荷物をさっと隠せる家
-
- 43坪
- 3LDK
床の段差で視線をコントロール、空間にメリハリ生まれるピットリビングの家
-
- 42坪
- 5LDK
リビングから視線が抜ける中庭と、食事楽しむプライベート庭のある家
-
- 39坪
- 3LDK
キッチンから庭まで目配りできる、回遊できる水廻りを裏動線にまとめた家
-
- 37坪
- 4LDK
全室南向きで気分も爽快に、川の字で寝る親子の思い出残る家
-
- 42坪
- 3LDK
趣味時間を活き活き過ごす、外とつながる明るく開放的な旗竿地の家
-
- 42坪
- 4LDK
心地良い光と風がリビングに届く、吹抜でプライバシーと開放感を両立した家
-
- 41坪
- 2LDK
ジメジメな梅雨も快適に洗濯、陽当たり良好なランドリーで部屋干しできる家
-
- 27坪〜30坪
- 3LDK
ゆったりLDKでホームパーティー楽しむ、繋がるテラスで多い来客時も安心な家
-
- 42坪
- 3LDK
ぐるぐる動線の1階で生活完結、広いデッキでおうちキャンプもできる家
-
- 39坪
- 4LDK
裏動線と適材適所収納でスッキリ、キッチンから全体を見渡せる平屋
-
- 32坪
- 3LDK
シャンプー後はデッキで日向ぼっこ、庭にすぐ出られる愛犬に優しい二世帯住宅
-
- 45坪
- 4LDK
2つの庭とテラスに繋がる開放感、隠れ家のようなDENで趣味を楽しむ平屋
-
- 66坪
- 6LDK
吹抜と窓越しにお互いを感じる、2階中央に半個室のコートヤードがある家
-
- 42坪
- 3LDK
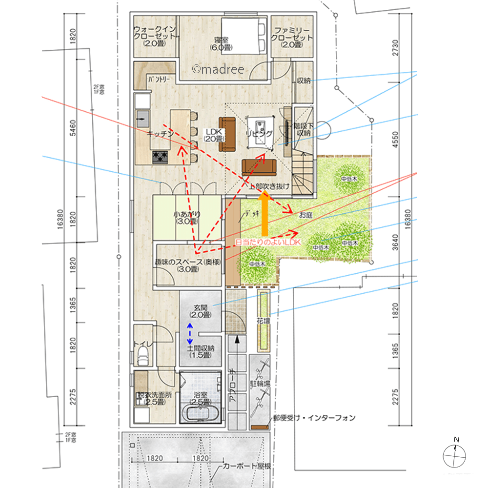
陽だまりLDKに家族が集まる、自然の光と庭の緑に癒されて家時間を過ごす家
-
- 35坪
- 4LDK
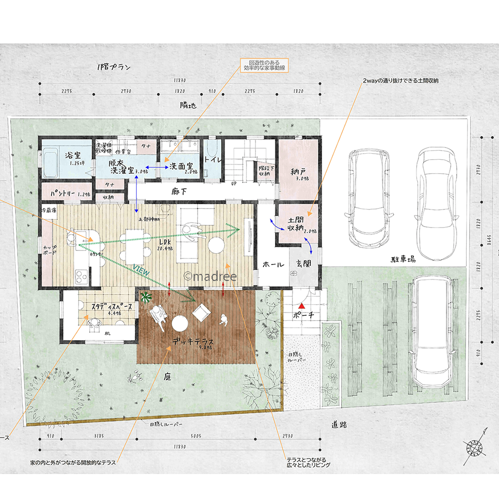
回遊動線で効率的に家事シェア、家族や趣味時間を大切にできる家
-
- 51坪
- ロフト
家族や友人と楽しく体を動かす、賑やかな声響く大吹抜の3階建住宅
-
- 33坪
- 4LDK
和室で空間オンオフ切り替える、両親が気軽に宿泊できる家
-
- 33坪
- 4LDK
隣家を気にせず光をたっぷり取り込む、吹抜で更に明るい2階LDKの家
-
- 36坪
- 3LDK
L字で繋がる家族のスムーズ帰宅後動線、整えながら浴室へ直行の家
-
- 47坪
- 3LDK
陽当たり良好な快適ドライルーム、共働きでも天気を気にせず洗濯できる家
マドリー開発の『住宅営業支援ツール』
madreeデータバンク
マドリーの人気間取り4,800プランを接客・提案に活用できる営業支援ツール
- 競合他社と差がつく、スピード提案
- トレンド間取りで、集客・受注数UP
- 建築家のアイデアを参考に、質の高い提案ができる
