天気も視線も気にせず物干しの間取り一覧
家族や自分の”好き”を叶える注文住宅の間取りが見つかる!暮らしの要望をもとに全国の建築家が作成した天気も視線も気にせず物干しの間取りを993件公開しています。毎日更新中!
-
- 45坪~49坪
- 3LDK
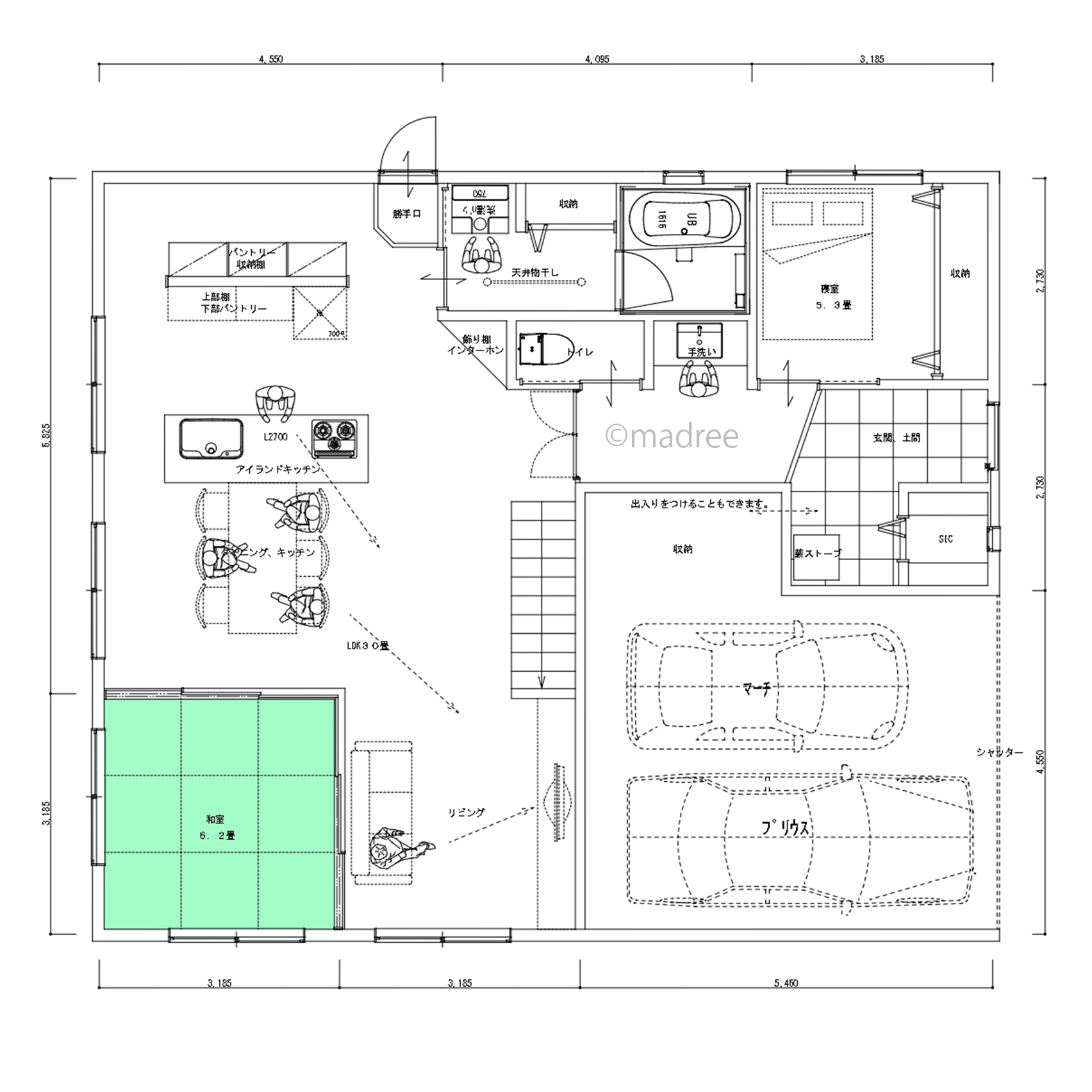
坪庭を愛でる玄関と家中快適な家事動線でゆとりある暮らしが叶う明るく開放的な家
-
- 39坪~42坪
- 3LDK
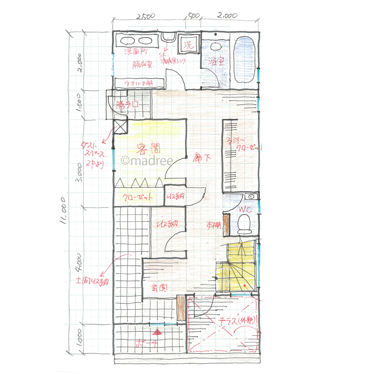
たっぷりの収納と機能的な空間と動線で暮らしにゆとりが持てる家
-
- 30坪~33坪
- 3LDK
洗う・干す・しまうの洗濯回遊動線と家族それぞれが寛げるスペースを確保したコンパクトな間取り
-
- 36坪~39坪
- 3LDK
風通しの良いLDKと充実の家事ラク動線で家族が心地良く過ごせるプライベートを守れる家
-
- 20坪以下
- 1LDK
無駄なくコンパクトに機能性を詰め込んだ光や風が気持ち良いリビングがある家
-
- 45坪~49坪
- 5LDK
2.5世帯家族が個々の時間も家族時間も心地良く暮らせる空間がある間取り
-
- 42坪~45坪
- 4LDK
収納・家事ラク動線など実用性抜群の心地良く暮らしやすい家
-
- 36坪
- 3LDK
子育ても家事も好きなことも、家族が快適に心地良く過ごせる日当たりの良い家
-
- 33坪~36坪
- 3LDK
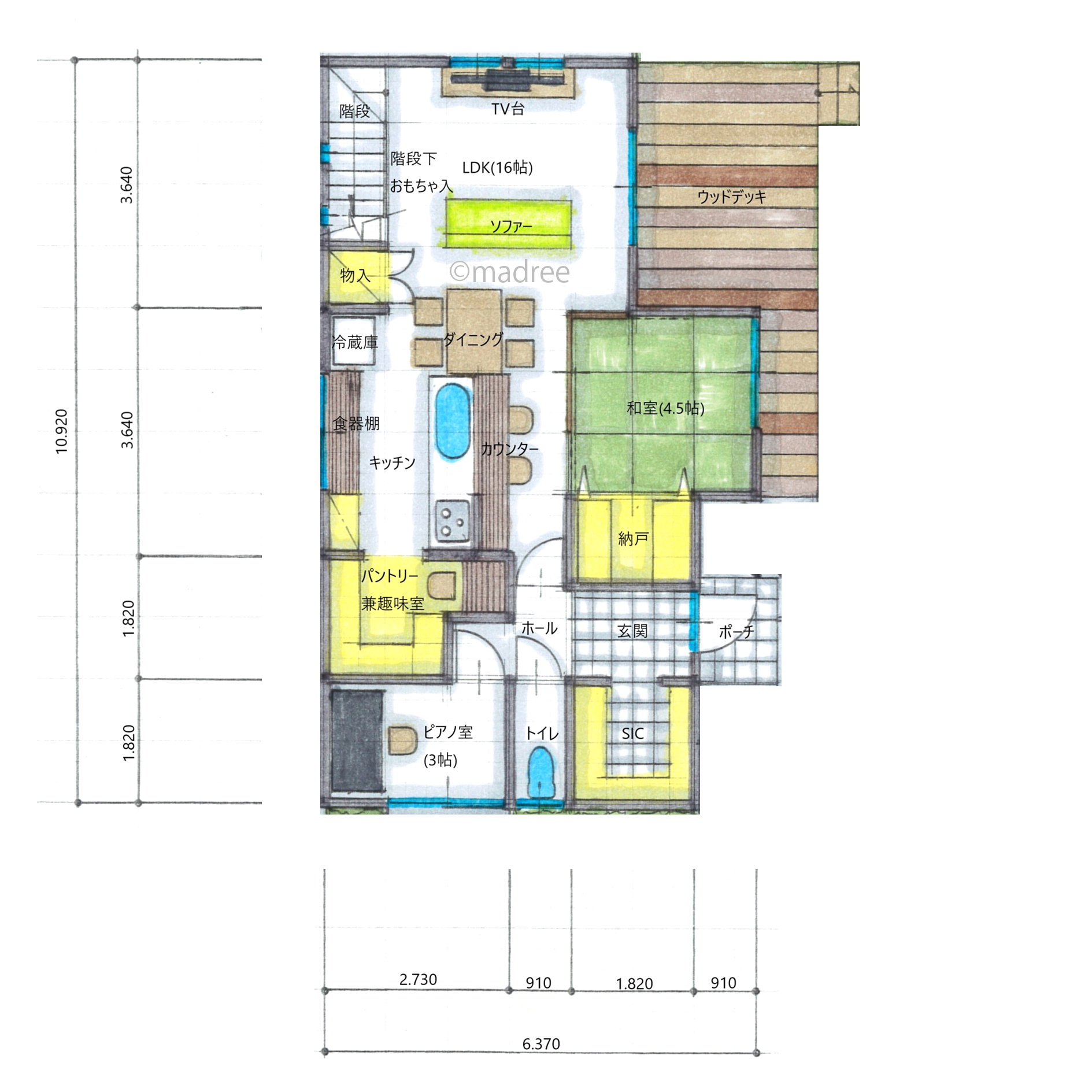
天気も時間も気にせず自由に干せるスペースでお洗濯がグッと楽になる家
-
- 39坪~42坪
- 2LDK
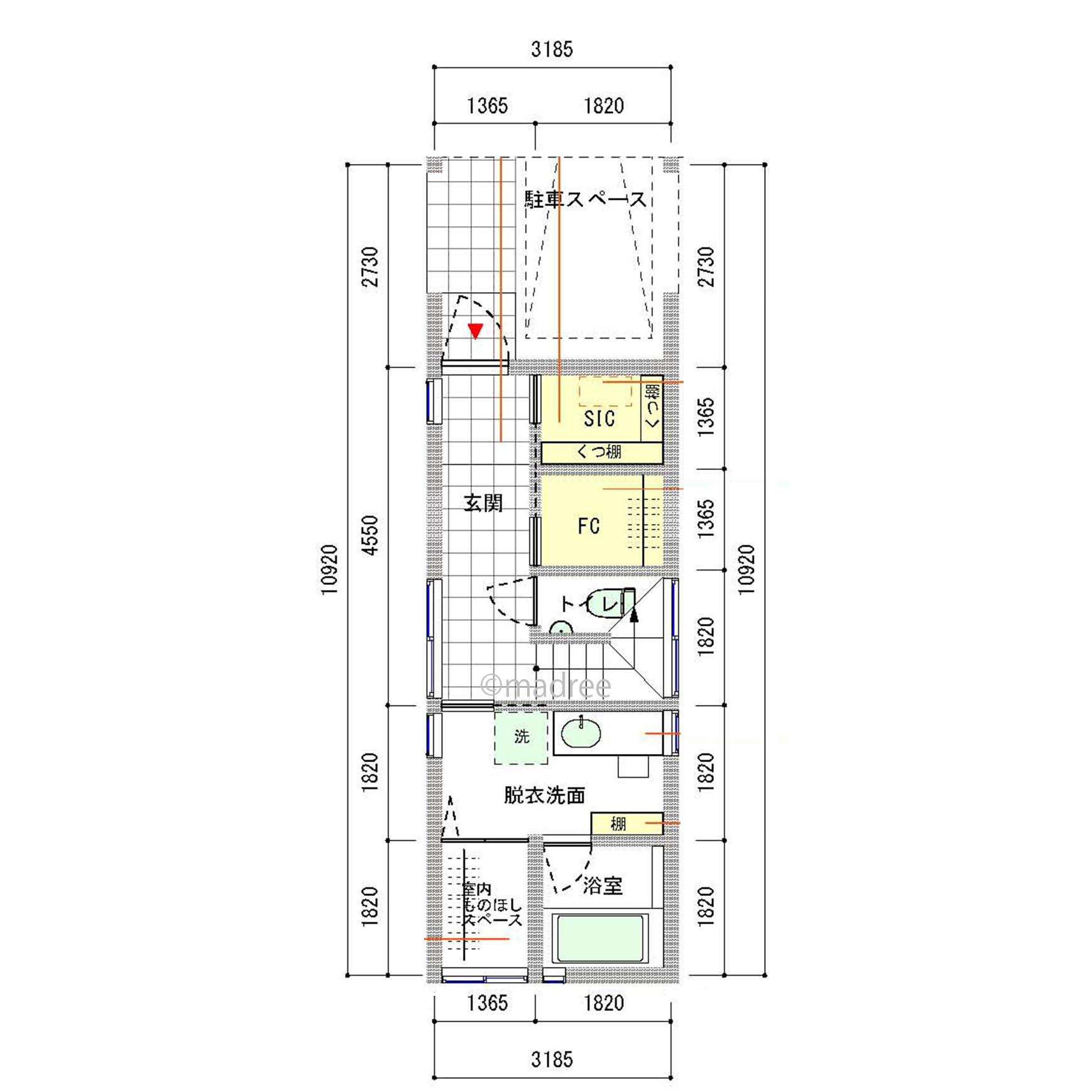
家事動線は奥に配置して来客対応もOKの庭を眺めながらゆったり過ごせる家
-
- 42坪~45坪
- 2LDK
食卓を中心にした家族が楽しめる空間と充実の収納で暮らしが豊かになる家
-
- 36坪~39坪
- 3LDK
収納も洗濯もストレスフリーの動線で暮らしが整う家
-
- 39坪~42坪
- 4LDK
シンプルで開放的な空間をゆるく区切って程よく落ち着ける家
-
- 45坪~49坪
- 3LDK
縦長のライトコートで光・風・広い視線を確保した間取り
-
- 4LDK
暮らしやすさと心地良さにこだわった動線で家族みんなが家時間を好きになる家
-
- 42坪~45坪
- 3LDK
狭小縦長の土地でも住み心地良い暮らしが叶うコートハウスタイプの家
-
- 39坪~42坪
- 3LDK
暮らしに寄り添う適材適所の収納と部屋の配置で心地良く過ごせる家
-
- 45坪~49坪
- 5LDK
奥行き深い敷地でも機能的で住み心地良い暮らしが叶う間取り
-
- 42坪~45坪
- 3LDK
家族が心地良く過ごせるスペースをコンパクト且つ機能的にまとめた間取り
-
- 45坪~49坪
- 4LDK
適材適所の収納と採光に配慮した心地良く住める3階建ての家
-
- 39坪~42坪
- 3LDK
自宅で広々キャンプが楽しめる!落ち着けるプライベートエリアも兼ね備えたメリハリのある家
-
- 42坪~45坪
- 4LDK
間口が狭くても広々した居住空間で暮らし満喫できる3階建ての家
-
- 39坪~42坪
- 4LDK
洗う・干す・しまうが快適な洗濯ラク動線と開放感があって落ち着けるリビングで寛げる家
-
- 39坪~42坪
- 3LDK
週末キャンプを楽しめる庭や趣味や暮らしを充実させる空間が満載の家
マドリー開発の『住宅営業支援ツール』
madreeデータバンク
マドリーの人気間取り4,800プランを接客・提案に活用できる営業支援ツール
- 競合他社と差がつく、スピード提案
- トレンド間取りで、集客・受注数UP
- 建築家のアイデアを参考に、質の高い提案ができる
