中庭の間取り一覧
家族や自分の”好き”を叶える注文住宅の間取りが見つかる!暮らしの要望をもとに全国の建築家が作成した中庭の間取りを225件公開しています。毎日更新中!
-
- 30坪~33坪
- 3LDK
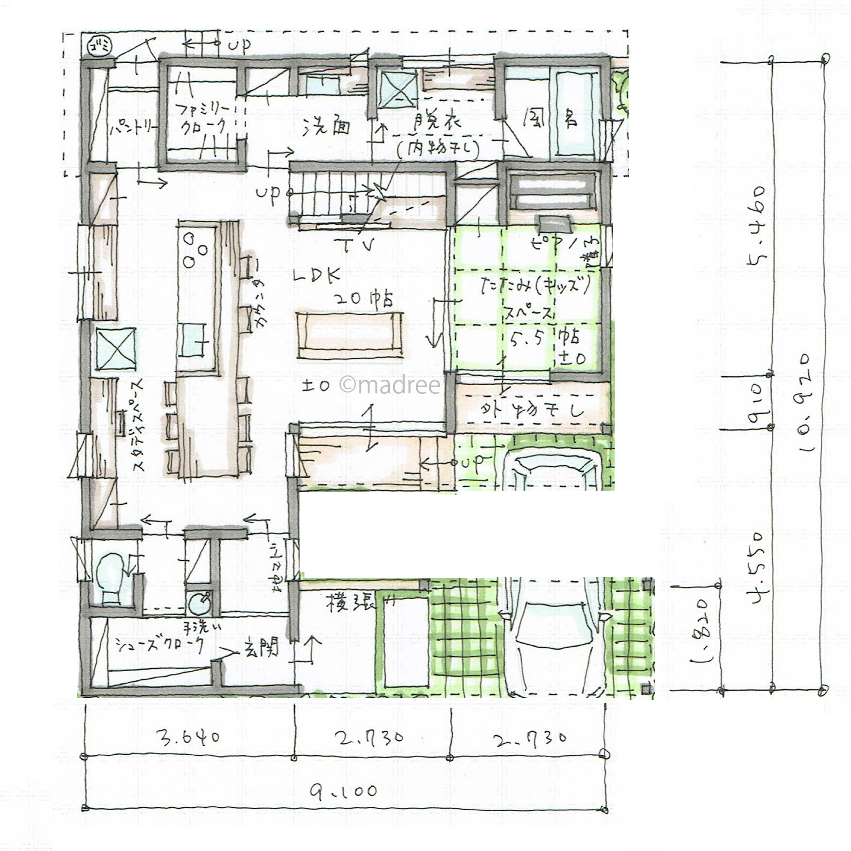
中庭をコの字で囲み光と風を取り込むバリアフリーの家
-
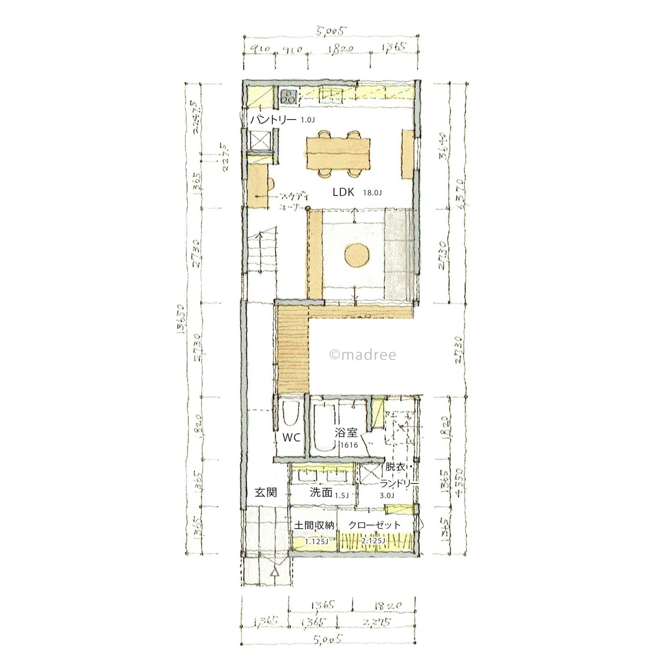
- 27坪
- 3LDK
シンボルツリーのある中庭から降り注ぐ光と風が家中を心地良くしながら家族を繋げる平屋
-
- 36坪~39坪
- 4LDK
家族時間も個々の時間も居心地良く過ごせる!庭と繋がり風通しと開放感のある平屋
-
- 39坪~42坪
- 3LDK
プライベートスペースを分けて来客時も対応スムーズ!大きめキッチンで料理が楽しめる家
-
- 30坪~33坪
- 3LDK
家の真ん中に中庭を配置し開放感と外の繋がりを感じられる家
-
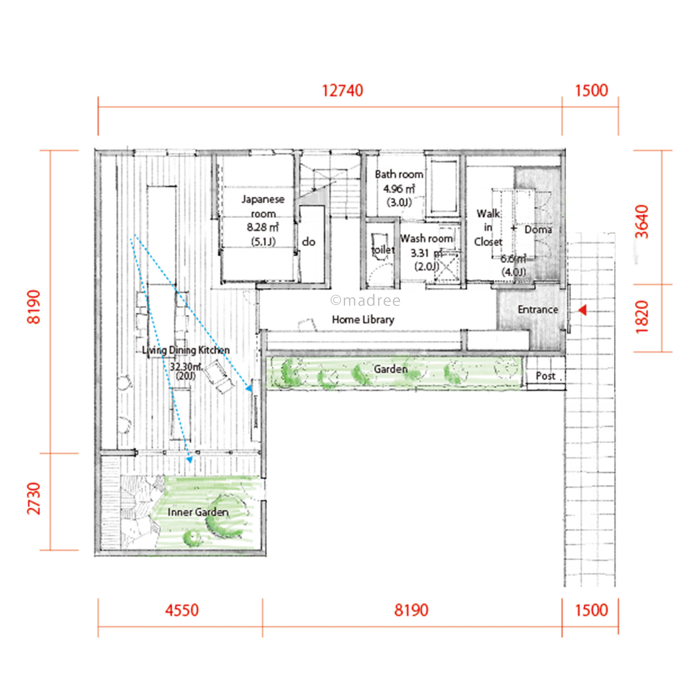
- 39坪~42坪
- 5LDK
完全プライベートな中庭を囲んでリラックスしながら心地良く暮らせる間取り
-
- 36坪~39坪
- 2LDK
家族の暮らしにフィットした住み心地の良さ空間をぎゅっと詰め込んだ家
-
- 36坪~39坪
- 5LDK
庭中心の間取りで趣味も暮らしやすさも心地良く叶うコートハウス
-
- 39坪~42坪
- 4LDK
開放的がありつつもプライバシーも守られて安心しながら暮らしを充実させられる家
-
- 33坪~36坪
- 3LDK
コンパクトにまとめた家事ラク動線と家族が集まりたくなる空間がある家
-
- 36坪~39坪
- 3LDK
来客対応もOK!大人も子どももみんなの暮らしにフィットする間取り
-
- 45坪~49坪
- 3LDK
縦長のライトコートで光・風・広い視線を確保した間取り
-
- 4LDK
暮らしやすさと心地良さにこだわった動線で家族みんなが家時間を好きになる家
-
- 42坪~45坪
- 3LDK
狭小縦長の土地でも住み心地良い暮らしが叶うコートハウスタイプの家
-
- 42坪~45坪
- 1LDK
2つの中庭が暮らしを彩る、来客時も家族時間も緑に癒される住み心地良い家
-
- 30坪~33坪
- 3LDK
プライバシー性高いひだまりの庭でのんびり過ごせるコートヤード型住宅の間取り
-
- 45坪~49坪
- 4LDK
庭木を眺めながらシンプル且つ効率的な家事動線でゆとりある時間を過ごせる平屋
-
- 36坪~39坪
- 3LDK
住宅密集地でも日の当たる明るく開放的な空間で暮らしも趣味も楽しめる家
-
- 45坪~49坪
- 4LDK
プライバシーを確保した空間の中に開放感を感じられる平屋
-
- 39坪~42坪
- 3LDK
週末キャンプを楽しめる庭や趣味や暮らしを充実させる空間が満載の家
-
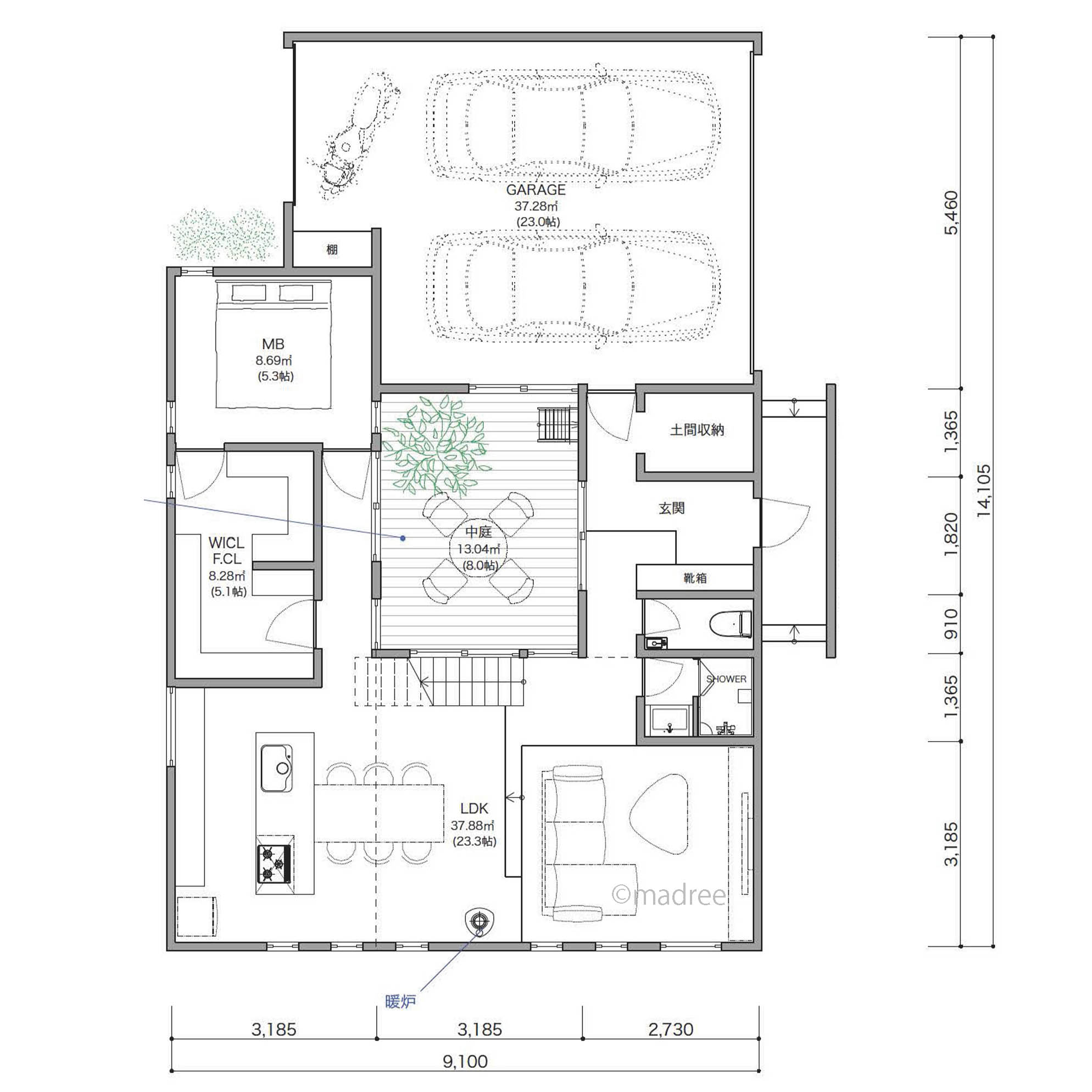
- 50坪以上
- 3LDK
ゆとりあるインナーガレージとライトコートを囲むのびやかなLDKの家
-
- 45坪~49坪
- 5LDK
家中に光が降り注ぐ中庭を中心とした明るく開放的なコートハウス
-
- 3LDK
土間とデッキの回遊空間でペットが元気に走り回る!スキップフロアでリズミカルな間取り
-
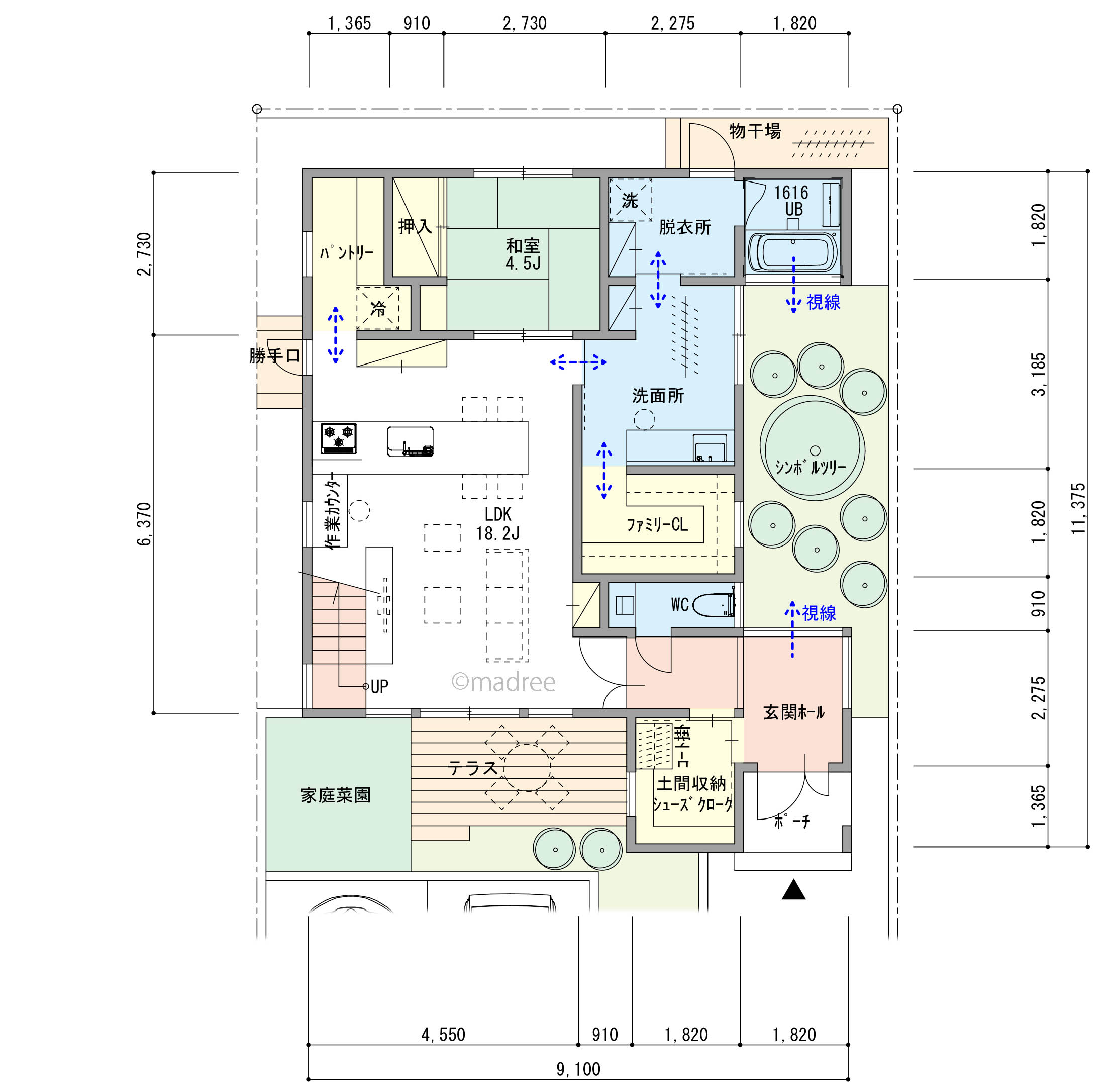
- 36坪~39坪
- 3LDK
吹抜けに面した2階ホールで仕事をする、家族がつながる中庭のある家
マドリー開発の『住宅営業支援ツール』
madreeデータバンク
マドリーの人気間取り4,800プランを接客・提案に活用できる営業支援ツール
- 競合他社と差がつく、スピード提案
- トレンド間取りで、集客・受注数UP
- 建築家のアイデアを参考に、質の高い提案ができる
