大人数に対応できるLDKの間取り一覧
家族や自分の”好き”を叶える注文住宅の間取りが見つかる!暮らしの要望をもとに全国の建築家が作成した大人数に対応できるLDKの間取りを513件公開しています。毎日更新中!
-
- 35坪
- 4LDK
三世帯どこからもアクセス良好、明るいLDKに自然と家族の足が向かう家
-
- 45坪
- 5LDK
通り道LDKから生活繋がる、お互いを感じる丁度良い距離で過ごせる平屋
-
- 65坪
- 4LDK
中庭へと繋がるゆったり空間、建物中央から光届ける縦長コートハウス
-
- 43坪
- 4LDK
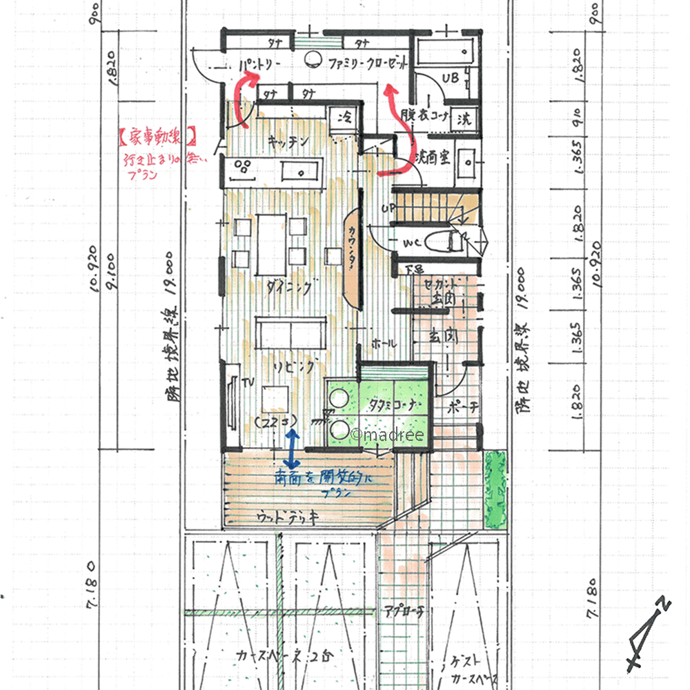
ファミクロ経由でアレルギー対策、LDKを快適に保つ帰宅後動線の家
-
- 34坪
- 3LDK
無駄なくサッと家事をこなす、キッチンと水廻りが回遊動線で繋がる家
-
- 45坪
- 3LDK
天気を気にせず楽に荷下ろし、駐車場からテラスまで広く屋根で繋がる家
-
- 34坪
- 2LDK
屋外スペースをON/OFFで使い分け、生活感なくベランピング楽しむ家
-
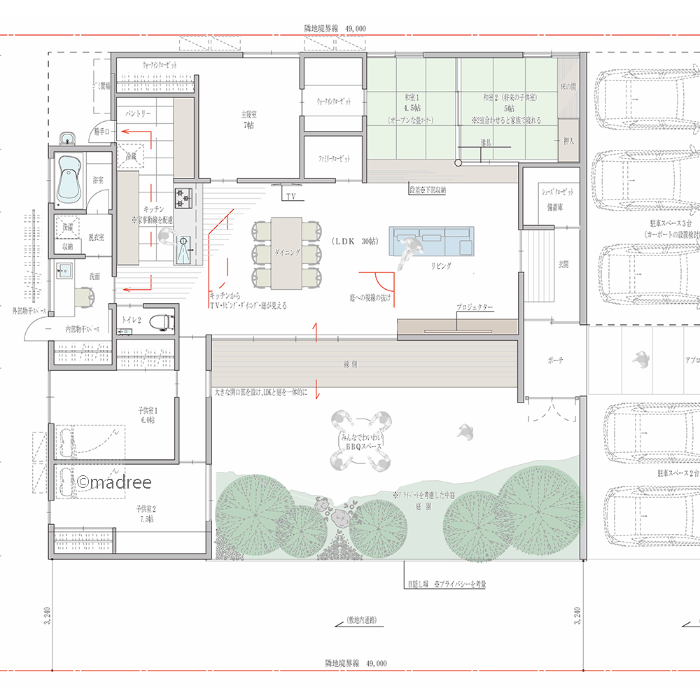
- 49坪
- 5LDK
コレクションを飾って楽しむ、充実収納とギャラリー空間のある家
-
- 39坪
- 5LDK
吹抜と回遊動線で家族も猫も自由度UP、まわりの自然とつながる緑豊かな家
-
- 36坪
- 2LDK
備え付け収納で掃除がしやすく生活整う、キッチン中心ぐるぐる家事動線の家
-
- 40坪
- 4LDK
木に囲まれたプライベート庭で団欒、2階にまとめた夜家事動線の家
-
- 32坪
- 3LDK
ウォークスルーの生活動線、ファミクロ経由でコンパクトに繋がる平屋
-
- 49坪
- 4LDK
ガゼボのある庭で日常に特別感をプラス、個々の時間も尊重するホテルライクな家
-
- 39坪
- 5LDK
直線LDKに変化をつける、ピットリビングで空間の広がり感じる家
-
- 36坪
- 3LDK
コンパクトに集約した生活動線で、暮らしにゆとり生まれる家事楽な家
-
- 35坪
- 3LDK
パントリー中心に生活を繋ぐ、家事を楽にする便利な回遊動線の家
-
- 36坪
- 4LDK
縦にも屋外にも広がる大空間、広々LDKでホームパーティー楽しむ家
-
- 35坪
- 3LDK
家族との距離感を意識し、自分時間も大切に過ごす平屋の二世帯住宅
-
- 36坪
- 2LDK
コの字の隠せる生活裏動線で、LDKを心地良いリラックス空間にする家
-
- 36坪
- 3LDK
コンパクト回遊家事と帰宅動線で、家族時間生み出す共働き応援の家
-
- 40坪
- 3LDK
隠す収納と配置でスッキリ見せる、おしゃれなヌックでホッと一息できる家
-
- 33坪
- 2LDK
スムーズに一日が始まる回遊動線、家族がつながる中庭一体のリビングの平屋
-
- 36坪
- 2LDK
共有空間にも適度な距離感、快適なパーソナルスペースを保つLDKの家
-
- 27坪〜30坪
- 2LDK
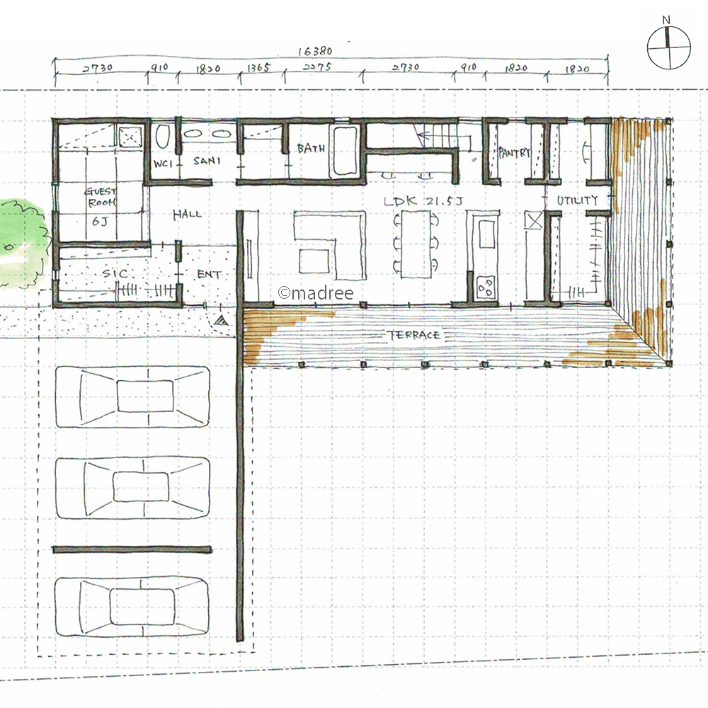
横長デッキと繋がる快適回遊LDK、陽だまりリビングでゆったり過ごす平屋
マドリー開発の『住宅営業支援ツール』
madreeデータバンク
マドリーの人気間取り4,800プランを接客・提案に活用できる営業支援ツール
- 競合他社と差がつく、スピード提案
- トレンド間取りで、集客・受注数UP
- 建築家のアイデアを参考に、質の高い提案ができる
