2WAY玄関の間取り一覧
家族や自分の”好き”を叶える注文住宅の間取りが見つかる!暮らしの要望をもとに全国の建築家が作成した2WAY玄関の間取りを1491件公開しています。毎日更新中!
-
- 36坪
- 2LDK
庭を囲むぐるぐる家事動線が便利、1階でほぼ完結するリビング中心の家
-
- 43坪
- 3LDK
シンプル動線で家事シェアしやすい、趣味楽しむセカンドライフの家
-
- 37坪
- 3LDK
回遊性のある縁側デッキで繋がる一体感、シンプル動線で家事が楽になる家
-
- 36坪
- 4LDK
見晴らし良い屋外デッキでリラックス、凹凸空間と光で外観デザインも楽しむ家
-
- 38坪
- 3LDK
家事シェアしやすい共働き夫婦の生活動線、家族と過ごす時間の増える家
-
- 37坪
- 3LDK
LDKを通らず来客を案内できる、動線が交差しない家族が快適に過ごせる家
-
- 43坪
- 4LDK
ぐるっと回遊できる裏動線で生活感隠す、明るく景色活かした南向きの家
-
- 49坪
- 5LDK
趣の異なる庭の景色楽しむ、将来平屋のように使えるコの字の家
-
- 32坪
- 3LDK
縦の広がりを活かして家中に光を届ける、吹抜から家族の気配を感じられる家
-
- 41坪
- 3LDK
ランドリー直結の陽だまり空間、視線ブロックで快適なインナーテラスのある家
-
- 54坪
- 4LDK
北側の家事動線に収納を充実、 隠れ廊下収納でLDKの空間がスッキリする家
-
- 33坪
- 4LDK
日常生活がストレスなく快適に、フレキシブルな扉で屋外まで一体的に繋がる家
-
- 36坪
- 3LDK
フレキシブルな扉活用でLDKを無駄なく温度管理、空間にメリハリの生まれる家
-
- 49坪
- 4LDK
LDKを中心に生活動線がスムーズに繋がる、老後も安心して暮らせる平屋風の家
-
- 34坪
- 3LDK
靴のままで整うコンパクトな裏動線と、LDKから庭への広がりを感じられる家
-
- 43坪
- 3LDK
3種の庭よりどこからも光が降り注ぐ、縦長の土地を最大限に活かした家
-
- 50坪
- 3LDK
家族とコミュニケーション深まるキッチン配置で、将来は平屋のように使える大屋根の家
-
- 35坪
- 4LDK
家族とコミュニケーションが自然に増える、明るく心地良いリビングが中心の家
-
- 49坪
- 3LDK
回遊性を活かした裏動線で家事ストレスを軽減、将来は平屋のように暮らせる家
-
- 43坪
- 3LDK
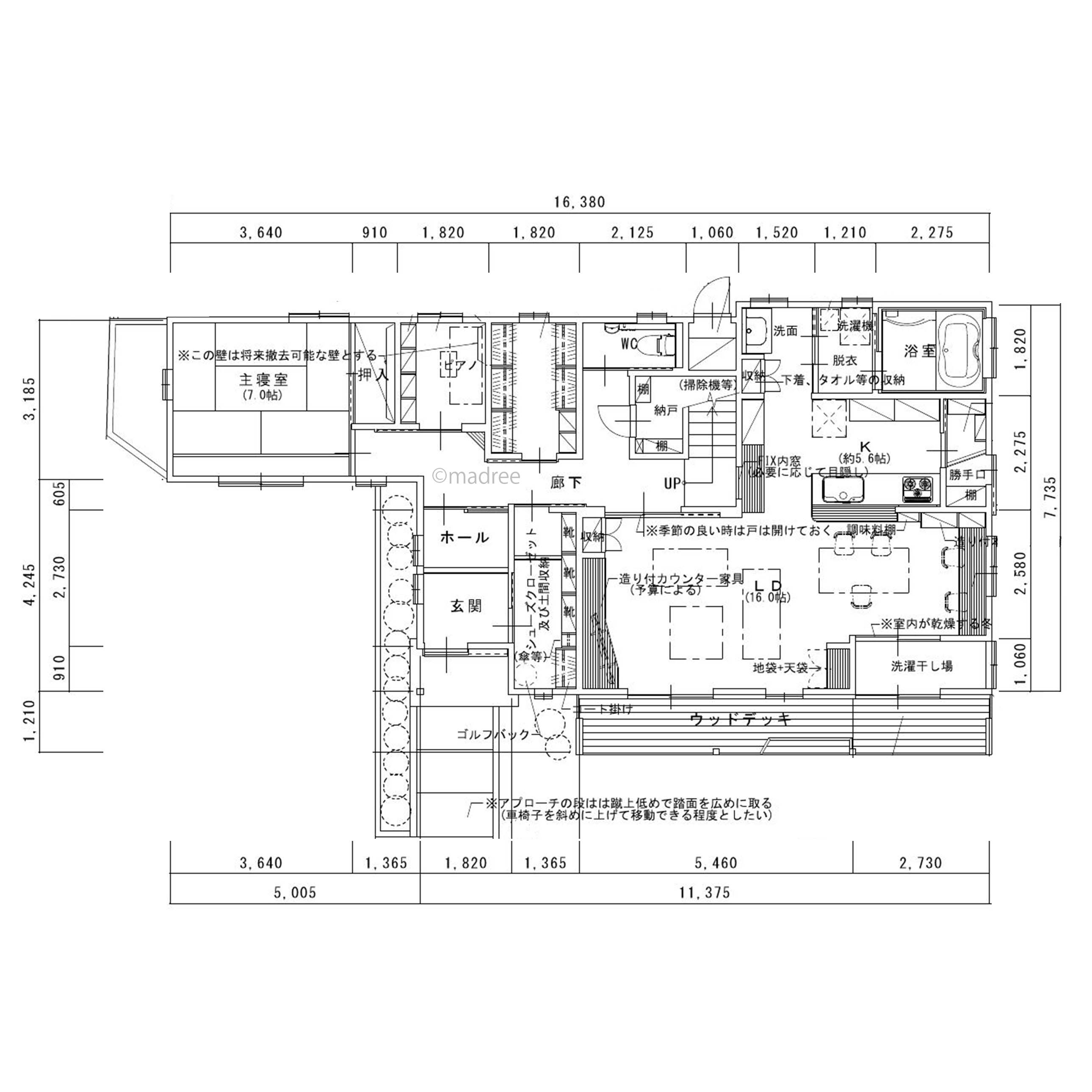
屋内ゴルフシュミレーターで趣味を満喫、帰るのが楽しみになる旗竿地の家
-
- 36坪
- 3LDK
共働き夫婦を支える快適動線で家事時間を軽減、週末の庭BBQを満喫できる家
-
- 42坪
- 3LDK
仕事のオンオフを上手に切り替え、中庭を囲むコの字の事務所兼住宅
-
- 39坪
- 1LDK
明るい2階LDKで温かな親子時間育む、ライフスタイルに寄り添う旗竿地の家
-
- 33坪
- 4LDK
キッチンにいながら洗濯も子守もできる、ワーママに嬉しい効率良い家事動線の家
マドリー開発の『住宅営業支援ツール』
madreeデータバンク
マドリーの人気間取り4,800プランを接客・提案に活用できる営業支援ツール
- 競合他社と差がつく、スピード提案
- トレンド間取りで、集客・受注数UP
- 建築家のアイデアを参考に、質の高い提案ができる
