1WAY玄関の間取り一覧
家族や自分の”好き”を叶える注文住宅の間取りが見つかる!暮らしの要望をもとに全国の建築家が作成した1WAY玄関の間取りを724件公開しています。毎日更新中!
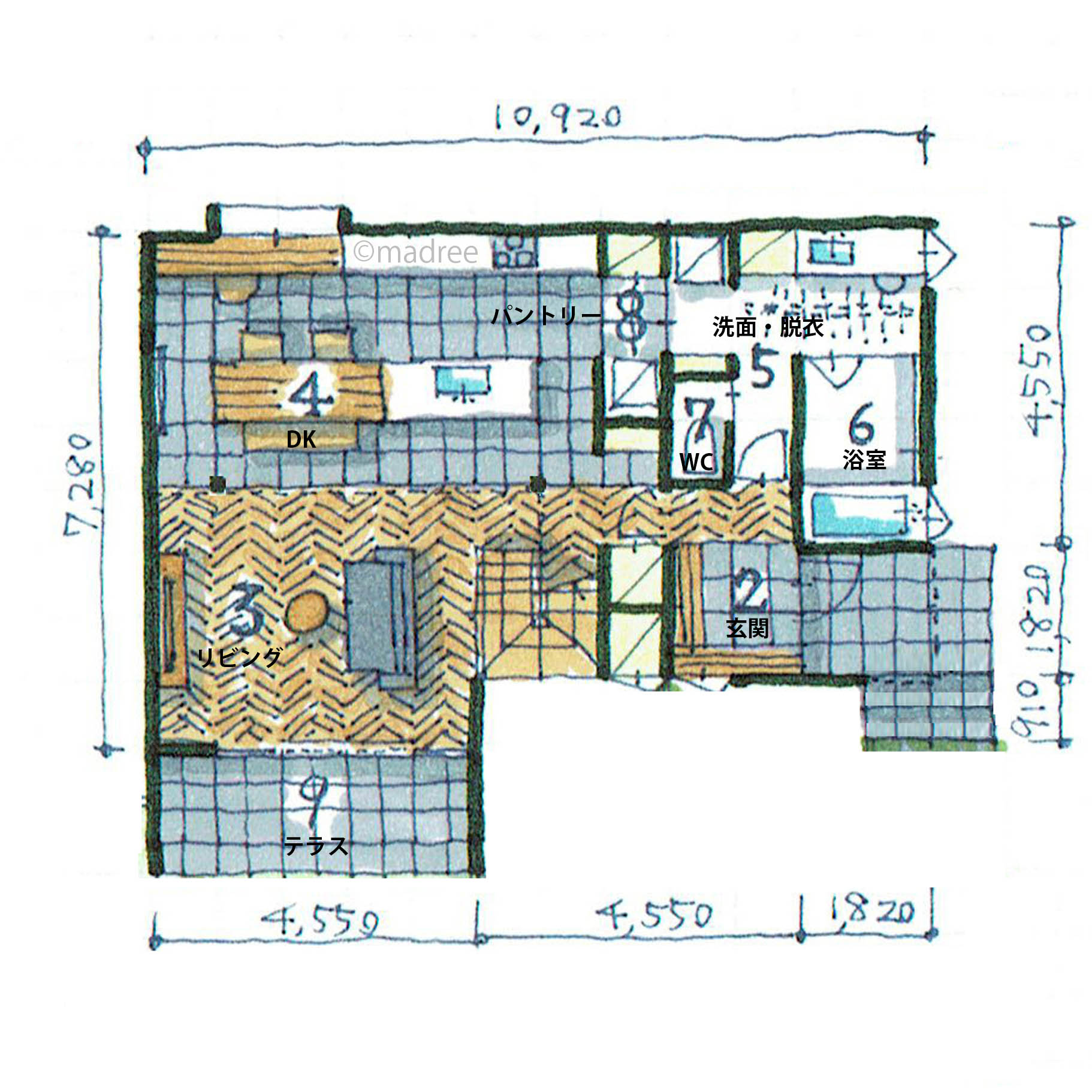
-
- 39坪
- 4LDK
朝日がすべての個室に降り注ぐ、繋がるデッキで子ども達が走り回れる平屋
-
- 35坪
- 4LDK
南北の窓へ光と風が通り抜ける、開放的な中庭デッキを囲むL字型の家
-
- 33坪
- 3LDK
暮らしの真ん中に見守るキッチン、気配も伝わる距離感で過ごすL字型の家
-
- 27坪〜30坪
- 3LDK
目的別フロアで狭小地でも快適に、縦に大きく空間の広がる3階建ての家
-
- 42坪
- 2LDK
玄関共有で子育てサポートしやすい、中央階段でスペース分けた3階建て二世帯住宅
-
- 35坪
- 3LDK
開放感たっぷりの吹抜と、リビングの開口窓から自然光を感じられる家
-
- 33坪
- 5LDK
スキップフロアで広がる一体空間、0.5階にキッチンと水廻りのある家
-
- 36坪
- 3LDK
見通し良くフラットに繋がる、のびのび過ごせる中庭デッキのある家
-
- 27坪〜30坪
- 2LDK
家族の成長に合わせてフレキシブルに空間活用、開放感と自然光が心地良い3階建て狭小住宅
-
- 31坪
- 3LDK
プライバシーを守りつつ外の風景楽しむ、縦長の土地を生かした視線抜ける家
-
- 27坪〜30坪
- 2LDK
毎日の生活に開放感と楽しさをプラス、狭小地を有効活用した3階建ての家
-
- 34坪
- 2LDK
ON/OFFを切り替えやすいLDK空間、吹抜と庭からの光が家時間を充実させる家
-
- 31坪
- 3LDK
独立リビングで家族の憩いを大切にする、狭小地に光と風で開放感を生み出す家
-
- 41坪
- 4LDK
キッチン裏の水廻りで家事集約、自然光がたっぷり降り注ぐ南向きの家
-
- 35坪
- 4LDK
スケルトン階段でLDKをゆるく空間分け、家族が好きを楽しむブルックリンスタイルの家
-
- 42坪
- 4LDK
心地よく過ごせる居場所がたくさん、生活の中心に開放的なLDKのある家
-
- 34坪
- 4LDK
スケルトン階段で中央からも光を取り込む、自然の光がLDKの隅々まで届く家
-
- 33坪
- 4LDK
陽当たり良く開放的に一年中過ごせる、日差しを取り込みやすい2階LDKの家
-
- 32坪
- 3LDK
リビングでの家族時間を邪魔しない、生活感を隠せる裏動線のある家
-
- 36坪
- 3LDK
キッチン横並びの水廻りで時短家事叶う、上階に空間抜けるダイナミックなLDKの家
-
- 35坪
- 4LDK
静かな個室でプライベートも充実、日当たりと眺望良い2階リビングの家
-
- 39坪
- 2LDK
オープンな吹抜で家族との会話も弾む、キッチンを中心に生活が繋がる家
-
- 38坪
- 4LDK
程よく囲まれたLDKで家族と心通う、プライベート時間もしっかり確保できる家
-
- 42坪
- 2LDK
おこもりスペースで読書に浸かる贅沢時間、気持ちを切替え心満たす工夫ある家
マドリー開発の『住宅営業支援ツール』
madreeデータバンク
マドリーの人気間取り4,800プランを接客・提案に活用できる営業支援ツール
- 競合他社と差がつく、スピード提案
- トレンド間取りで、集客・受注数UP
- 建築家のアイデアを参考に、質の高い提案ができる
