2WAY玄関の間取り一覧
家族や自分の”好き”を叶える注文住宅の間取りが見つかる!暮らしの要望をもとに全国の建築家が作成した2WAY玄関の間取りを1537件公開しています。毎日更新中!
-
- 36坪~39坪
- 3LDK
急な来客もOK!コの字型間取りと天窓で採光を意識した2階建てに囲まれても明るい平屋
-
- 45坪~49坪
- 4LDK
リアルな目線で家事も子育ても個々の時間も配慮した日々の暮らしにゆとりが持てる家
-
- 45坪~49坪
- 3LDK
適材適所のたっぷり収納でスッキリ片付くゆとりある暮らしが叶う家
-
- 33坪~36坪
- 3LDK
狭小地でも2階LDKで広く明るい空間に!機能的な家事空間が充実した間取り
-
- 36坪~39坪
- 3LDK
来客対応いつでもOK!充実の収納とキッチンから水回りのスムーズな動線で家事が心地良い間取り
-
- 4LDK
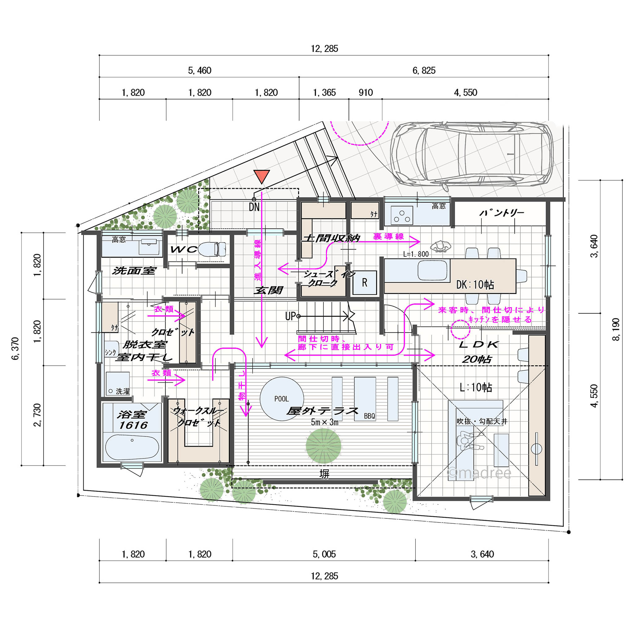
快適家事動線と採光を意識した空間でプライベート感のあるコートハウスの間取り
-
- 39坪~42坪
- 4LDK
家族と共に成長するインナーガーデンとシンプル導線で開放感のある家
-
- 45坪~49坪
- 5LDK
仕事スペースをしっかり確保しながら住居スペースは採光とシンプル動線で住み心地が良い家
-
- 30坪
- 2LDK
中庭と吹き抜けで光を取り込む縦長敷地を活かした伸びやかな間取り
-
- 45坪~49坪
- 3LDK
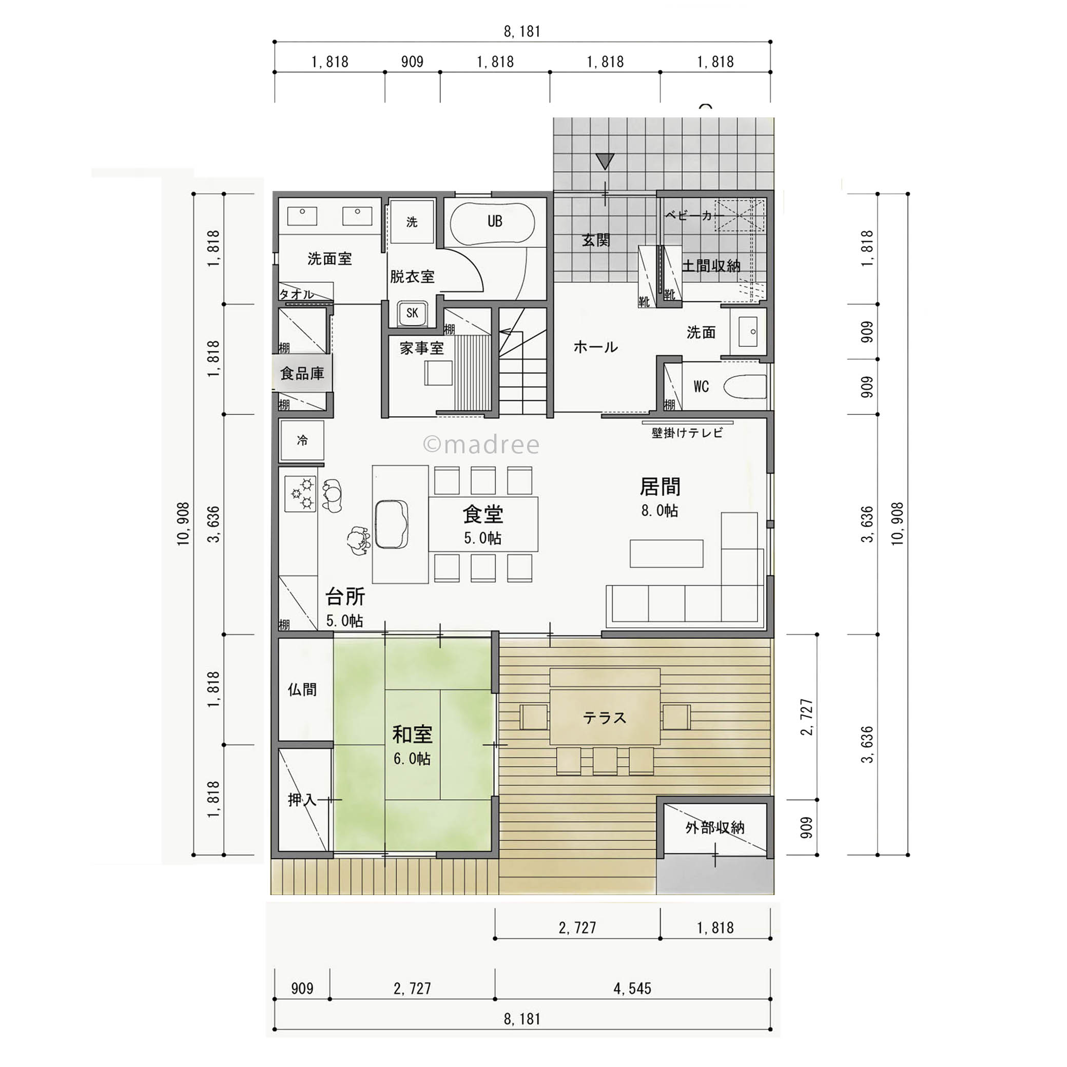
坪庭を愛でる玄関と家中快適な家事動線でゆとりある暮らしが叶う明るく開放的な家
-
- 40坪
- 3LDK
開放的な明るいリビングダイニングと一直線水回り動線で心地良く暮らせる家
-
- 39坪~42坪
- 3LDK
庭と繋がり自然を感じられる南向きLDKと広々デッキで家族が心地良く暮らせる家
-
- 36坪~39坪
- 3LDK
風通しの良いLDKと充実の家事ラク動線で家族が心地良く過ごせるプライベートを守れる家
-
- 36坪~39坪
- 3LDK
将来1階のみで生活できる!階段真ん中で回遊性のある家事ラク間取り
-
- 39坪~42坪
- 4LDK
1階も2階も回遊できる動線で心地良く家族が過ごせる日当たりのよい明るい家
-
- 36坪~39坪
- 4LDK
3世代家族が個々の時間も家族時間ものびやかに過ごせるキッチン中心と広々LDKの家
-
- 45坪~49坪
- 3LDK
子どもと時間をたくさん共有でき、リラックスと集中をわけられる廊下のない家
-
- 36坪~39坪
- 4LDK
将来を見据えた1階で暮らし完結可能!家族と心地良く繋がり、個々の時間も大切にできる家
-
- 45坪~49坪
- 4LDK
一直線水回りで効率良い家事動線と独立リビングで寛げる2.5世帯の家
-
- 24坪~27坪
- 3LDK
光と風を取り込んだ開放感溢れる居心地良い暮らしが叶う間取り
-
- 45坪~49坪
- 4LDK
夏涼しく冬暖かいゾーニングで2.5世帯の家族が心地よく住める間取り
-
- 30坪~33坪
- 3LDK
中庭をコの字で囲み光と風を取り込むバリアフリーの家
-
- 39坪~42坪
- 3LDK
家の中にいても外とつながれる庭をめぐっているような居心地良い平屋
-
- 36坪~39坪
- 4LDK
家族時間も個々の時間も居心地良く過ごせる!庭と繋がり風通しと開放感のある平屋
マドリー開発の『住宅営業支援ツール』
madreeデータバンク
マドリーの人気間取り4,800プランを接客・提案に活用できる営業支援ツール
- 競合他社と差がつく、スピード提案
- トレンド間取りで、集客・受注数UP
- 建築家のアイデアを参考に、質の高い提案ができる
