開放感ある浴室の間取り一覧
家族や自分の”好き”を叶える注文住宅の間取りが見つかる!暮らしの要望をもとに全国の建築家が作成した開放感ある浴室の間取りを577件公開しています。毎日更新中!
-
- 32坪
- 4LDK
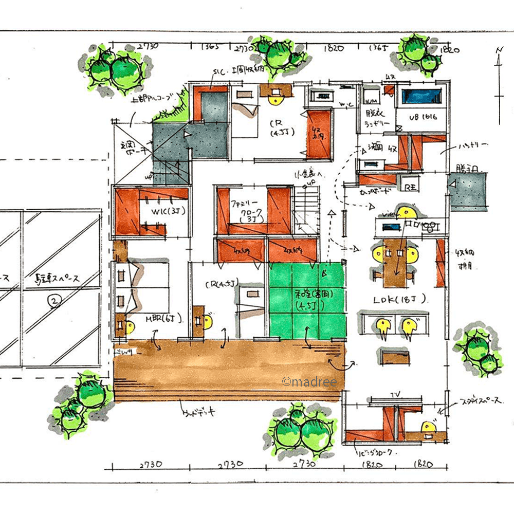
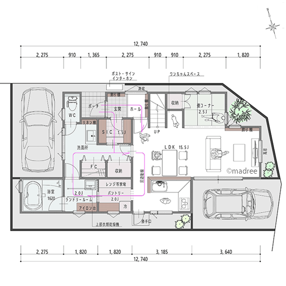
縦長の家に自然の明るさを届ける、屋内外を繋ぐ光庭が家事も生活も快適にする家
-
- 35坪
- 3LDK
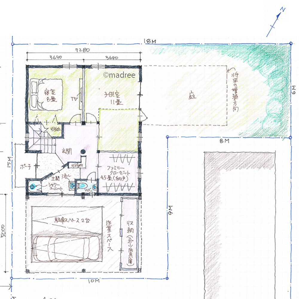
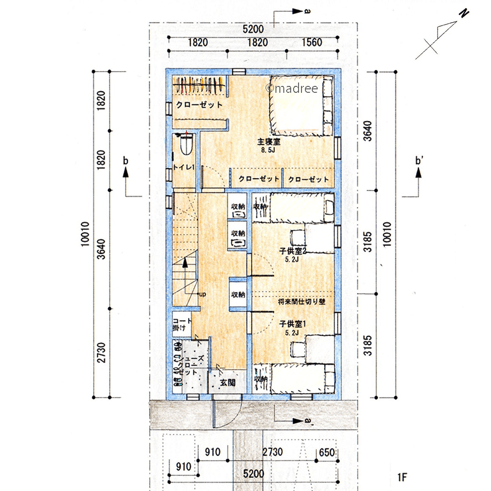
ファミリーロッカーで毎日の身支度が楽になる、玄関近くに物の居場所がある家
-
- 58坪
- 4LDK
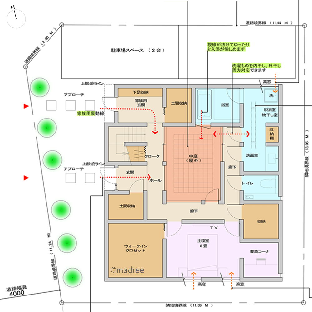
高塀のプライベート空間でオープンに暮らす、ママ目線の家事ラク追求した家
-
- 25坪
- 3LDK
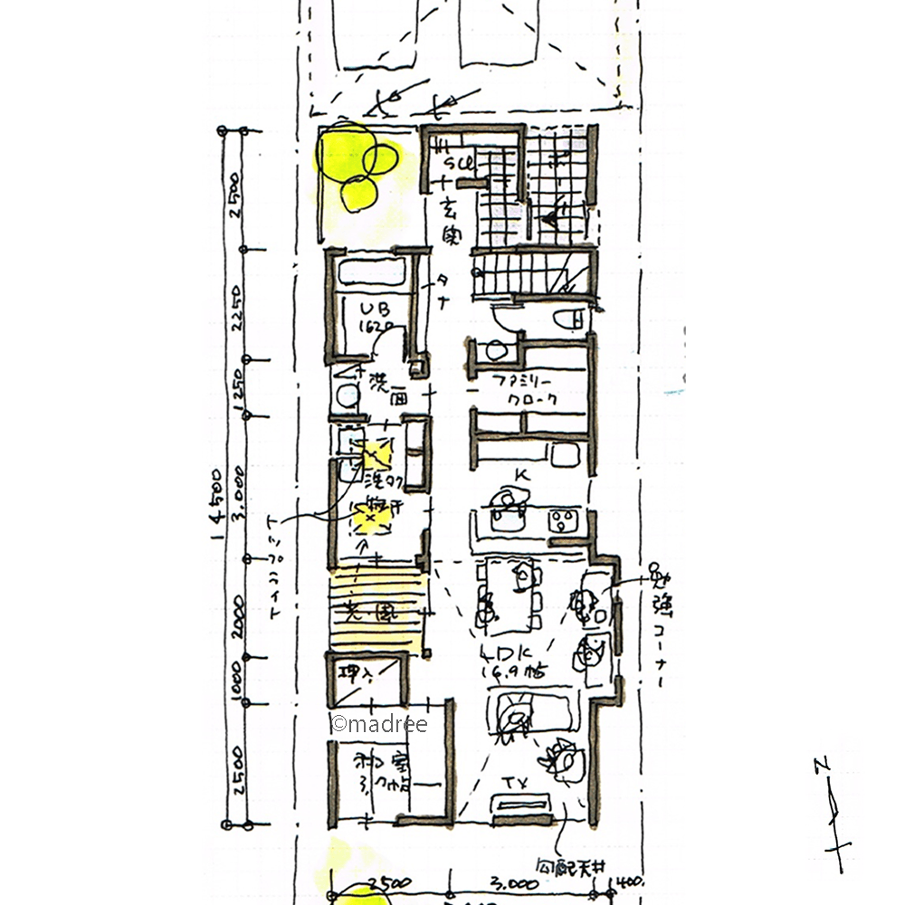
自然光が気持ち良い2階LDKで、外からの視線を気にせずゆったりと暮らす家
-
- 45坪
- 2LDK
大空間リビングで親子時間をたっぷり共有、裏動線とリビング収納で整う家
-
- 48坪
- 4LDK
視界広がる中庭と吹抜で家族つながる、にぎやかな声が響く遊びのある家
-
- 57坪
- 6LDK
老後はイキイキ趣味を楽しむ、気兼ねせず過ごすパーソナル空間のある家
-
- 62坪
- 4LDK
ガレージから庭まで回遊で楽らく、選択できるフレキシブルな家事動線の家
-
- 73坪
- 2LDK
気楽に行き来できる良い距離感、明るい日差しと海風を感じられる二世帯住宅
-
- 43坪
- 5LDK
大きな庭へ広がる眺望、個室に篭らず自然と陽だまりに家族が集まる家
-
- 36坪
- 3LDK
中2階で少し篭って在宅ワーク、いつも家族を感じる書斎のある二世帯住宅
-
- 30坪
- 2LDK
ワンルームの2階をフレキシブルに活用、家族の成長と共に部屋を変化させる家
-
- 50坪
- 2LDK
2階に集約した効率良い生活動線、来客の多い家でも家族が安心して過ごせる家
-
- 40坪
- 3LDK
別空間をデッキでつなぐ、どこか一体感のある二世帯住宅
-
- 32坪
- 2LDK
居室と生活を分けて快適に過ごす、明るい2階で家事完結できる縦長地の家
-
- 36坪
- 4LDK
隣が公園のロケーションを活かし、景色を楽しむ同居予定の二世帯住宅
-
- 34坪
- 4LDK
共有ファミクロが家の中心、適所に隠してサッと片付く収納迷子にならない平屋
-
- 41坪
- 3LDK
ファミクロ中心動線で家事&生活が捗る、吹抜越しに家族感じる在宅ワーカーの家
-
- 36坪
- 2LDK
生活動線上にある憩いの場、ガラス窓の向こうに家族の気配を感じられる平屋
-
- 25坪
- 4LDK
アウトドアリビングへ視界広がる、開放的で奥行き感じる狭小住宅
-
- 42坪
- 3LDK
自然と片付く複数の回遊動線、キッチンから最短距離で無駄なく家事を結ぶ家
-
- 45坪
- 4LDK
2階バルコニーで眺望と会話楽しむ、プライベート空間が2つの主寝室を繋ぐ家
-
- 36坪
- 3LDK
生活スタイルに合わせた余地計画、家族の今を反映して建物を変化させていく家
-
- 31坪
- 3LDK
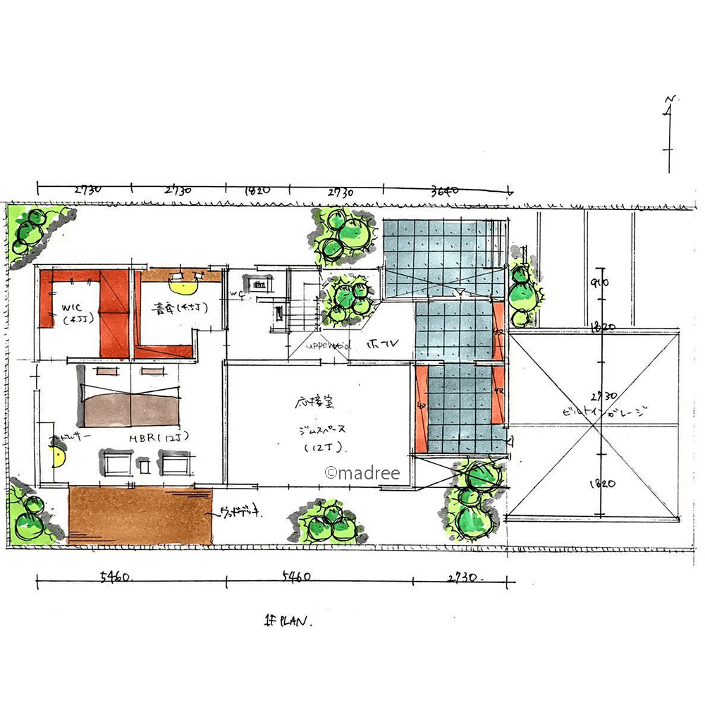
屋根より高い開放的な家族スペース、視線を気にせず屋上でのびのび過ごす家
マドリー開発の『住宅営業支援ツール』
madreeデータバンク
マドリーの人気間取り4,800プランを接客・提案に活用できる営業支援ツール
- 競合他社と差がつく、スピード提案
- トレンド間取りで、集客・受注数UP
- 建築家のアイデアを参考に、質の高い提案ができる
