23坪の間取り一覧
家族や自分の”好き”を叶える注文住宅の間取りが見つかる!暮らしの要望をもとに全国の建築家が作成した23坪の間取りを13件公開しています。毎日更新中!
-
- 23坪
- 3LDK
吹抜リビングと子ども部屋がつながる、家族の気配を感じて心休まる家
-
- 21坪〜24坪
- 2LDK
仕切りは少なくオープンに、魅せる暮らしを楽しむ家
-
- 23坪
- 1LDK
スキップフロアで家全体がつながる、家族がいつも近くに感じられる家
-
- 23坪
- 2LDK
ベランダと吹抜で寝室が明るく広く感じるコンパクトな家
-
- 23坪
- 4LDK
狭小地3階建、ロフトで収納不足を解消した家
-
- 23坪
- 1LDK
ロフトは子どもの遊び場に、水回り集約した2階リビングの家
-
- 23坪
- 2LDK
2階はギュッとコンパクト、1階吹抜LDKにゆとりを持たせた家
-
- 23坪
- 2LDK
床座で空間にゆとりを、ゆるい仕切りで家族の距離が近い家
-
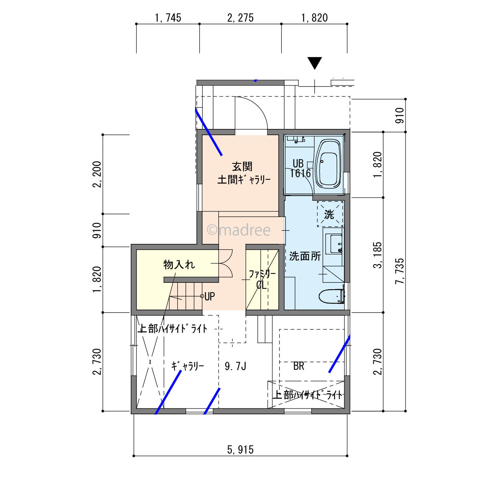
- 23坪
- 2LDK
カメラが好き、土間ギャラリーに作品飾るコンパクトハウス
-
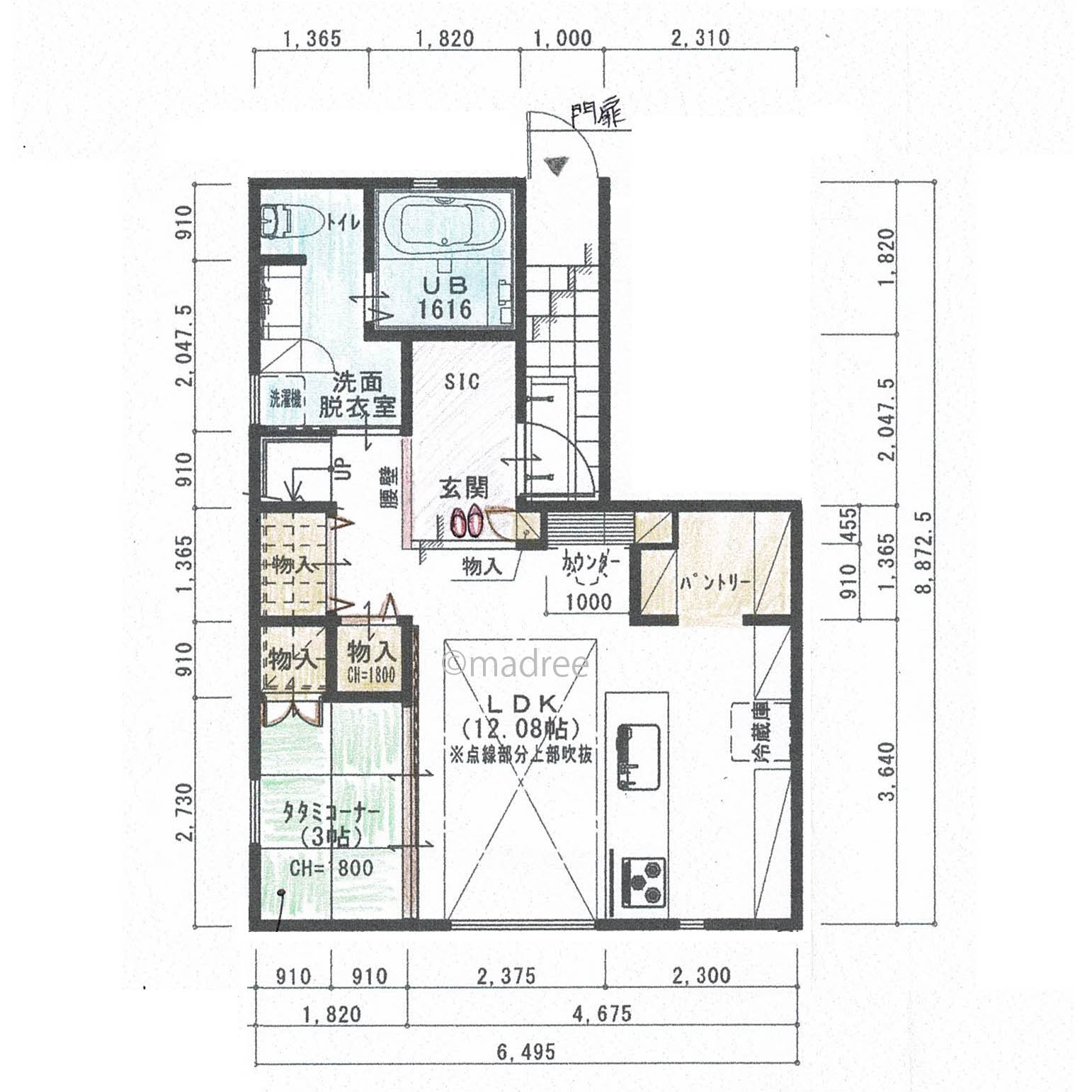
- 21坪〜24坪
- 2LDK
キッチンの生活感を扉1枚でさっと目隠し、自然光が心地よい暖かなLDKの家
-
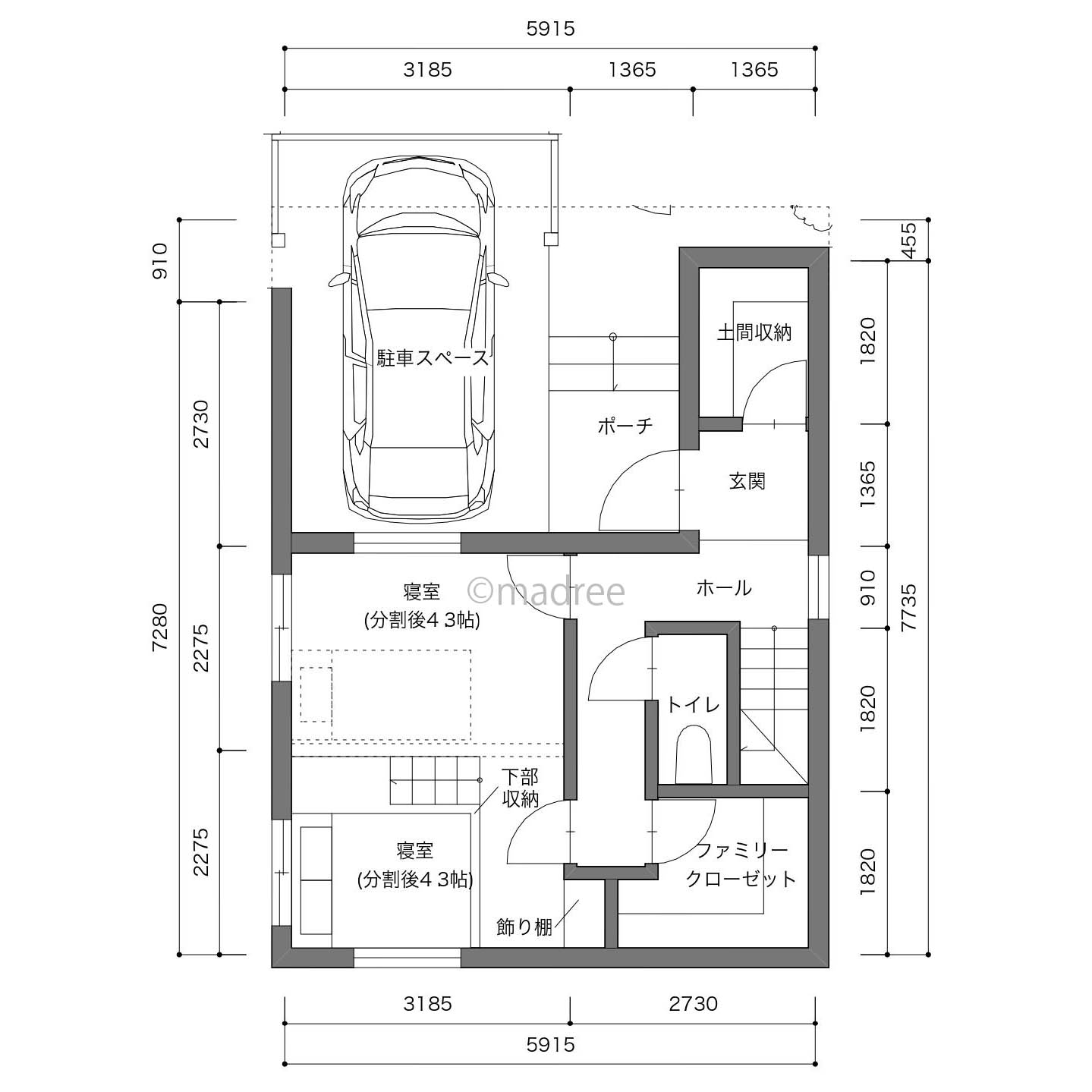
- 21坪〜24坪
- 4LDK
それぞれのパーソナル空間も大切に、明るい2階LDKが憩いの場となる家
-
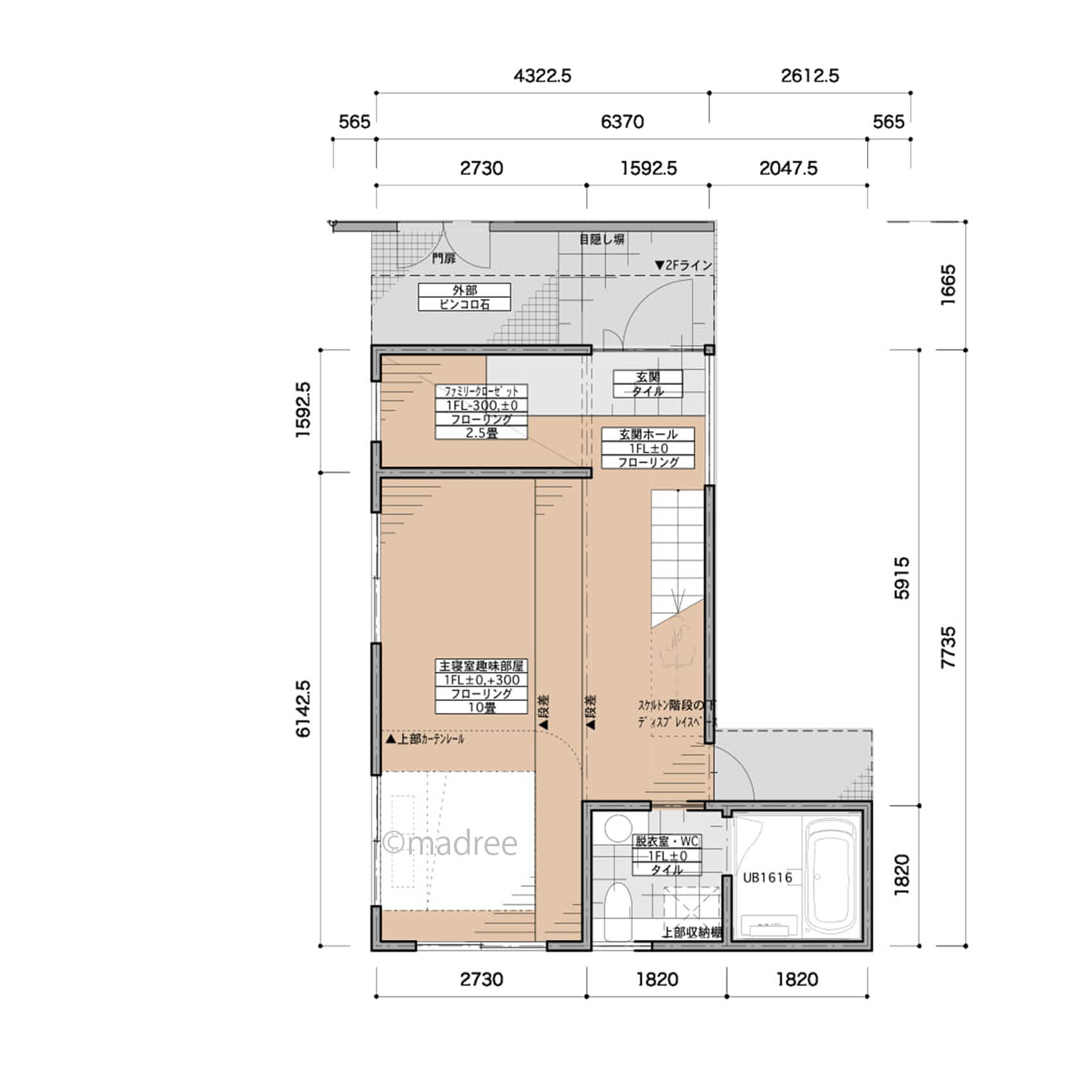
- 21坪〜24坪
- 1LDK
飾って眺めて好きな物に囲まれて過ごす、生活の中で常に趣味を感じられる家
-
- 23坪
- 3LDK
庭の緑で自然の目隠しに、行き止まりなくウッドデッキで繋がる家
マドリー開発の『住宅営業支援ツール』
madreeデータバンク
マドリーの人気間取り4,800プランを接客・提案に活用できる営業支援ツール
- 競合他社と差がつく、スピード提案
- トレンド間取りで、集客・受注数UP
- 建築家のアイデアを参考に、質の高い提案ができる
