リビング吹抜なしの間取り一覧
家族や自分の”好き”を叶える注文住宅の間取りが見つかる!暮らしの要望をもとに全国の建築家が作成したリビング吹抜なしの間取りを1251件公開しています。毎日更新中!
-
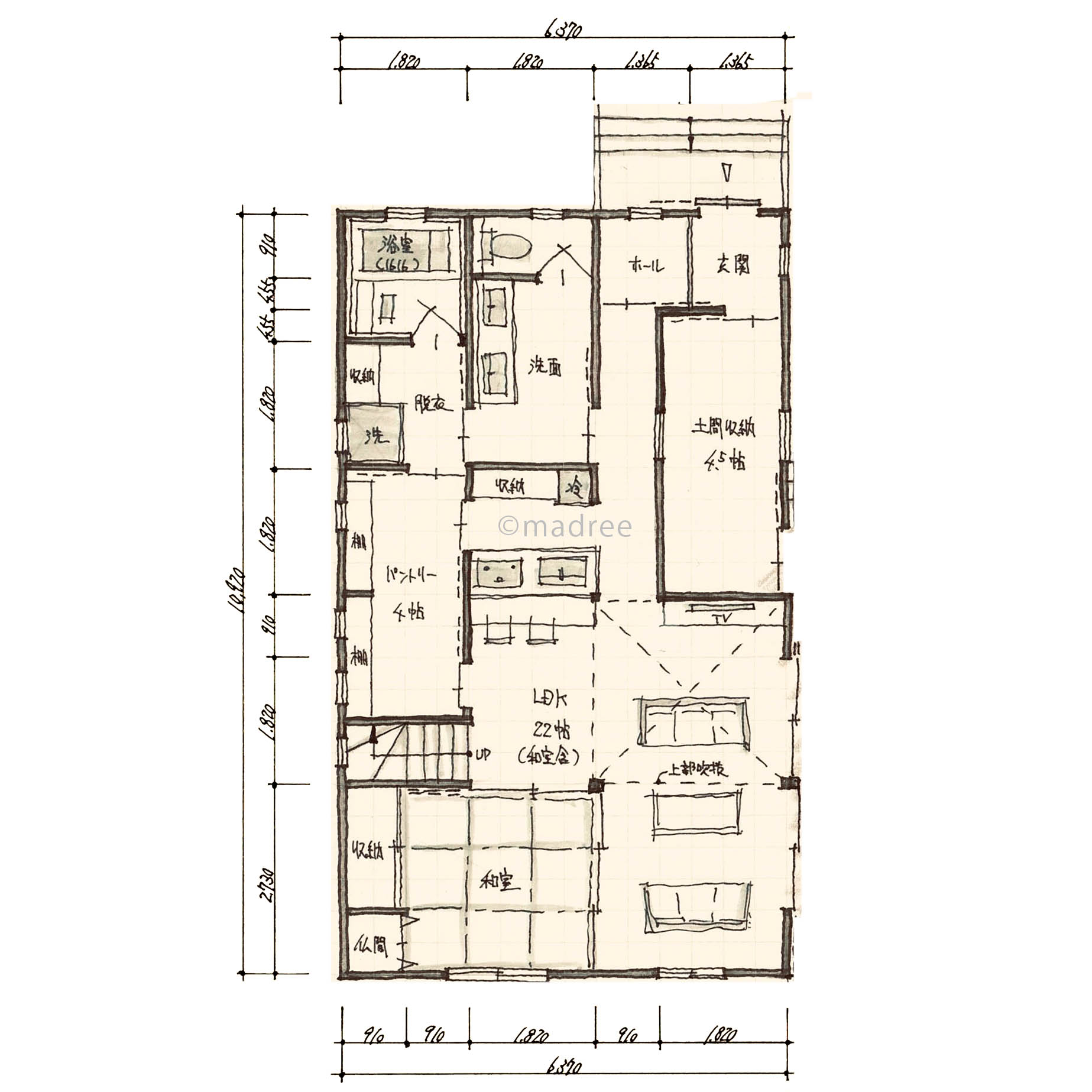
- 39坪~42坪
- 5LDK
家族それぞれが暮らしやすい適材適所の空間と動線で心地良く過ごせる家
-
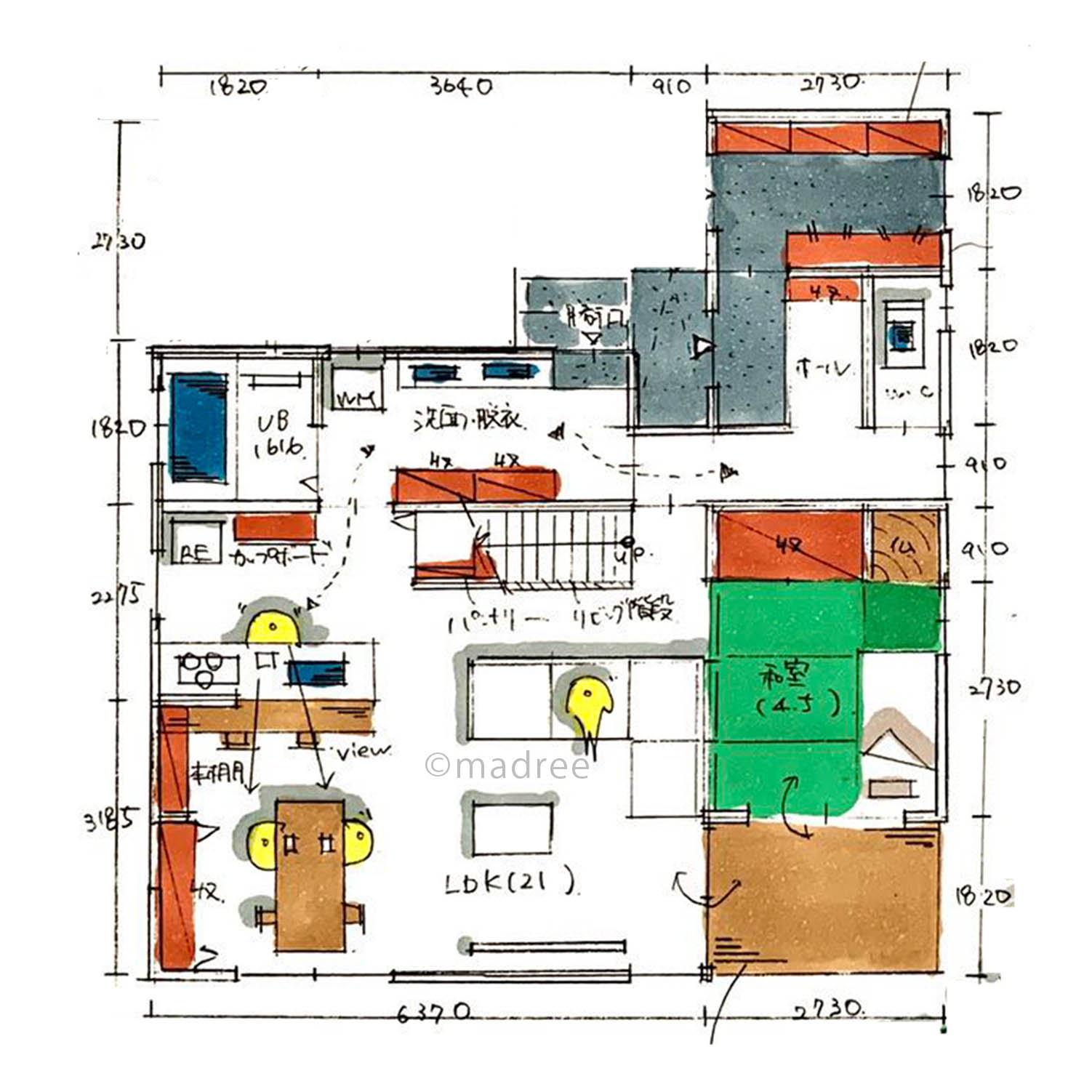
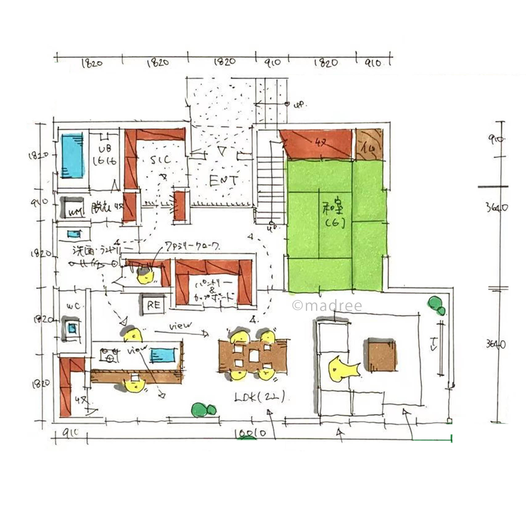
- 34坪
- 4LDK
真ん中LDKと広々ウッドデッキで家族が自然と繋がる小屋根裏収納付きのほぼ平屋
-
- 26坪
- 3LDK
狭小地を広々使える工夫が詰まったシンプル家事動線で暮らしやすく木の温もり感じられる家
-
- 36坪~39坪
- 4LDK
外干し部屋干しOKの洗濯動線と買い物帰宅動線の快適性で暮らしがスムーズになる家
-
- 27坪〜30坪
- 2LDK
思わず家族が集まりたくなる開放感と居心地の良さが叶うLDKと繋がる吹き抜けで子育てしやすい間取り
-
- 30坪~33坪
- 4LDK
適材適所の収納と回遊性ある真ん中LDKで暮らしをスムーズに!シンボルツリーを眺めながら寛げる平屋
-
- 24坪~27坪
- 2LDK
コンパクトながら機能性をぎゅっと詰め込んだ堀座卓でのんびり寛げる家
-
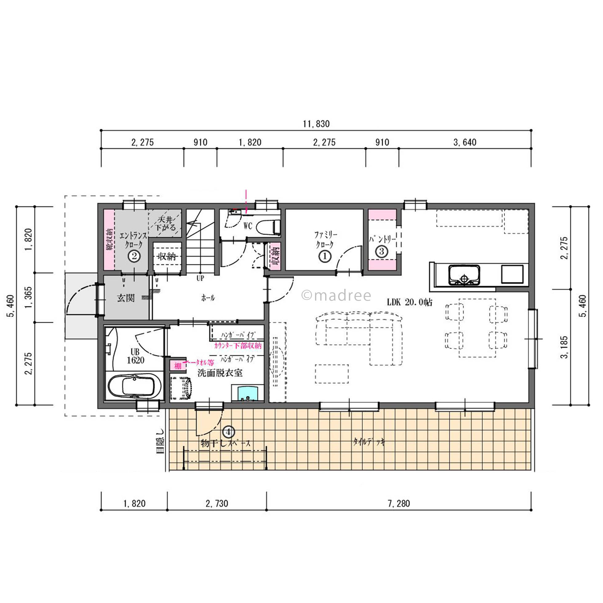
- 33坪~36坪
- 2LDK
ファミリークロークでまとめて収納でLDKが散らからない!シンプルな家事動線で暮らしやすい間取り
-
- 42坪~45坪
- 4LDK
家事裏動線で空間を分けながらも効率良く回遊できる間取り
-
- 27坪〜30坪
- 3LDK
光が差し込む中庭で明るく快適に過ごせる縦長の間取り
-
- 37坪
- 4LDK
プライベート空間と家族が集まる空間を分けて家族の心地良い距離感を保てる間取り
-
- 34坪
- 3LDK
趣味も家事も広々楽しめる!採光と眺望の良いサーファーズハウス
-
- 36坪~39坪
- 4LDK
着替えもカバンも全てここに!ファミリーロッカーのある縦長の土地
-
- 45坪~49坪
- 4LDK
リビング中心で家族が自然と集う!収納充実でスッキリ広々過ごせる心地良い平屋
-
- 39坪~42坪
- 3LDK
廊下の代わりにウォークスルーのファミクロ!収納充実で家中スッキリ間取り以上に広く感じる家
-
- 39坪~42坪
- 4LDK
ママ目線の家事動線や見守り動線が充実の子育てしやすく暮らしやすい間取り
-
- 50坪以上
- 6LDK
夫婦それぞれの趣味部屋や使い勝手の良い動線で日々の自分時間が充実する家
-
- 27坪〜30坪
- 2LDK
隠す収納で家中スッキリ!縦長敷地を活かしたレイアウトで生活感を見せずに暮らせる家
-
- 33坪
- 4LDK
コンパクトながら機能的な家事動線と家族が自然と集まるリビングで賑やかな声が聞こえてくる家
-
- 33坪~36坪
- 3LDK
趣味にフィットした動線で快適に楽しめるサーファーズハウスの間取り
-
- 33坪
- 4LDK
日当たり良好の2階LDKと家族が暮らしやすい広さを考慮した居心地よい間取り
-
- 38坪
- 3LDK
生活空間の真ん中にプライベート感のあるアウトドアダイニングで開放的のある明るい平屋
-
- 42坪~45坪
- 3LDK
繋がる和室を多目的に活用!キッチン裏に続く水回り動線で家事効率の良い家
-
- 35坪
- 2LDK
中庭に癒される明るいLDKと暮らしやすいシンプルな家事動線の間取り
マドリー開発の『住宅営業支援ツール』
madreeデータバンク
マドリーの人気間取り4,800プランを接客・提案に活用できる営業支援ツール
- 競合他社と差がつく、スピード提案
- トレンド間取りで、集客・受注数UP
- 建築家のアイデアを参考に、質の高い提案ができる
