39坪~42坪の間取り一覧
家族や自分の”好き”を叶える注文住宅の間取りが見つかる!暮らしの要望をもとに全国の建築家が作成した39坪~42坪の間取りを354件公開しています。毎日更新中!
-
- 39坪~42坪
- 3LDK
家事に寄り添う動線で暮らしが充実!吹き抜けで家族が繋がる明るいリビングのある間取り
-
- 39坪~42坪
- 4LDK
一家団欒も個々の時間も程よい距離感で繋がれる間取り
-
- 39坪~42坪
- 4LDK
デッキで繋がるLDKと和室の開放感と家事裏動線の空間分けでメリハリある暮らしが叶う間取り
-
- 39坪~42坪
- 5LDK
家族それぞれが暮らしやすい適材適所の空間と動線で心地良く過ごせる家
-
- 39坪~42坪
- 3LDK
廊下の代わりにウォークスルーのファミクロ!収納充実で家中スッキリ間取り以上に広く感じる家
-
- 39坪~42坪
- 4LDK
ママ目線の家事動線や見守り動線が充実の子育てしやすく暮らしやすい間取り
-
- 41坪
- 3LDK
L字型裏動線でLDKを囲む効率的な家事動線と明るく開放感を感じてゆったり寛げる家
-
- 39坪~42坪
- 3LDK
小屋裏収納付きでたっぷりしまえる細長間取りで家族それぞれが過ごしやすい二世帯の家
-
- 39坪~42坪
- 4LDK
アイランドキッチン中心の広々LDKと機能的な家事動線でワンランク上の豊かな生活が叶う家
-
- 39坪~42坪
- 4LDK
家族と共に成長するインナーガーデンとシンプル導線で開放感のある家
-
- 39坪~42坪
- 6LDK
ほどよい距離感の2世帯住宅とセカンドリビングでお泊まり会ができる家
-
- 39坪~42坪
- 3LDK
たっぷりの収納と機能的な空間と動線で暮らしにゆとりが持てる家
-
- 39坪~42坪
- 5LDK
個々の暮らしを大切にしながら心地良い距離感で暮らせて将来介護を意識した間取り
-
- 40坪
- 4LDK
効率良くコンパクトにまとめた家事ラク動線と来客対応がスムーズな間取り
-
- 39坪~42坪
- 3LDK
庭と繋がり自然を感じられる南向きLDKと広々デッキで家族が心地良く暮らせる家
-
- 39坪~42坪
- 4LDK
1階も2階も回遊できる動線で心地良く家族が過ごせる日当たりのよい明るい家
-
- 39坪~42坪
- 3LDK
家の中にいても外とつながれる庭をめぐっているような居心地良い平屋
-
- 39坪~42坪
- 3LDK
お庭を中心にした配置で家の中と外の空間を一緒に取り込み家族団らんできる平屋
-
- 39坪~42坪
- 3LDK
プライベートスペースを分けて来客時も対応スムーズ!大きめキッチンで料理が楽しめる家
-
- 39坪~42坪
- 4LDK
適材適所の収納とコンパクトにまとめた家事ラク回遊動線で暮らしやすさ充実の家
-
- 39坪~42坪
- 3LDK
広めの土間収納で片付け楽々!キッチンからの家事裏動線で生活感を見せない間取り
-
- 39坪~42坪
- 5LDK
完全プライベートな中庭を囲んでリラックスしながら心地良く暮らせる間取り
-
- 39坪~42坪
- 3LDK
キッチン&大きめパントリーと水回り動線を分けて家事分担しやすい家
-
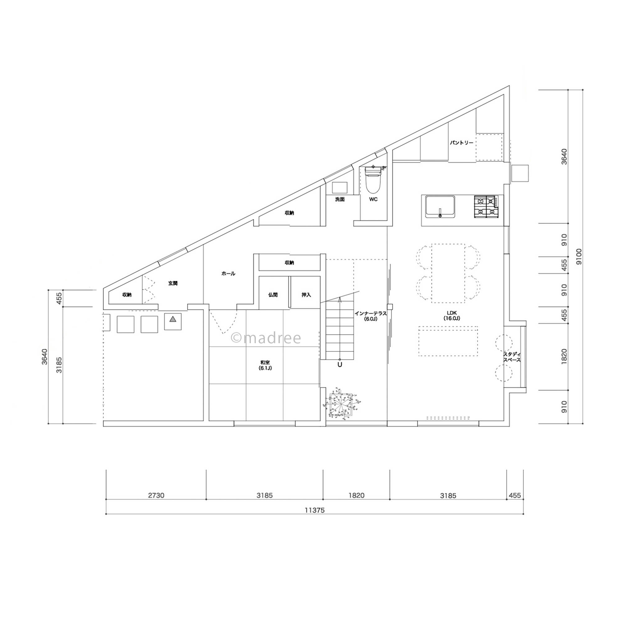
- 39坪~42坪
- 3LDK
インナーテラスで光を取り込み家族のつながりを作る三角地の間取り
マドリー開発の『住宅営業支援ツール』
madreeデータバンク
マドリーの人気間取り4,800プランを接客・提案に活用できる営業支援ツール
- 競合他社と差がつく、スピード提案
- トレンド間取りで、集客・受注数UP
- 建築家のアイデアを参考に、質の高い提案ができる
