- マドリーHOME
- 間取り一覧
間取り一覧
家族や自分の”好き”を叶える注文住宅の間取りが見つかる!暮らしの要望をもとに全国の建築家が作成した間取りを2184件公開しています。毎日更新中!
-
- 25坪
- 3LDK
小さな空間も無駄なく有効活用、プライバシーと開放感を両立させた家
-
- 42坪
- 2LDK
動線に沿った収納で家事と生活効率UP、いつでもゲストを迎えられる家
-
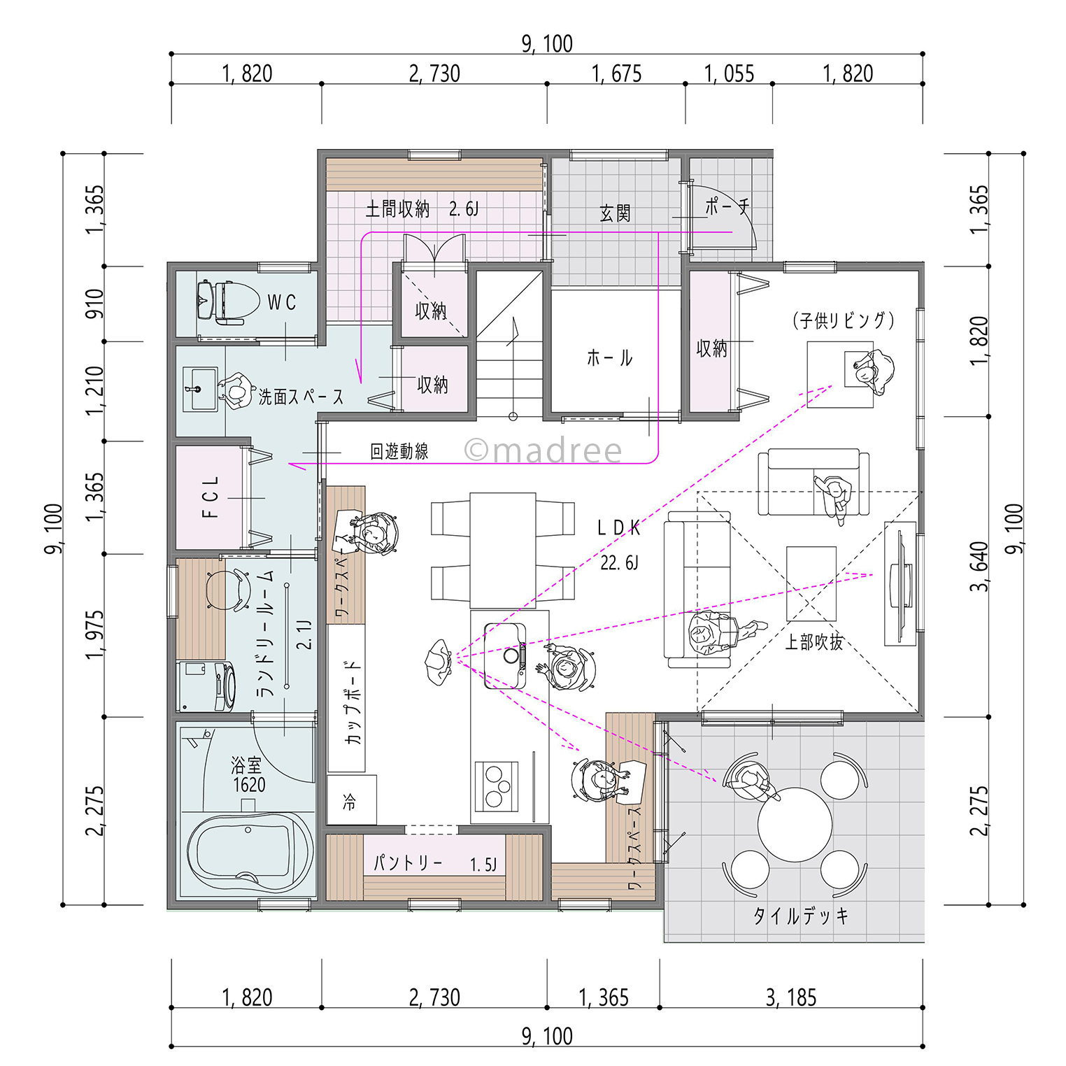
- 49坪
- 3LDK
パーソナルスペースで自分時間楽しむ、家族のプライベート重視した大人の家
-
マドリーの人気間取りを接客・提案に活用できる営業支援ツール
-
- 30坪
- 2LDK
家事ラク動線で趣味時間をつくりだす、四季感じる自然とつながる平屋
-
- 33坪
- 2LDK
家族それぞれお気に入り空間を確保、巣ごもりしたくなる居心地の良い家
-
- 42坪
- 4LDK
縁側で高台からの景色を独り占め、自然とアウトドアを満喫できる家
-
- 50坪以上
- 5LDK
気配は感じつつプライバシーを保つ、程よく寄り添いながら暮らす2世帯住宅
-
- 36坪
- 2LDK
見守りキッチンで子どもの自立心を育む、家事ラク叶う回遊動線の家
-
- 30坪
- 3LDK
夫婦で趣味の時間を愉しむ、全室南向きのあたたかな里山の平屋
-
- 42坪~45坪
- 4LDK
日常と自然をシームレスにつなぐ、緑に囲まれたアウトドア好きの家
-
- 29坪
- 2LDK
自然に囲まれたデッキで至福の朝食を、農家に嬉しい勝手口兼パントリーのある平屋
-
- 42坪
- 4LDK
収納上手でいつでもゲストを迎えられる、緑とアウトドアを楽しむ高台の家
-
マドリーの人気間取りを接客・提案に活用できる営業支援ツール
-
- 44坪
- 3LDK
家族もゲストもリラックスできる、開放感抜群の心地良いゾーニングの家
-
- 38坪
- 3LDK
回遊型キッチンで家事力UP、春が待ち遠しい花見テラスのある家
-
- 30坪
- 3LDK
縁側が家族や友人の憩いの場に、全室南向きで明るく温かな里山の平屋
-
- 32坪
- 3LDK
すっきり整い来客いつでもウェルカム、緑を臨む高台のアウトドアリビングのある家
-
- 39坪
- 4LDK
ウォークスルー動線で家事ラク追求、家中に光届ける中庭が主役の家
-
- 45坪
- 2LDK
ゲストが気兼ねなくくつろげる、空間にメリハリを効かせた大人の平屋
-
- 36坪~39坪
- 4LDK
キッチンからウッドデッキまで視界全開、子どもの自立をそっと見守る家
-
- 40坪
- 3LDK
中庭続きの吹抜で採光抜群!家族のつながり感じるコの字型の家
-
- 36坪~39坪
- 2LDK
ゆるやかな仕切りでメリハリ生活叶う、子どもがよく遊び学べるサブリビングのある家
-
- 30坪
- 2LDK
キッチンを囲んで人が自然と集まる、家族や友人と時間を共有し合う平屋
マドリー開発の『住宅営業支援ツール』
madreeデータバンク
マドリーの人気間取り4,800プランを接客・提案に活用できる営業支援ツール
- 競合他社と差がつく、スピード提案
- トレンド間取りで、集客・受注数UP
- 建築家のアイデアを参考に、質の高い提案ができる
