標準的な設備の間取り一覧
家族や自分の”好き”を叶える注文住宅の間取りが見つかる!暮らしの要望をもとに全国の建築家が作成した標準的な設備の間取りを1428件公開しています。毎日更新中!
-
- 34坪
- 4LDK
適材適所の収納で片付けやすく、家族が自然と集まる家
-
- 39坪
- 3LDK
子どもを安心して遊ばせられる、プライバシーを守るコの字型の家
-
- 40坪
- 4LDK
離れのような和室をニーズに合わせて活用、キッチンまわりに家事動線をまとめた家
-
- 33坪
- 4LDK
明るく風通しの良いLDK、家族とコミュニケーション増える廊下のない家
-
- 4LDK
無駄を省いてストレス軽減、家族の生活リズムに合わせた繋がる動線のある家
-
- 33坪
- 2LDK
玄関からキッチンまでウォークスルーで繋ぐ、備蓄も可能な収納空間のある家
-
- 36坪
- 4LDK
リビング吹抜とオープン階段で広がる開放感、回遊動線でワンフロアが繋がる家
-
- 30坪
- 3LDK
家族それぞれ自分らしい時間を過ごす、2方向のベランダから光溢れる2階リビングの家
-
- 43坪
- 3LDK
家族が自然と家事に協力!水廻りへ直行のストレスフリーな裏動線のある家
-
- 32坪
- 2LDK
家族の気配を玄関吹抜から感じる、開放的な2階LDKでくつろぎ時間を過ごす家
-
- 41坪
- 3LDK
学びを促進する家族室でやる気モードON、気持ちが切り替えやすい空間工夫の家
-
- 32坪
- 4LDK
家族が居場所を持ちつつ心地よく繋がる、キッチンからコミュニケーン取りやすい家
-
- 39坪
- 4LDK
たっぷり収納で生活感ないリビングをキープ、緑や風を感じる外とつながる家
-
- 24坪~27坪
- 3LDK
キッチン裏の家事動線で暮らしがスムーズに、狭小地を最大限に工夫した視線の抜ける家
-
- 32坪
- 4LDK
普段使いもしやすい客間にもなる2WAY動線、玄関とリビングを繋ぐ和室のある家
-
- 27坪〜30坪
- 1LDK
成長に合わせて空間を変更できる、フレキシブルな兼ねる部屋のある家
-
- 34坪
- 3LDK
きれいなリビングをキープできる帰宅動線と、視線が抜ける開放的な縦長の家
-
- 41坪
- 5LDK
家族と友人とおうちキャンプ楽しむ、裏動線でスッキリ整うおもてなし上手の家
-
- 36坪
- 3LDK
ゆるやかに内外空間つながる、アウトドアもインドアも家族で休日楽しむ家
-
- 34坪
- 2LDK
コンパクト動線で生活が楽になる、総二階を無駄なく活かした縦長地に建つ家
-
- 43坪
- 5LDK
アウトドアリビングでおうちキャンプ、来客の視線から隠れた裏動線のある家
-
- 36坪
- 2LDK
アウトドアもインドアも家族で休日楽しむ、多趣味でも整う収納上手な家
-
- 35坪
- 3LDK
緑と風と光をたっぷり取り込む、ひとり時間も充実できる南向きの家
-
- 50坪以上
- 2LDK
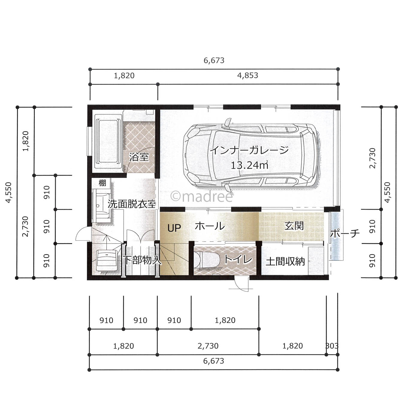
ビルトインガレージでバイクを魅せる3階建ての家
マドリー開発の『住宅営業支援ツール』
madreeデータバンク
マドリーの人気間取り4,800プランを接客・提案に活用できる営業支援ツール
- 競合他社と差がつく、スピード提案
- トレンド間取りで、集客・受注数UP
- 建築家のアイデアを参考に、質の高い提案ができる
