開放感ある浴室の間取り一覧
家族や自分の”好き”を叶える注文住宅の間取りが見つかる!暮らしの要望をもとに全国の建築家が作成した開放感ある浴室の間取りを577件公開しています。毎日更新中!
-
- 42坪
- 3LDK
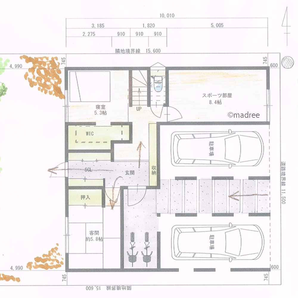
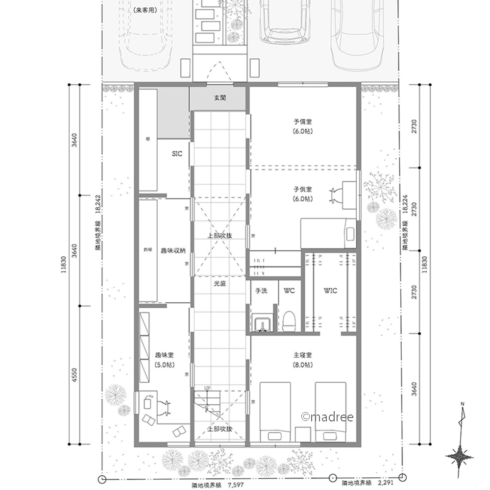
子育ても趣味もゆったり楽しむ、各々にパーソナルスペースがある縦長地の家
-
- 42坪
- 3LDK
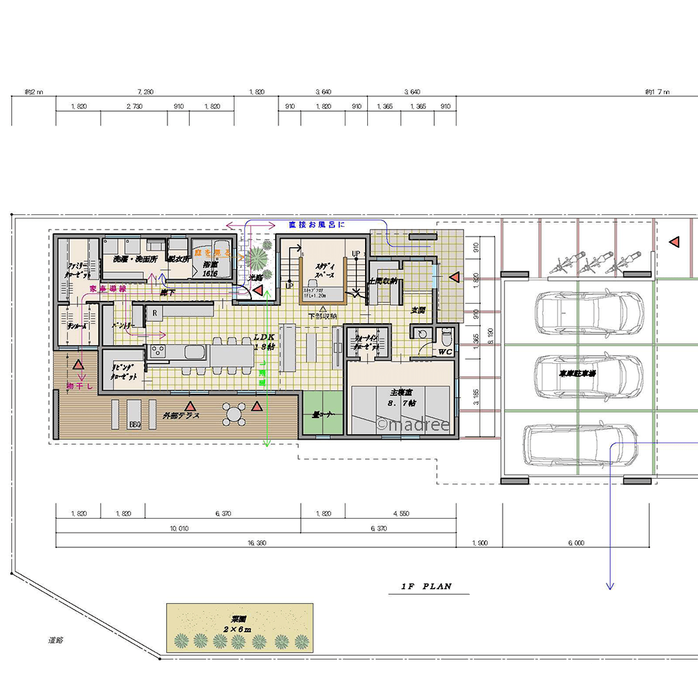
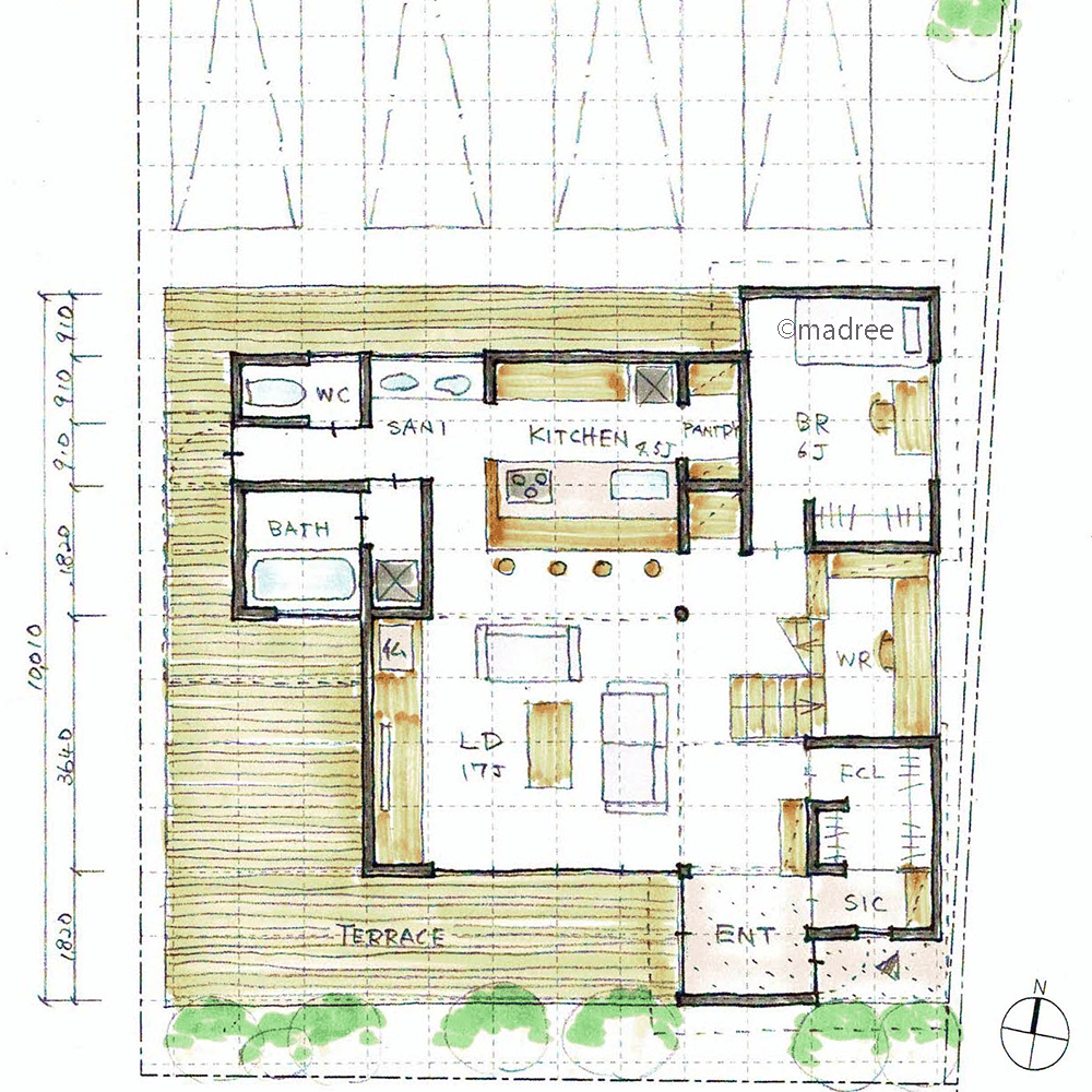
坪庭から入れる汚れても安心な裏玄関、LDKを通らず浴室へ直行できる家
-
- 27坪〜30坪
- 2LDK
階別に動線をハッキリ分けて安心、家族が快適に過ごせる人で賑わう家
-
- 35坪
- 2LDK
気持ちをリフレッシュできる家時間、屋内外に趣味を楽しむ空間のある家
-
- 37坪
- 4LDK
家族を感じる安心の距離感、ストレスなく過ごせる介助介護動線のある家
-
- 42坪
- 3LDK
気兼ねせず過ごすおもてなしスペース、薪ストーブと土間空間を楽しむ家
-
- 45坪
- 3LDK
大きな収納を家族で共有、コンパクトな各部屋を最大限に活かせる家
-
- 39坪
- 2LDK
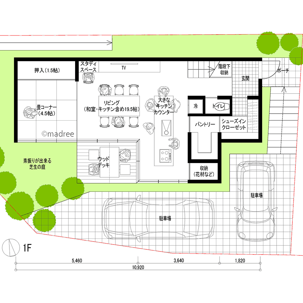
ウッドデッキでゆとり時間過ごす、屋内外を緩やかに結ぶ開放感のある平屋
-
- 33坪
- 3LDK
繋がるコの字テラスで楽に出入り、愛犬も充実のプライベート時間過ごす家
-
- 59坪
- 4LDK
通り道の中庭が生活を結ぶ、視線気にせず開放感味わうコの字型コートハウス
-
- 38坪
- 4LDK
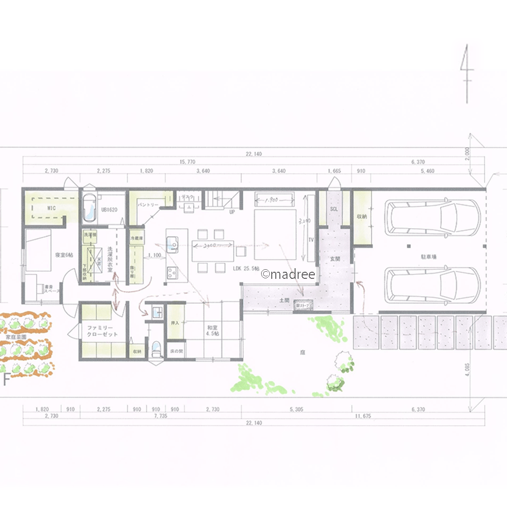
荷物も花粉も持ち込まない、LDK前の身支度動線で自然とスッキリ整う家
-
- 66坪
- 5LDK
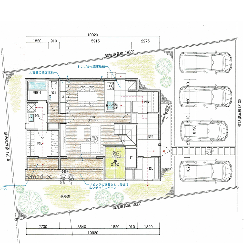
家事も趣味も家族で楽しむ、インナーテラスと吹抜で縦横に視線が抜ける家
-
- 39坪
- 4LDK
風の抜けるスキップフロアのLDK、気持ちの良い空間に自然と家族集まる家
-
- 51坪
- 4LDK
天窓から光庭廊下へ採光届ける、吹抜を介して家族の気配を感じられる家
-
- 38坪
- 4LDK
家族も猫ものびのび過ごす、内外一体のアウトドア好きの家
-
- 41坪
- 3LDK
ピットリビングでプライベート空間増える、カーテンなし開放的なLDKの家
-
- 30坪
- 2LDK
シンプルで直線的なコンパクト動線、デッキを介して生活も家事も繋がる平屋
-
- 39坪
- 2LDK
玄関を中心にON/OFFで棟分け、テラスからも北棟と南棟を回遊できる平屋
-
- 34坪
- 3LDK
リラックス空間のスッキリを保つ、プライベート空間向き隠せる収納のある家
-
- 32坪
- 2LDK
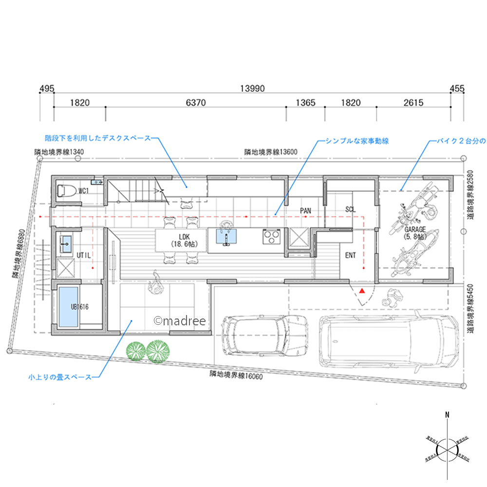
シンプル家事で充実の自分時間、ガレージから直線で繋ぐ裏動線のある家
-
- 32坪
- 3LDK
光と風が気持ち良く流れる、好きな陽だまりスポットで家時間を過ごす家
-
- 38坪
- 4LDK
2種類のシンプル動線で家事楽らく、横長LDKを気持ち良く風が抜ける家
-
- 37坪
- 3LDK
ファミクロが日常を繋ぐ、移動空間も収納活用した回遊性のある平屋
-
- 38坪
- 3LDK
リビング吹抜が家族を繋ぐ、2階からそっと見守る書斎スペースのある家
マドリー開発の『住宅営業支援ツール』
madreeデータバンク
マドリーの人気間取り4,800プランを接客・提案に活用できる営業支援ツール
- 競合他社と差がつく、スピード提案
- トレンド間取りで、集客・受注数UP
- 建築家のアイデアを参考に、質の高い提案ができる
