標準的な設備の間取り一覧
家族や自分の”好き”を叶える注文住宅の間取りが見つかる!暮らしの要望をもとに全国の建築家が作成した標準的な設備の間取りを1451件公開しています。毎日更新中!
-
- 27坪
- 3LDK
シンボルツリーのある中庭から降り注ぐ光と風が家中を心地良くしながら家族を繋げる平屋
-
- 27坪〜30坪
- 2LDK
暮らしやすさをコンパクトに詰め込んだ住み心地良い3階建の家
-
- 24坪~27坪
- 3LDK
一直線水回り・収納動線でスムーズに暮らせる!ウッドデッキをコの字型に囲んで自然を感じられる家
-
- 33坪
- 2LDK
LDKをL字型動線で水回りと収納で囲み生活感を見せずにゆったり過ごせる家
-
- 30坪~33坪
- 2LDK
家の真ん中に中庭を配置して風が通り抜けて広がりを感じる心地良い平屋
-
- 36坪~39坪
- 3LDK
カフェライクなキッチンで来客対応も楽しめる!自宅サロンや屋上も完備で仕事も暮らしも充実する家
-
- 30坪~33坪
- 2LDK
自然光と通風のある快適なLDKで人もペットも心地良く過ごせる家
-
- 30坪~33坪
- 2LDK
成長やライフスタイルに合わせて変化できる長く付き合える家
-
- 30坪~33坪
- 3LDK
家の真ん中に中庭を配置し開放感と外の繋がりを感じられる家
-
- 27坪〜30坪
- 2LDK
コンパクトながら隙間を利用した収納と明るく開放感ある光と風で心地良く暮らせる家
-
- 24坪~27坪
- 2LDK
機能性高い暮らしやすさをコンパクトに詰め込んだ光が差し込む明るい家
-
- 24坪~27坪
- 3LDK
廊下無しでコンパクトな家事動線にまとめつつ広々LDK空間でゆったり過ごせる家
-
- 30坪~33坪
- 2LDK
シンプルで効率的な暮らしの動線と趣味を叶える空間で家族が心地良く過ごせる家
-
- 33坪~36坪
- 2LDK
狭小地でありながらプライバシーを保ち家族みんなが心地よく豊かに過ごせる家
-
- 24坪~27坪
- 2LDK
機能性高い家事動線を効率的にコンパクトにまとめた明るく開放的な家
-
- 30坪~33坪
- 2LDK
プライバシーを守りながら光と風が通り抜ける明るく開放のある家
-
- 42坪~45坪
- 4LDK
程よい距離感で家族を感じられ個々の時間も大切にできる家
-
- 36坪~39坪
- 4LDK
車椅子でも快適に過ごせる生活動線で家族が笑顔になれる間取り
-
- 42坪~45坪
- 4LDK
2つのデッキで暮らしに広がりを!日々の暮らしを充実させてくれる家
-
- 45坪~49坪
- 5LDK
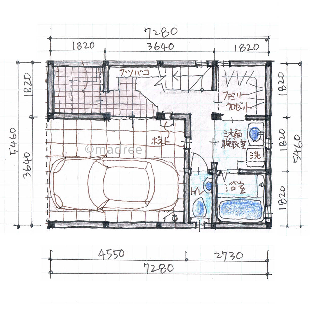
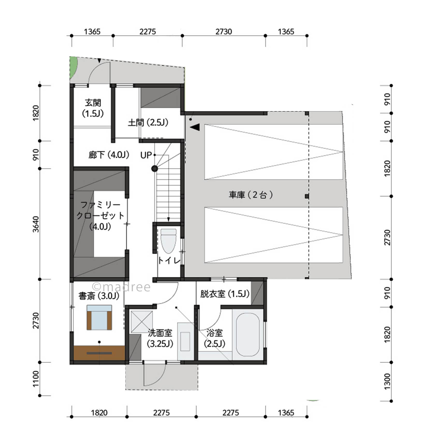
フレキシブルに用途を使い分けながら暮らしを創るビルトインガレージのある家
-
- 39坪~42坪
- 3LDK
三角地でも狭さを感じない家族の暮らしに寄り添う間取り
-
- 33坪~36坪
- 3LDK
スカイリビングの開放感に癒されつつ家事ラクルーム・家事ラク動線で暮らしが整う間取り
-
- 33坪~36坪
- 3LDK
効率的な家事動線と家族時間も自分時間が充実するL字型の家
-
- 39坪~42坪
- 4LDK
収納たっぷりで散らかり知らずのシンプル動線で暮らしやすい間取り
マドリー開発の『住宅営業支援ツール』
madreeデータバンク
マドリーの人気間取り4,800プランを接客・提案に活用できる営業支援ツール
- 競合他社と差がつく、スピード提案
- トレンド間取りで、集客・受注数UP
- 建築家のアイデアを参考に、質の高い提案ができる
