yuzurihaの間取り一覧
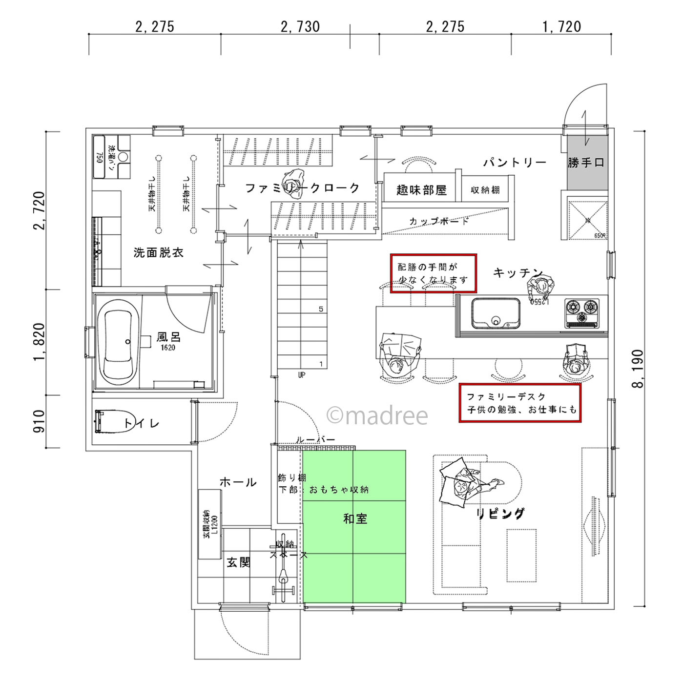
家族や自分の”好き”を叶える注文住宅の間取りが見つかる!暮らしの要望をもとに全国の建築家が作成したyuzurihaの間取りを5件公開しています。毎日更新中!
マドリー開発の『住宅営業支援ツール』
madreeデータバンク
マドリーの人気間取り4,800プランを接客・提案に活用できる営業支援ツール
- 競合他社と差がつく、スピード提案
- トレンド間取りで、集客・受注数UP
- 建築家のアイデアを参考に、質の高い提案ができる
家族や自分の”好き”を叶える注文住宅の間取りが見つかる!暮らしの要望をもとに全国の建築家が作成したyuzurihaの間取りを5件公開しています。毎日更新中!
マドリーの人気間取り4,800プランを接客・提案に活用できる営業支援ツール